Foram encontradas 60 questões.
No AutoCAD, este comando é muito utilizado e sua função específica é arredondar cantos:
Provas
No AutoCAD, o comando responsável por controlar a aparência das cotas, como o estilo da ponta da seta, posicionamento do texto, casas decimais, entre outros, é o comando conhecido como:
Provas
O AutoCAD tem um comando cuja finalidade consiste em duplicar uma linha a uma distância definida pelo desenhista. Esse comando é conhecido como:
Provas
Para criar uma coordenada relativa polar no software AutoCAD, é necessário definir o comprimento (distância) e a abertura do ângulo medido entre o eixo 0 (zero) e a linha na qual pretende realizar. Define-se essa coordenada em:
Provas
O comando utilizado no AutoCAD cuja finalidade é desagrupar as entidades tais como blocos, polilinhas, hatch, dimensionamento, malhas e sólidos vem a ser:
Provas
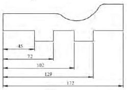
A figura mostra uma peça com as cotas em evidência. Verifica-se que estas cotas têm a mesma direção e esta é definida em relação a uma origem.

A classificação dessas cotas em relação ao critério de colagem é:
Provas
Em desenho técnico, as peças devem ser representadas sempre em escala real, contudo, verifica-se que, na prática, isso nem sempre é possível. Por sua vez, as escalas utilizadas nos desenhos são sempre normalizadas, porém, quando a dimensão do objeto no desenho é maior que a sua dimensão real, essa escala é definida como:
Provas
Um importante parâmetro do desenho técnico é normalizado e segue orientação segundo a NBR 8196 e é definido pela relação do tamanho do desenho da peça com o tamanho real da peça. Tal descrição refere-se:
Provas
A figura a seguir é utilizada em desenho técnico.

Essa figura faz referência ao seguinte símbolo de projeção:
Provas
Em uma determinada perspectiva, os três eixos no espaço estão igualmente inclinados em relação ao plano de projeção e os ângulos formados pelos eixos projetados são iguais a 120º. Tal perspectiva é denominada:
Provas
Caderno Container