Foram encontradas 60 questões.
Na execução de uma armadura para uma peça de concreto armado, a sequência em que as atividades são executadas é:
Provas
A tabela a seguir apresenta o cobrimento nominal para as barras em peças de concreto armado, em função da classe de agressividade ambiental a qual estão sujeitas, segundo a NBR 6118.
| Tipo de estrutura | Componente ou elemento | Classe de agressividade ambiental | |||
| I | II | III | IV | ||
| Cobrimento nominal mm | |||||
| Laje | 20 | 25 | 35 | 45 | |
| Concreto armado | Viga/Pilar | 25 | 30 | 40 | 50 |
| Concreto protendido | Todos | 30 | 35 | 45 | 55 |
Sabe-se também que a mesma norma estabelece que a dimensão máxima do agregado graúdo não pode superar em 20% a espessura nominal do cobrimento.
De posse dessas informações, pode-se determinar que, em uma laje de concreto armado em um local com agressividade ambiental de classe li, a dimensão máxima do agregado graúdo deverá ser de:
Provas
Em uma estrutura de concreto armado, quando se aplica um pré-alongamento inicial às barras de forma a produzir forças de protensão, a armadura é denominada:
Provas
O trecho abaixo foi extraído da NBR 7212:
"Recomenda-se que a resistência característica à compressão do concreto tomada como referência seja a de um concreto frequentemente solicitado e igualou superior a 25MPa".
Assim, ao utilizar um concreto cuja seção possui essa resistência para execução de um pilar retangular com dimensões 0,80m x 0,40m, a carga máxima que este pilar pode suportar, antes da aplicação do fator de segurança, é de:
Provas
Segundo a NBR 12655, a resistência média à compressão do concreto, medida a "j" dias, é denominada fcmj. Quando não for indicada a idade, considera-se que a resistência é aquela medida a:
Provas
A classificação entre "barras de aço" e "fios de aço" é feita principalmente em função do diâmetro da peça. Os fios de aço são aqueles cujo diâmetro nominal é de no máximo:
Provas
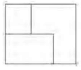
A figura a seguir mostra um objeto desenhado em perspectiva.

A alternativa que mostra a vista ortográfica deste objeto no 1º diedro, no sentido indicado pela seta, é:
Provas
Dentre as figuras a seguir, que mostram diversos tipos de relação que podem existir entre arestas visíveis e invisíveis em um desenho técnico a única em que o desenho está correto é:
Provas
O desenho abaixo ilustra um tipo de traço encontrado em um desenho técnico:

Este traço representa:
Provas
Foi encomendada a realização de determinado projeto técnico em formato A3. Dessa forma, a folha onde este projeto será apresentado terá dimensões de:
Provas
Caderno Container