Foram encontradas 50 questões.
Considere o croqui de parte de um projeto de instalações elétricas e os dados a seguir.

Dados:
- As fases dos circuitos 1 e 2 serão conectadas nos primeiros interruptores three-way que elas encontrarem.
- O circuito 1 é de iluminação.
- O circuito 2 é para as tomadas.
- Cada circuito possui seu neutro.
- Todas as tomadas deverão possuir condutor terra.
Os condutores que passam entre os pontos de luz do teto, independentemente do circuito a que pertencem, são em número de
Provas
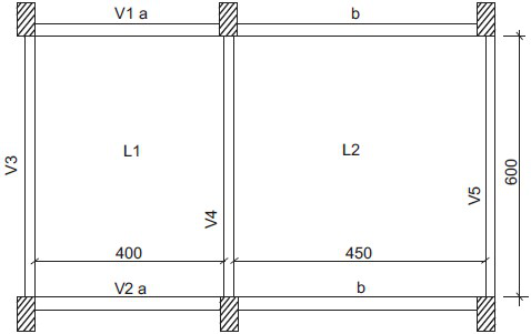
Considere a planta de forma esquematizada e os seguintes dados.

Dados:
- Cotas em centímetros • Distância máxima entre escoras das vigas: 0,80 m
- Distância máxima entre escoras das lajes: 1,00 m
- Considerar que todas as formas das lajes L1 e L2 se apoiam nas formas das vigas
- Considerar que todas as formas das vigas se apoiam nas formas dos pilares
- Seção transversal de todas as vigas: 10 cm x 50 cm
- Espessura das lajes: 10 cm
- Consumo de cimento por metro cúbico de concreto: 400 kg
- Croqui sem escala
Para o cálculo do momento fletor referente ao peso próprio no meio do vão da V5, foram adotadas as seguintes premissas, além das outras anteriormente informadas:
- vão livre: 6,00 m
- apoios do 1º gênero
- peso específico do concreto: 24 kN/m3
Dessa forma, o valor do momento fletor citado, em kN.m, é
Provas
Considere a planta de forma esquematizada e os seguintes dados.

Dados:
- Cotas em centímetros • Distância máxima entre escoras das vigas: 0,80 m
- Distância máxima entre escoras das lajes: 1,00 m
- Considerar que todas as formas das lajes L1 e L2 se apoiam nas formas das vigas
- Considerar que todas as formas das vigas se apoiam nas formas dos pilares
- Seção transversal de todas as vigas: 10 cm x 50 cm
- Espessura das lajes: 10 cm
- Consumo de cimento por metro cúbico de concreto: 400 kg
- Croqui sem escala
Para realizar ajustes no cronograma da obra, foi necessário concretar, com concreto fabricado na obra, todas as vigas até a altura do fundo das lajes. Para tanto, ficou estabelecido que deveria haver uma quantidade de cimento 20% superior à necessária para a concretagem.
Sabendo-se que cada saco de cimento tem 50 kg, o estoque mínimo em sacos de cimento para atender ao estabelecido é de
Provas
Considere a planta de forma esquematizada e os seguintes dados.

Dados:
- Cotas em centímetros • Distância máxima entre escoras das vigas: 0,80 m
- Distância máxima entre escoras das lajes: 1,00 m
- Considerar que todas as formas das lajes L1 e L2 se apoiam nas formas das vigas
- Considerar que todas as formas das vigas se apoiam nas formas dos pilares
- Seção transversal de todas as vigas: 10 cm x 50 cm
- Espessura das lajes: 10 cm
- Consumo de cimento por metro cúbico de concreto: 400 kg
- Croqui sem escala
As quantidades mínimas de escoras para as lajes L1, L2 e V5, são, respectivamente,
Provas
Considere as informações a seguir, referentes aos dados do planejamento de uma obra.
| Imediatamente antes | Serviço | Imediatamente depois |
| - | S1 | S4 |
| - | S2 | S5, S6 |
| - | S3 | - |
| S1 | S4 | - |
| S2 | S5 | - |
| S2 | S6 | - |
| Serviço | Duração (meses) | Valor (R$) |
| S1 | 5 | 500.000,00 |
| S2 | 4 | 600.000,00 |
| S3 | 8 | 400.000,00 |
| S4 | 4 | 100.000,00 |
| S5 | 2 | 700.000,00 |
| S6 | 3 | 180.000,00 |
Dados:
- Os custos dos serviços são proporcionais aos seus prazos de execução.
- As medições são quinzenais.
- O mês é de 30 dias.
- Todos os serviços começarão nas suas datas mais cedo.
- Não prever atrasos.
Ao final de qual quinzena o percentual de 25% da execução do serviço S4 será alcançado?
Provas
Considere as informações a seguir, referentes aos dados do planejamento de uma obra.
| Imediatamente antes | Serviço | Imediatamente depois |
| - | S1 | S4 |
| - | S2 | S5, S6 |
| - | S3 | - |
| S1 | S4 | - |
| S2 | S5 | - |
| S2 | S6 | - |
| Serviço | Duração (meses) | Valor (R$) |
| S1 | 5 | 500.000,00 |
| S2 | 4 | 600.000,00 |
| S3 | 8 | 400.000,00 |
| S4 | 4 | 100.000,00 |
| S5 | 2 | 700.000,00 |
| S6 | 3 | 180.000,00 |
Dados:
- Os custos dos serviços são proporcionais aos seus prazos de execução.
- As medições são quinzenais.
- O mês é de 30 dias.
- Todos os serviços começarão nas suas datas mais cedo.
- Não prever atrasos.
O valor acumulado previsto até a 10a quinzena para o serviço S5, em reais, é
Provas
Considere as informações a seguir, referentes aos dados do planejamento de uma obra.
| Imediatamente antes | Serviço | Imediatamente depois |
| - | S1 | S4 |
| - | S2 | S5, S6 |
| - | S3 | - |
| S1 | S4 | - |
| S2 | S5 | - |
| S2 | S6 | - |
| Serviço | Duração (meses) | Valor (R$) |
| S1 | 5 | 500.000,00 |
| S2 | 4 | 600.000,00 |
| S3 | 8 | 400.000,00 |
| S4 | 4 | 100.000,00 |
| S5 | 2 | 700.000,00 |
| S6 | 3 | 180.000,00 |
Dados:
- Os custos dos serviços são proporcionais aos seus prazos de execução.
- As medições são quinzenais.
- O mês é de 30 dias.
- Todos os serviços começarão nas suas datas mais cedo.
- Não prever atrasos.
A partir da montagem do cronograma físico, observa-se que os serviços previstos para a 13a quinzena são
Provas

Na estrutura acima esquematizada, todas as lajes são armadas nas duas direções e existe continuidade nas lajes adjacentes. No caso da laje L5, no lado em que não há continuidade, a laje está simplesmente apoiada.
Para a distribuição do quinhão de carga para as quatro vigas que apoiam a L5, os ângulos indicados no detalhe esquematizado acima são
| I | II | III | IV |
Provas
Observe a figura a seguir que esquematiza um solo no qual o nível d’água (NA) coincide com o nível do terreno (NT).

Considerando-se o peso específico da água 10 kN/m3, a tensão efetiva vertical no ponto P, em kPa, vale
Provas
Considere a seção transversal da estaca E322 de uma rodovia e os dados a seguir.

Dados:
- Na estaca E323, a área de aterro da seção transversal é 50% maior que a área de aterro da seção transversal da estaca E322
- Talude de corte: tgα = 3/2, onde α é o ângulo do talude de corte com a horizontal
- Talude de aterro tgβ = 2/3, onde β é o ângulo do talude de aterro com a horizontal
A altura, em metros, do aterro no meio de P1-P2, em relação ao terreno natural, é
Provas
Caderno Container