Foram encontradas 60 questões.
De forma a se planejar a iluminação de um ambiente, para realização de atividades em locais específicos, admite-se a utilização de fatores, tais como limite de ofuscamento, índice de reprodução de cor, e observações específicas que levam em consideração particularidades da atividade ou ambiente que deseja-se iluminar. Contudo, mesmo com todas estas informações, para um projeto de iluminação ambiente adequado, deve-se, invariavelmente, ainda levar em consideração a medida de
Provas
Segundo a NBR 5410 (Instalações elétricas de baixa tensão), em seu item 6.4.1.2, quando se tem condutores de aterramento enterrados no solo, deve-se dimensionar sua secção transversal de acordo com características como: material, presença ou não de proteção contra corrosão, ou mesmo a presença ou não de proteção contra danos mecânicos. No entanto, mesmo considerando todas estas características difusas, nunca se tem condutores de aterramento enterrados no solo com seções mínimas inferiores a
Provas
Considere um Arduino Nano cuja entrada analógica A0 está conectada ao “terminal variável” de um potenciômetro que possui 5V aplicados entre seus dois terminais restantes, conforme ilustrado através da figura a seguir:

Sabendo que o canal analógico A0 possui uma resolução de 10 bits, considere o seguinte código:
// the setup routine runs once when you press reset:
void setup() {
// initialize serial communication at 9600 bits per second:
Serial.begin(9600);
}
// the loop routine runs over and over again forever:
void loop() {
// read the input on analog pin 0:
int sensorValue = analogRead(A0);
// print out the value you read:
Serial.println(sensorValue);
delay(1); // delay in between reads for stability
}
Para uma tensão de 3,3V, presente no terminal A0, determine o valor da variável sensorValue, exibido através da janela de monitoramento na IDE do Arduino.
Provas
Considere a seguinte imagem do manual de fabricante, “Datasheet”, do controlador ESP32 - Séries (ESP32-D0WD, D0WDQ6, D2WD e S0WD) que descreve os endereços iniciais e finais dos diversos segmentos de memória interna integrada do ESP32:
| Category | Target | Start Address | End Address |
|
Embedded Memory |
Internal ROM 0 | 0x4000_0000 | 0x4005_FFFF |
| Internal ROM 1 | 0x3FF9_0000 | 0x3FF9_FFFF | |
| Internal SRAM 0 | 0x4007_0000 | 0x4009_FFFF | |
| Internal SRAM 1 | 0x3FFE_0000 | 0x3FFF_FFFF | |
| 0x400A_0000 | 0x400B_FFFF | ||
| Internal SRAM 2 | 0x3FFA_E000 | 0x3FFD_FFFF | |
| RTC FAST Memory | 0x3FF8_0000 | 0x3FF8_1FFF | |
| 0x400C_0000 | 0x400C_1FFF | ||
| RTC SLOW Memory | 0x5000_0000 | 0x5000_1FFF |
Sabe-se que a SRAM do ESP32 conta com 3 segmentos divididos em SRAM 0, SRAM 1 e SRAM 2 cujas capacidades de memória são, respectivamente:
Provas
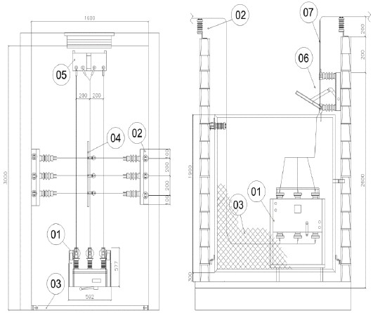
Considere uma subestação com o arranjo físico de seu cubículo de proteção ilustrado, através das vistas superior e lateral na figura a seguir, onde todas as medidas estão expressas em milímetros:

Sabendo que o item 03 indica o posicionamento da grade metálica de proteção do cubículo, temos corretamente a seguinte indicação de equipamentos:
Provas
Segundo a NBR 12721 (Avaliação de custos de construção para incorporação imobiliária e outras disposições para condomínios edilícios), a área de vaga de garagem trata-se um espaço destinado ao estacionamento de veículo automotor. Segundo a referida norma, considere as seguintes afirmações, admitindo V (verdadeira) e F (falsa):
( ) Para área de garagem vinculada à unidade autônoma, tem-se sua vinculação à área privativa principal da unidade autônoma sem atribuição de fração ideal específica no terreno.
( ) A área de vaga de garagem pode ser determinada como unidade autônoma, a critério do incorporador caso seu acesso independa de ocupação de demais vagas consideradas como unidades autônomas ou de vagas de uso comum ou indeterminado.
( ) Para área de garagem de uso comum e indeterminado, tem-se sua demarcação e identificação em projeto apenas para efeito de quantificação e disponibilidade.
De acordo com a NBR 12721 a classificação das afirmações anteriores, respectivamente, corresponde a:
Provas
Considere o diagrama unifilar do cubículo de proteção de uma subestação genérica, com as funções do relé de proteção devidamente especificadas através de codificação numérica:

Não se trata de função codificada, indicada no diagrama unifilar, o
Provas
Segundo a NBR 5410 (Instalações elétricas de baixa tensão), que em seu item 5.6 traz indicações a respeito de dispositivos de seccionamento e comando, de forma adequada, admite-se que:
“...todos os condutores vivos, em todos os circuitos, devem ser seccionados...”
Contudo a mesma norma traz, como caso de exceção, o seccionamento do condutor neutro, no esquema de aterramento do tipo
Provas
Considere um motor de indução trifásico de 3 bobinas, com acesso aos 6 terminais ligado em delta e com tensão nominal de fase de 220V, 60Hz. A referida máquina possui curva de torque expressa de acordo com o gráfico a seguir:

Pode-se considerar que em sua região de operação nominal, N > 3240 RPM, tem-se um fator de potência de 0,85 indutivo e um rendimento de 92%. Além disso, pode-se considerar que a correlação Conjugado x Velocidade pode ser aproximada de forma linear. Suponha que se acople uma carga mecânica ao eixo desta máquina, de maneira que sua velocidade se estabiliza para um valor N1 com um escorregamento de 2%. Pode-se aproximar o valor do conjugado C para velocidade N1 como
Provas
Uma forma para representar as grandezas elétricas e magnéticas de um transformador, trata-se de sua modelagem através de um circuito elétrico equivalente, conforme a figura a seguir:

Para o referido circuito equivalente do transformador, onde os subíndices P e S indicam o pertencimento de uma grandeza ao lado primário e ao secundário, respectivamente. Os termos com ’ representam determinado parâmetro “refletido” de um lado para outro do mesmo. Em relação aos seus parâmetros e seus ensaios, analise as seguintes afirmações:
I. Para realização do ensaio de circuito aberto, aplica-se a tensão nominal no lado primário do transformador e uma vez que, no lado secundário não há a circulação de corrente, pode-se desprezar as perdas joule dos enrolamentos e as dispersões de fluxos, e desta forma, consideradas as perdas no núcleo, de maneira que as medidas resultantes deste ensaio podem aproximar, de maneira razoável, Rc e Xm.
II. Para realização do ensaio de curto-circuito, aplica-se gradativamente uma tensão no lado primário do transformador com os terminais de seu secundário “curto-circuitados”. Ao se alcançar a tensão nominal no lado primário, pode-se desprezar as perdas no núcleo bem como a reatância de magnetização de maneira que as medidas resultantes deste ensaio nos permitem aproximar, de maneira razoável, RP, RS, XP e XS.
III. A regulação de tensão de um transformador mede a variação da tensão proporcionada pelo enrolamento do transformador, \( \hat{\epsilon} P \), quando se passa do regime “a vazio” para a condição de “curto-circuito”.
IV. O rendimento do transformador pode ser comparar a relação entre a potência de entrada PP e á de saída Ps, ou seja: \( \eta(\%) = \dfrac {P_S} {P_P} \cdot 100 \). Desta forma o rendimento pode, corretamente, ser aproximado por: \( \eta = \dfrac {V_s I_S} {V_s I_S + P_O + P_{CC}} \), onde PO e PCC são as potências obtidas através dos ensaios de “a vazio” e “curto-circuito”, respectivamente.
Após análise, admite-se que é(são) falsa(s)
Provas
Caderno Container