Foram encontradas 100 questões.
De acordo com a NBR 5410, para as instalações fixas em geral, assinale a alternativa que apresenta a seção mínima prevista para os condutores fase utilizados, respectivamente, em circuitos de iluminação e circuitos de força.
Provas
Considere um ensaio de compressão axial de um corpo de prova (CP) de concreto, de 10 cm de diâmetro e 20 cm de altura. Sabendo que a força de rompimento do corpo de prova foi de 62800 kgf, calcule sua resistência à compressão.
Em seguida, assinale a alternativa correta.
Considere: g=10 m/s2, !$ \pi !$=3,14.
Provas
Assinale a alternativa que contém o tipo de lâmpada cujo funcionamento ocorre devido à passagem de uma descarga elétrica em meio a gases metálicos.
Provas
Assinale a alternativa que contém o esquema elétrico correto para uma luminária cujo acionamento seja realizado por meio de dois interruptores paralelos (Three-way) e dois interruptores intermediários (Four-way).
Provas
De acordo com a NBR 5626, a vazão a considerar, no abastecimento do reservatório de água potável, deve ser suficiente para a reposição total do volume destinado ao consumo diário de água.
Com relação às residências unifamiliares, assinale a alternativa que apresenta o tempo máximo previsto para essa reposição.
Provas
Durante a fiscalização de uma obra, foi observado por um técnico em edificações a não realização de um importante componente estrutural acima dos vãos das portas e janelas, cuja função é receber as tensões sobre esses vãos e distribuílas para as paredes laterais dessas aberturas.
Assinale a alternativa que apresenta o nome desse componente estrutural.
Provas
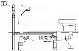
Dado o projeto de instalação hidrossanitária abaixo, relacione os componentes enumerados.
Em seguida, assinale a alternativa com a sequência correta.

( ) Tubo de queda
( ) Ramal de descarga
( ) Coluna de ventilação
Provas
Relacione os componentes das instalações hidrossanitárias com as simbologias apresentadas abaixo.
Em seguida, assinale a alternativa com a sequência correta.
![]()
( ) Caixa de inspeção
( ) Caixa sifonada
( ) Ralo sifonado
Provas
Assinale a alternativa que apresenta a quantidade mínima de tomadas previstas para uma cozinha residencial retangular, de 4 metros de comprimento por 5 metros de largura.
Provas
Com relação às instalações prediais de esgoto sanitário, assinale a alternativa que apresenta a classificação para a tubulação que recebe diretamente os efluentes de aparelhos sanitários.
Provas
Caderno Container