Magna Concursos

Foram encontradas 40 questões.

2415375 Ano: 2011
Disciplina: Engenharia Civil
Banca: IF-PB
Orgão: IF-PB
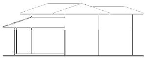
Observe as plantas Baixa e de Coberta de uma edificação, apresentadas a seguir, e a direção do NORTE geográfico registrada em cada uma delas:
Enunciado 2877867-1
PLANTA BAIXA sem escala.
PLANTA DE COBERTURA sem escala.
Feitas as devidas observações, assinale a alternativa que apresenta a fachada SUL construída CORRETAMENTE.
 

Provas

Questão presente nas seguintes provas

A Constituição Federal do Brasil, no seu Capítulo VII – Da Administração Pública, estabelece que a administração pública direta e indireta de qualquer dos Poderes da União, dos Estados, do Distrito Federal e dos Municípios obedecerá aos seguintes princípios, EXCETO.

 

Provas

Questão presente nas seguintes provas
Compras de Natal
A cidade deseja ser diferente, escapar às suas fatalidades. Enche-se de brilhos e cores; sinos que não tocam, balões que não sobem, anjos e santos que não se movem, estrelas que jamais estiveram no céu. As lojas querem ser diferentes, fugir à realidade do ano inteiro: enfeitam-se com fitas e flores, neve de algodão de vidro, fios de ouro e prata, cetins, luzes, todas as coisas que possam representar beleza e excelência.
Tudo isso para celebrar um Meninozinho envolto em pobres panos, deitado numas palhas, há cerca de dois mil anos, num abrigo de animais, em Belém.
Todos vamos comprar presentes para os amigos e parentes, grandes e pequenos, e gastaremos, nessa dedicação sublime, até o último centavo, o que hoje em dia quer dizer a última nota de cem cruzeiros, pois, na loucura do regozijo unânime, nem um prendedor de roupa na corda pode custar menos do que isso.
Grandes e pequenos, parentes e amigos são todos de gosto bizarro e extremamente suscetíveis. Também eles conhecem todas as lojas e seus preços – e, nestes dias, a arte de comprar se reveste de exigências particularmente difíceis. Não poderemos adquirir a primeira coisa que se ofereça à nossa vista: seria uma vulgaridade. Teremos de descobrir o imprevisto, o incognoscível, o transcendente. Não devemos também oferecer nada de essencialmente necessário ou útil, pois a graça destes presentes parece consistir na sua desnecessidade e inutilidade. Ninguém oferecerá, por exemplo, um quilo (ou mesmo um saco) de arroz ou feijão para a insidiosa fome que se alastra por estes nossos campos de batalha; ninguém ousará comprar uma boa caixa de sabonetes desodorantes para o suor da testa com que – especialmente neste verão – teremos de conquistar o pão de cada dia. Não: presente é presente, isto é, um objeto extremamente raro e caro, que não sirva a bem dizer para coisa alguma.
Por isso é que os lojistas, num louvável esforço de imaginação, organizam suas sugestões para os compradores, valendo-se de recursos que são a própria imagem da ilusão. Numa grande caixa de plástico transparente (que não serve para nada), repleta de fitas de papel celofane (que para nada servem), coloca-se um sabonete em forma de flor (que nem se possa guardar como flor nem usar como sabonete, e cobra-se pelo adorável conjunto o preço de uma cesta de rosas. Todos ficamos extremamente felizes! São as cestinhas forradas de seda, as caixas transparentes os estojos, os papéis de embrulho com desenhos inesperados, os barbantes, atilhos, fitas, o que na verdade oferecemos aos parentes e amigos. Pagamos por essa graça delicada da ilusão. E logo tudo se esvai, por entre sorrisos e alegrias. Durável – apenas o Meninozinho nas suas palhas, a olhar para este mundo.
MEIRELES, Cecília. Quatro Vozes, Rio de Janeiro: Editora Record, 1998.
Há, a partir da perspectiva apresentada no texto, uma contradição marcada que se evidencia entre
 

Provas

Questão presente nas seguintes provas
2414205 Ano: 2011
Disciplina: Engenharia Civil
Banca: IF-PB
Orgão: IF-PB
Em topografia, realizar um levantamento (medição) é desenvolver todas as operações de medidas no campo, indispensáveis para a determinação da posição relativa dos pontos que compõem a área, objeto de estudo. Analise as nomenclaturas, a seguir, propostas para este levantamento, conforme a natureza das medidas efetuadas:
I. PLANIGEOMÉTRICO.
II. ALTIMÉTRICO.
III. PLANIMÉTRICO.
IV. GEOPLANIMÉTRICO.
V. ALTIGEOMÉTRICO.
VI. PLANIALTIMÉTRICO.
As nomenclaturas CORRETAS estão apenas em:
 

Provas

Questão presente nas seguintes provas
No que tange a Lei 8.112/90, tratando das vantagens, além do vencimento poderão, ser pagas ao servidor:
 

Provas

Questão presente nas seguintes provas
2413527 Ano: 2011
Disciplina: Engenharia Civil
Banca: IF-PB
Orgão: IF-PB
Entende-se por compactação de um solo o processo manual ou mecânico que visa reduzir o volume de seus vazios e assim, aumentar sua resistência, tornando-o mais estável. Observe as curvas A e B apresentadas a seguir.
Enunciado 2828848-1
Agora, analise as sentenças apresentadas, referentes a estas curvas e às grandezas nelas contidas.
I. A curva B representa a curva de saturação do solo.
II. A grandeza γs representa o peso específico aparente do solo natural SECO.
III. A curva A representa a curva de compactação do solo e NÃO poderá atingir nunca a curva B.
IV. O ponto A tem por coordenadas γs, máximo, e h ot, onde h ot é denominado Tempo ótimo de compactação em horas.
V. A parte ASCENDENTE da curva A se deve a expulsão do ar existente no solo, redução do numero de vazios, devido a compactação.
VI. A parte DESCENDENTE da curva A se deve às rachaduras, cada vez maiores, que passam a existir com o aumento da energia de compactação. Essas rachaduras são responsáveis pelo aumento do número de vazios do solo ensaiado.
As afirmativas CORRETAS se apresentam apenas em:
 

Provas

Questão presente nas seguintes provas

Conforme a Constituição Federal do Brasil, tratando da família, da criança, do adolescente, do jovem e do idoso, é CORRETO afirmar:

 

Provas

Questão presente nas seguintes provas
Compras de Natal
A cidade deseja ser diferente, escapar às suas fatalidades. Enche-se de brilhos e cores; sinos que não tocam, balões que não sobem, anjos e santos que não se movem, estrelas que jamais estiveram no céu. As lojas querem ser diferentes, fugir à realidade do ano inteiro: enfeitam-se com fitas e flores, neve de algodão de vidro, fios de ouro e prata, cetins, luzes, todas as coisas que possam representar beleza e excelência.
Tudo isso para celebrar um Meninozinho envolto em pobres panos, deitado numas palhas, há cerca de dois mil anos, num abrigo de animais, em Belém.
Todos vamos comprar presentes para os amigos e parentes, grandes e pequenos, e gastaremos, nessa dedicação sublime, até o último centavo, o que hoje em dia quer dizer a última nota de cem cruzeiros, pois, na loucura do regozijo unânime, nem um prendedor de roupa na corda pode custar menos do que isso.
Grandes e pequenos, parentes e amigos são todos de gosto bizarro e extremamente suscetíveis. Também eles conhecem todas as lojas e seus preços – e, nestes dias, a arte de comprar se reveste de exigências particularmente difíceis. Não poderemos adquirir a primeira coisa que se ofereça à nossa vista: seria uma vulgaridade. Teremos de descobrir o imprevisto, o incognoscível, o transcendente. Não devemos também oferecer nada de essencialmente necessário ou útil, pois a graça destes presentes parece consistir na sua desnecessidade e inutilidade. Ninguém oferecerá, por exemplo, um quilo (ou mesmo um saco) de arroz ou feijão para a insidiosa fome que se alastra por estes nossos campos de batalha; ninguém ousará comprar uma boa caixa de sabonetes desodorantes para o suor da testa com que – especialmente neste verão – teremos de conquistar o pão de cada dia. Não: presente é presente, isto é, um objeto extremamente raro e caro, que não sirva a bem dizer para coisa alguma.
Por isso é que os lojistas, num louvável esforço de imaginação, organizam suas sugestões para os compradores, valendo-se de recursos que são a própria imagem da ilusão. Numa grande caixa de plástico transparente (que não serve para nada), repleta de fitas de papel celofane (que para nada servem), coloca-se um sabonete em forma de flor (que nem se possa guardar como flor nem usar como sabonete), e cobra-se pelo adorável conjunto o preço de uma cesta de rosas. Todos ficamos extremamente felizes! São as cestinhas forradas de seda, as caixas transparentes os estojos, os papéis de embrulho com desenhos inesperados, os barbantes, atilhos, fitas, o que na verdade oferecemos aos parentes e amigos. Pagamos por essa graça delicada da ilusão. E logo tudo se esvai, por entre sorrisos e alegrias. Durável – apenas o Meninozinho nas suas palhas, a olhar para este mundo.
MEIRELES, Cecília. Quatro Vozes, Rio de Janeiro: Editora Record, 1998.
Leia.
“Por isso é que os lojistas, num louvável esforço de imaginação, organizam suas sugestões para os compradores, valendo-se de recursos que são a própria imagem da ilusão. Numa grande caixa de plástico transparente (que não serve para nada), repleta de fitas de papel celofane (que para nada servem), coloca-se um sabonete em forma de flor (que nem se possa guardar como flor nem usar como sabonete), e cobra-se pelo adorável conjunto o preço de uma cesta de rosas. Todos ficamos extremamente felizes!”
Considerando os aspectos linguístico- gramaticais desse trecho, julgue as seguintes assertivas.
I. Em “todos ficamos”, a concordância é admitida pela norma culta, uma vez que indica relação de inclusão.
II. Como o verbo “valer” admite duas regências, o uso da preposição é facultativa no contexto apresentado.
III. Na forma verbal “cobra-se pelo adorável conjunto”, a partícula “se” funciona como índice de indeterminação.
IV. Sendo o termo “por isso” indicativo de conclusão, seu posicionamento, no ínicio do período, compromete a relação semântica.
É CORRETO o que se afirma em
 

Provas

Questão presente nas seguintes provas

A Constituição Federal do Brasil, tratando da família, da criança, do adolescente, do jovem e do idoso, estabelece que o direito à proteção especial abrangerá os seguintes aspectos:

I. Idade mínima de 14 (quatorze) anos para admissão ao trabalho, independente do local de trabalho.
II. Garantia dos direitos previdenciários e trabalhistas.
III. Garantia de acesso do trabalhador adolescente e jovem à escola.

É CORRETO o que se afirma apenas em

 

Provas

Questão presente nas seguintes provas
A respeito do Software aplicativo Microsoft Excel 2007, é CORRETO afirmar:
 

Provas

Questão presente nas seguintes provas