Foram encontradas 60 questões.
Considere os dados e os croquis a seguir para responder a questão.

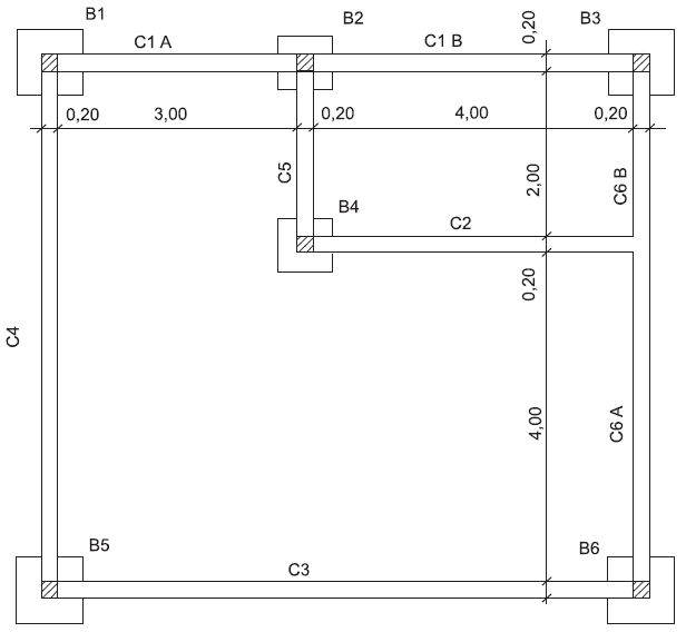
Croqui da planta de formas das Fundações (sem escala)
• Cotas em metros
• NT = nível do terreno.
• Todos os blocos possuem base quadrada.
• Não considerar concreto magro abaixo do fundo dos blocos.
• Taxa de consumo de aço para as cintas = 115 kg por metro cúbico de concreto.
• Não considerar como cintas as áreas dos pilares que estão hachurados na figura.
• Valores de a e b do corte esquemático para todos os blocos, sendo B1 = B3 = B5 = B6 e B2 = B4:


As cintas C2 e C5 juntas foram realizadas em 36 horas de trabalho por uma equipe de fôrmas. Considerando-se que, nas demais cintas, essa equipe terá a mesma produtividade, o tempo que ela levará para concluir as fôrmas das demais cintas, em horas, é de
Provas
Questão presente nas seguintes provas
Considere os dados e os croquis a seguir para responder a questão.

Croqui da planta de formas das Fundações (sem escala)
• Cotas em metros
• NT = nível do terreno.
• Todos os blocos possuem base quadrada.
• Não considerar concreto magro abaixo do fundo dos blocos.
• Taxa de consumo de aço para as cintas = 115 kg por metro cúbico de concreto.
• Não considerar como cintas as áreas dos pilares que estão hachurados na figura.
• Valores de a e b do corte esquemático para todos os blocos, sendo B1 = B3 = B5 = B6 e B2 = B4:


Sendo o fator A/C = 0,51 e o consumo de cimento de 340 kg por metro cúbico de concreto, serão consumidos na concretagem da C2 um total de água, em litros, de
Provas
Questão presente nas seguintes provas
Considere os dados e os croquis a seguir para responder a questão.

Croqui da planta de formas das Fundações (sem escala)
• Cotas em metros
• NT = nível do terreno.
• Todos os blocos possuem base quadrada.
• Não considerar concreto magro abaixo do fundo dos blocos.
• Taxa de consumo de aço para as cintas = 115 kg por metro cúbico de concreto.
• Não considerar como cintas as áreas dos pilares que estão hachurados na figura.
• Valores de a e b do corte esquemático para todos os blocos, sendo B1 = B3 = B5 = B6 e B2 = B4:


No traço de concreto do bloco B5, o volume produzido por saco de 50 kg de cimento é de 144 litros. A quantidade de sacos de cimento de 50 kg, a ser utilizada nesse bloco, será de
Provas
Questão presente nas seguintes provas
Considere os dados e os croquis a seguir para responder a questão.

Croqui da planta de formas das Fundações (sem escala)
• Cotas em metros
• NT = nível do terreno.
• Todos os blocos possuem base quadrada.
• Não considerar concreto magro abaixo do fundo dos blocos.
• Taxa de consumo de aço para as cintas = 115 kg por metro cúbico de concreto.
• Não considerar como cintas as áreas dos pilares que estão hachurados na figura.
• Valores de a e b do corte esquemático para todos os blocos, sendo B1 = B3 = B5 = B6 e B2 = B4:


A quantidade total de aço para C4 e C5, em toneladas, vale
Provas
Questão presente nas seguintes provas
Considere os dados e os croquis a seguir para responder a questão.

Croqui da planta de formas das Fundações (sem escala)
• Cotas em metros
• NT = nível do terreno.
• Todos os blocos possuem base quadrada.
• Não considerar concreto magro abaixo do fundo dos blocos.
• Taxa de consumo de aço para as cintas = 115 kg por metro cúbico de concreto.
• Não considerar como cintas as áreas dos pilares que estão hachurados na figura.
• Valores de a e b do corte esquemático para todos os blocos, sendo B1 = B3 = B5 = B6 e B2 = B4:


Para a concretagem dos blocos B2 e B4, será solicitado concreto de uma central, que estabelece como fornecimento mínimo 2 m3 por caminhão betoneira. Diante dessa informação e considerando apenas o volume geométrico dos blocos, o engenheiro decidiu corretamente
Provas
Questão presente nas seguintes provas
Considere os dados e os croquis a seguir para responder a questão.

Croqui da planta de formas das Fundações (sem escala)
• Cotas em metros
• NT = nível do terreno.
• Todos os blocos possuem base quadrada.
• Não considerar concreto magro abaixo do fundo dos blocos.
• Taxa de consumo de aço para as cintas = 115 kg por metro cúbico de concreto.
• Não considerar como cintas as áreas dos pilares que estão hachurados na figura.
• Valores de a e b do corte esquemático para todos os blocos, sendo B1 = B3 = B5 = B6 e B2 = B4:


Considerando-se uma perda de 3% para a concretagem da C3, o volume de concreto a ser acrescido ao volume geométrico dessa peça estrutural, em litros, será de
Provas
Questão presente nas seguintes provas
Considere os dados e os croquis a seguir para responder a questão.

Croqui da planta de formas das Fundações (sem escala)
• Cotas em metros
• NT = nível do terreno.
• Todos os blocos possuem base quadrada.
• Não considerar concreto magro abaixo do fundo dos blocos.
• Taxa de consumo de aço para as cintas = 115 kg por metro cúbico de concreto.
• Não considerar como cintas as áreas dos pilares que estão hachurados na figura.
• Valores de a e b do corte esquemático para todos os blocos, sendo B1 = B3 = B5 = B6 e B2 = B4:


Para a escavação dos blocos deve ser prevista uma folga de 50 cm para todos os lados, ao longo do perímetro de cada elemento de fundação. O solo é composto de um tipo de material que apresenta um inchamento de 25%. Considerando-se exclusivamente as informações fornecidas, na escavação dos blocos B1, B3, B5 e B6, teremos um volume de solo, em m3, a ser transportado de
Provas
Questão presente nas seguintes provas
Considere os dados e os croquis a seguir para responder a questão.

Croqui da planta de formas das Fundações (sem escala)
• Cotas em metros
• NT = nível do terreno.
• Todos os blocos possuem base quadrada.
• Não considerar concreto magro abaixo do fundo dos blocos.
• Taxa de consumo de aço para as cintas = 115 kg por metro cúbico de concreto.
• Não considerar como cintas as áreas dos pilares que estão hachurados na figura.
• Valores de a e b do corte esquemático para todos os blocos, sendo B1 = B3 = B5 = B6 e B2 = B4:


Os blocos B2 e B4 serão constituídos utilizando chapas de compensado resinado (1,10 m x 2,20 m x 0,12 m) nas suas fôrmas. As chapas são compradas em peças inteiras (por chapa), e não fracionadas, embora possa haver aproveitamento dos cortes das chapas entre os blocos. Desconsidere qualquer tipo de acréscimo ou redução e utilize apenas os dados geométricos de B2 e B4. Qual a quantidade de chapas necessária para a confecção das formas desses blocos somados?
Provas
Questão presente nas seguintes provas
Considere os dados e os croquis a seguir para responder a questão.

Croqui da planta de formas das Fundações (sem escala)
• Cotas em metros
• NT = nível do terreno.
• Todos os blocos possuem base quadrada.
• Não considerar concreto magro abaixo do fundo dos blocos.
• Taxa de consumo de aço para as cintas = 115 kg por metro cúbico de concreto.
• Não considerar como cintas as áreas dos pilares que estão hachurados na figura.
• Valores de a e b do corte esquemático para todos os blocos, sendo B1 = B3 = B5 = B6 e B2 = B4:


Os blocos B1, B3, B5 e B6 terão suas formas constituídas de tábuas de madeira com 2 cm x 30 cm de seção transversal. Sem considerar perdas ou acréscimos e utilizando-se apenas as medidas geométricas, para execução simultânea dos blocos acima citados, serão necessárias tábuas de 30 cm, num total, em metros, de
Provas
Questão presente nas seguintes provas
Em uma obra, estão estocados sacos de cimento com a identificação CP III. Por tal identificação, verifica-se que se trata de cimento Portland
Provas
Questão presente nas seguintes provas
Cadernos
Caderno Container