Magna Concursos

Foram encontradas 37 questões.

1049414 Ano: 2017
Disciplina: Engenharia Civil
Banca: FAEPESUL
Orgão: Pref. Governador Celso Ramos-SC
Provas:
Os custos de produção podem ser classificados em diretos e indiretos, sendo muito importante que se faça a correta classificação de tais custos. Considerando os conceitos de custo direto e indireto e as atividades usuais em uma obra, assinale a alternativa que apresenta apenas custos diretos:
 

Provas

Questão presente nas seguintes provas
1049413 Ano: 2017
Disciplina: Engenharia Civil
Banca: FAEPESUL
Orgão: Pref. Governador Celso Ramos-SC
Provas:
Um aterro de 4 metros de altura será executado sobre um perfil de argila mole sedimentar de 8 m de espessura. Neste local o nível d’água é coincidente com a superfície do terreno natural. Para execução do aterro empregou-se um material que quando compactado atinge peso específico aparente natural da ordem de 20 kN/m³. O solo local tem peso específico aparente saturado da ordem de 15 kN/m³ e índice de vazios igual a 1,5. Do centro desta camada de argila foi coletada uma amostra indeformada, que ao ser submetida a ensaio de adensamento indicou uma tensão de préadensamento de 40 kPa, cc da ordem de 0,3 e cr igual a 0,05. Assume-se que os acréscimos de tensão do aterro propagam-se integralmente ao longo da camada de argila. Assim, a alternativa CORRETA no que se refere ao cálculo dos recalques por adensamento sofridos pelo solo argiloso por causa da construção do aterro é:
 

Provas

Questão presente nas seguintes provas
1049412 Ano: 2017
Disciplina: Engenharia Civil
Banca: FAEPESUL
Orgão: Pref. Governador Celso Ramos-SC
Provas:
Os pavimentos são estruturas de múltiplas camadas, sendo o revestimento a camada que se destina a receber a carga dos veículos e também as ações climáticas. Sobre os tipos de revestimentos é INCORRETO afirmar que:
 

Provas

Questão presente nas seguintes provas
1049411 Ano: 2017
Disciplina: Engenharia Civil
Banca: FAEPESUL
Orgão: Pref. Governador Celso Ramos-SC
Provas:
A figura mostra uma treliça com vínculos em dois pontos e submetida a uma carga P=10 kN em sua extremidade. enunciado 1049411-1

As dimensões são dadas em metros.
Considere: sen 45° = cos 45°= 0,7 sen 30° = cos 60°= 0,5 cos 30° = sen 60°= 0,9

Dadas as condições de vinculação, carregamento e as dimensões dos elementos que compõe a treliça, a alternativa que apresenta o CORRETO carregamento imposto às barras EG e FG é:
 

Provas

Questão presente nas seguintes provas
1049410 Ano: 2017
Disciplina: Engenharia Civil
Banca: FAEPESUL
Orgão: Pref. Governador Celso Ramos-SC
Provas:
A figura a seguir mostra uma viga biapoiada, submetida a um carregamento composto por cargas pontuais, cargas distribuídas e por um momento fletor. As distâncias são indicadas em metros. Considerar os momentos positivos quando antihorários. enunciado 1049410-1
A alternativa que apresenta o CORRETO valor, em módulo, para as reações verticais em A e D, e para o
 

Provas

Questão presente nas seguintes provas
1049409 Ano: 2017
Disciplina: Engenharia Civil
Banca: FAEPESUL
Orgão: Pref. Governador Celso Ramos-SC
Provas:
Diversos índices e parâmetros são empregados na caracterização de agregados utilizados na construção civil, dentre eles está o módulo de finura. Este é determinado com base nos resultados de ensaios de granulometria. Na tabela a seguir são apresentados os dados obtidos de um ensaio em areia, executado em uma amostra de 423,7 g. enunciado 1049409-1
Considerando os dados mostrados na tabela, o módulo de finura deste material é:

 

Provas

Questão presente nas seguintes provas
1049408 Ano: 2017
Disciplina: Engenharia Civil
Banca: FAEPESUL
Orgão: Pref. Governador Celso Ramos-SC
Provas:
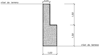
A Figura mostra um muro de gravidade construído em concreto e que tem peso específico de 23 kN/m³. As dimensões do muro são indicadas em metros. enunciado 1049408-1
O solo contido por esse muro é uma areia com peso específico aparente natural de 16 kN/m³. Considerando que o coeficiente de empuxo ativo do solo contido é igual a 0,333, o fator de segurança ao tombamento deste muro é da ordem de:
 

Provas

Questão presente nas seguintes provas
1049407 Ano: 2017
Disciplina: Engenharia Civil
Banca: FAEPESUL
Orgão: Pref. Governador Celso Ramos-SC
Provas:
Uma viga metálica construída em aço tem 4000 mm de comprimento e seção transversal conforme mostrado na figura a seguir.
enunciado 1049407-1
Dimensões em mm Se esta viga for submetida a uma carga de 50 kN, desprezando seu peso próprio, e o aço com o qual foi construída tem módulo de elasticidade da ordem de 200 GPa, qual a deformação axial que o elemento sofrerá:
 

Provas

Questão presente nas seguintes provas
1049406 Ano: 2017
Disciplina: Engenharia Civil
Banca: FAEPESUL
Orgão: Pref. Governador Celso Ramos-SC
Provas:
O gerenciamento de um projeto consiste na eficaz e eficiente coordenação de recursos humanos, materiais, financeiros e de esforços para se obter, ao final do prazo pré-estabelecido, a obra construída atendendo o custo a qualidade e o risco. Sobre as ferramentas de gerenciamento de projetos é INCORRETO afirmar que:
 

Provas

Questão presente nas seguintes provas
1049405 Ano: 2017
Disciplina: Engenharia Civil
Banca: FAEPESUL
Orgão: Pref. Governador Celso Ramos-SC
Provas:
Em obras civis, sejam prediais ou de infraestrutura, o apoio de uma equipe de topografia é muito importante, uma vez que permite a correta locação dos elementos de relevância para o projeto. Sobre os procedimentos e conceitos associados à topografia é INCORRETO afirmar que:
 

Provas

Questão presente nas seguintes provas