Foram encontradas 40 questões.
Com referência ao município de Capivari, analise as alternativas abaixo e assinale a incorreta:
Provas
O projeto hidrossanitário é um projeto complementar. Nele estão as informações necessárias para a correta distribuição de águas dentro da obra, tanto a água fria como água quente, bem como a coleta e a entrega na rede coletora de esgoto.
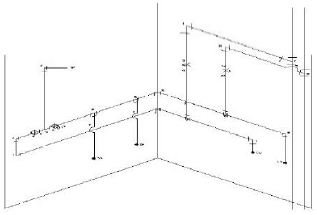
Com referência a Projetos, observe a figura abaixo:

A figura representa:
Provas
Observe as ferramentas abaixo:

A ferramenta que consta como instrumento de primeira necessidade para o encanador é denominada:
Provas
Observe o pentágono abaixo:

Para que seu perímetro seja igual à de um hexágono regular de 3 cm de lado, qual a medida que cada lado desse pentágono deverá medir?
Provas
Regina fez três quadradinhos de crochê. O primeiro com as medidas de lado conforme a figura abaixo. O segundo, medindo a raiz quadrada da medida do lado do primeiro quadradinho, e o terceiro, medindo a raiz quadrada da medida do lado do segundo. Qual a medida do lado de cada quadradinho que Regina fez?

Provas
Leia o texto a seguir para responder a questão:

https://func.eng.ufmg.br - Acesso em 30/04/2016
Assinale a alternativa que melhor descreve o tema abordado na tirinha apresentada:
Provas
- Estatística DescritivaMedidas de Tendência CentralMédiasMédia AritméticaMédia Simples (Não Agrupados)
O senhor Manoel é taxista. Durante a semana trabalhou conforme mostra a tabela abaixo.
| Percurso Semanal | |
| Dia da Semana | KM |
| Domingo | 16 |
| Segunda-feira | 134 |
| Terça-feira | 101 |
| Quarta-feira | 246 |
| Quinta-feira | 121 |
| Sexta-feira | 97 |
| Sábado | 76 |
Qual a média diária de quilômetros percorridos?
Provas
Leia o texto a seguir para responder a questão:
Planeta Água
Água que nasce na fonte serena do mundo
E que abre um profundo grotão
Água que faz inocente riacho
E deságua na corrente do ribeirão
Águas escuras dos rios
Que levam a fertilidade ao sertão
Águas que banham aldeias
E matam a sede da população
Águas que caem das pedras
No véu das cascatas, ronco de trovão
E depois dormem tranquilas
No leito dos lagos
No leito dos lagos
Água dos igarapés
Onde Iara, a mãe d'água
É misteriosa canção
Água que o sol evapora
Pro céu vai embora
Virar nuvens de algodão
Gotas de água da chuva
Alegre arco-íris sobre a plantação
Gotas de água da chuva
Tão tristes, são lágrimas na inundação
Águas que movem moinhos
São as mesmas águas que encharcam o chão
E sempre voltam humildes
Pro fundo da terra
Pro fundo da terra
Terra! Planeta Água
Terra! Planeta Água
Terra! Planeta Água
Água que nasce na fonte serena do mundo
E que abre um profundo grotão
Água que faz inocente riacho
E deságua na corrente do ribeirão
Águas escuras dos rios
Que levam a fertilidade ao sertão
Águas que banham aldeias
E mataram a sede da população
Águas que movem moinhos
São as mesmas águas que encharcam o chão
E sempre voltam humildes
Pro fundo da terra
Pro fundo da terra
Terra! Planeta Água
Terra! Planeta Água
Terra! Planeta Água
Guilherme Arantes
Analise as seguintes afirmativas:
1. Na palavra água há um ditongo.
2. Na palavra riacho há um hiato.
3. Na palavra céu há um ditongo.
4. Na palavra terra há um encontro consonantal.
Estão corretas as afirmativas:
Provas
Roberta aplicou R$5.000,00 a juro simples, sendo a taxa de 1,8% ao mês. O dinheiro permaneceu aplicado por 3 meses e nesse tempo ela teve que fazer uma retirada de R$ 1.500,00. O restante ela aplicou a juros simples de 2, 6% ao mês, durante 3 meses. No final dos 6 meses, Roberta ficou com:
Provas
Leia o texto a seguir para responder a questão:
Planeta Água
Água que nasce na fonte serena do mundo
E que abre um profundo grotão
Água que faz inocente riacho
E deságua na corrente do ribeirão
Águas escuras dos rios
Que levam a fertilidade ao sertão
Águas que banham aldeias
E matam a sede da população
Águas que caem das pedras
No véu das cascatas, ronco de trovão
E depois dormem tranquilas
No leito dos lagos
No leito dos lagos
Água dos igarapés
Onde Iara, a mãe d'água
É misteriosa canção
Água que o sol evapora
Pro céu vai embora
Virar nuvens de algodão
Gotas de água da chuva
Alegre arco-íris sobre a plantação
Gotas de água da chuva
Tão tristes, são lágrimas na inundação
Águas que movem moinhos
São as mesmas águas que encharcam o chão
E sempre voltam humildes
Pro fundo da terra
Pro fundo da terra
Terra! Planeta Água
Terra! Planeta Água
Terra! Planeta Água
Água que nasce na fonte serena do mundo
E que abre um profundo grotão
Água que faz inocente riacho
E deságua na corrente do ribeirão
Águas escuras dos rios
Que levam a fertilidade ao sertão
Águas que banham aldeias
E mataram a sede da população
Águas que movem moinhos
São as mesmas águas que encharcam o chão
E sempre voltam humildes
Pro fundo da terra
Pro fundo da terra
Terra! Planeta Água
Terra! Planeta Água
Terra! Planeta Água
Guilherme Arantes
Leia os versos abaixo e analise os vocábulos sublinhados:
1. ”Que levam a fertilidade ao sertão” - é verbo que faz parte da primeira conjugação e está no presente do indicativo.
2. ” Água que o sol evapora”- é verbo que faz parte da segunda conjugação e está no presente do indicativo.
3. ” - E que abre um profundo grotão- é verbo que faz parte da terceira conjugação e está no presente do indicativo.
Está (ão) correta (s) a (s) afirmativa (s):
Provas
Caderno Container