Foram encontradas 40 questões.
Para que o momento fletor no trecho horizontal do quadro à direita do ponto de aplicação da força Q seja zero, é necessário que a tangente de !$ \alpha !$ seja igual a:
Provas
Com relação aos esforços cortantes ao longo do quadro, é correto afirmar que:
Provas

Assinale a alternativa que apresenta o tipo e o valor do esforço normal no trecho do quadro que chega no apoio do 2º gênero.
Provas

A barra acima esquematizada está submetida a um momento de torção tal que as tensões se mantêm abaixo das tensões de escoamento de cisalhamento, dentro do regime elástico do material. Todas as seções se mantêm planas e conservam sua forma.
Sabendo-se que, nesta situação, em relação ao eixo da barra, a tensão máxima de cisalhamento vale 100 MPa, o valor mínimo desta tensão, em MPa, é:
Provas
A resistência à tração direta do concreto, fct, segundo a NBR 6118/2004 (Projeto de Estruturas de Concreto – Procedimento), pode ser considerada igual a xfct,sp (resistência do concreto à tração indireta) ou yfct,f (resistência do concreto à tração na flexão). Os valores de x e y, que enquadram esta sentença dentro da referida norma, são, respectivamente:
Provas
Segundo a NBR 6118/2004 (Projeto de Estruturas de Concreto – Procedimento), quando a massa específica do concreto for conhecida, pode-se considerar para valor da massa específica do concreto armado aquela do concreto simples, acrescida, em kg/m3, de:
Provas
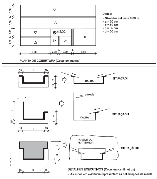
O croqui e os dados abaixo referem-se a um projeto de impermeabilização.

Conforme o croqui e os detalhes fornecidos, a área geométrica total a ser impermeabilizada, em m2, sem perdas, é:
Provas
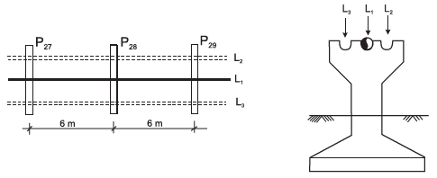
Observe o croqui e os dados abaixo, referentes a uma estrutura destinada a apoiar três linhas de dutos.

Dados:
!$ \bullet !$ !$ \pi \, = \, 3,14 !$
!$ \bullet !$ Diâmetro interno da L1 = 400 mm
!$ \bullet !$ Densidade do líquido transportado = 0,90 kg/dm3
!$ \bullet !$ Peso do tubo = 50 kgf/m
!$ \bullet !$ Taxa de resistência do solo !$ \sigma !$ = 0,5 kgf/cm2
!$ \bullet !$ Não majorar ou minorar qualquer dado.
!$ \bullet !$ Considerar apenas os esforços estáticos.
!$ \bullet !$ Não considerar o peso da estrutura de apoio (pilar e sapata).
!$ \bullet !$ Sapatas de 60 cm x 60 cm são as bases dos pilares.
!$ \bullet !$ Situação atual: só existe a L1 .
!$ \bullet !$ T1 : tensão ativa provocada por L1, em kgf/cm2
Considerando-se a necessidade da instalação das linhas L2 e L3, sem alteração da estrutura atual, é correto afirmar que, no P28:
Provas
Considere o croqui e os dados abaixo, referentes à cobertura metálica de um galpão.

Dados:
!$ \bullet !$ Telhas metálicas em estoque:
. Tipo I : 700 peças
. Tipo II: 1.200 peças
. Tipo III: 4.000 peças
!$ \bullet !$ Medidas úteis das telhas metálicas em estoque:
|
Tipo |
Comprimento (m) |
Largura (m) |
| I | 6,00 | 0,50 |
| II | 2,00 | 0,50 |
| III | 1,00 | 0,50 |
Observação:
. As fiadas só podem ser constituídas por um tipo de telha.
. As faixas podem ter telhas de tipos diferentes.
. Não são admitidos cortes nas telhas.
Utilizando-se prioritariamente as telhas maiores, as menores quantidades de telhas metálicas a serem usadas para a cobertura do galpão dado, considerando-se as medidas úteis e o estoque fornecido dos tipos I, II e III, são, respectivamente:
Provas

Dados:
!$ \bullet !$ Na primeira fiada:
x !$ \rightarrow !$ 10 blocos Tipo 1 assentados
y !$ \rightarrow !$ 8 blocos Tipo 2 assentados
!$ \bullet !$ Blocos (medidas em centímetros)
Tipo 1 = 14 x 19 x 39
Tipo 2 = 14 x 19 x 19
!$ \bullet !$ Pé direito = 3,01 m
!$ \bullet !$ Os blocos não serão revestidos.
!$ \bullet !$ Todas as juntas até o teto serão de 1 cm (inclusive o assentamento e o aperto).
!$ \bullet !$ Todas as juntas são argamassadas. Não existe junta seca.
!$ \bullet !$ Não considerar perdas.
!$ \bullet !$ Considerar medidas geométricas exatas.
!$ \bullet !$ O bloco não é vazado, portanto considerar a espessura 1cm de junta, plenamente, em toda a superfície de contato, seja horizontal ou vertical (bloco assente com a boca para baixo).
!$ \bullet !$ Não existe amarração entre paredes de topo por meio de intercalamento de fiadas (a amarração é feita por grampos horizontais).
O valor geométrico do volume das juntas do trecho x da parede 1, em cm3, é:
Provas
Caderno Container