Foram encontradas 45 questões.
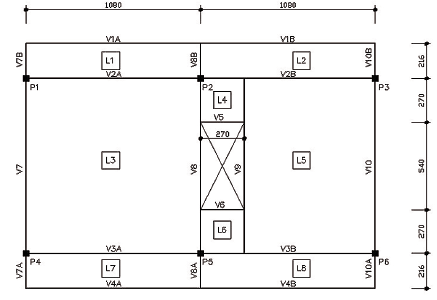
A questão refere-se ao desenho a seguir que é um esquema estrutural de um projeto de cálculo estrutural de uma edificação.

É CORRETO afirmar que nesse desenho estão representados:
Provas
Questão presente nas seguintes provas
TEXTO
Em 1988, a Constituição brasileira reconheceu a saúde como um direito do cidadão e um dever do Estado e estabeleceu a base para a criação do SUS, que se fundamenta nos princípios da universalidade, integralidade e participação social. Esse reconhecimento constitucional do direito à saúde só foi possível após longa luta política e graças à atuação do Movimento pela Reforma Sanitária. A implantação de um sistema de saúde universal no Brasil teve início em um contexto político e econômico desfavorável, que promovia a ideologia neoliberal, perspectiva essa reforçada por organizações internacionais contrárias ao financiamento público de sistemas de saúde nacionais e universais ou que defendiam etapas intermediárias para atingi-los.
Nos últimos 20 anos, houve avanços na implementação do SUS. Realizaram-se inovações institucionais, como um intenso processo de descentralização que outorgou maior responsabilidade aos municípios na gestão dos serviços de saúde, além de possibilitar os meios para promover e formalizar a participação social na criação de políticas de saúde e no controle do desempenho do sistema. O SUS aumentou amplamente o acesso aos cuidados de saúde para grande parte da população brasileira, atingindo-se a cobertura universal para a vacinação e a assistência pré-natal; aumentou a conscientização da população sobre o direito à saúde vinculado à cidadania; e investiu na expansão dos recursos humanos e da tecnologia em saúde, incluindo a produção da maior parte dos insumos e produtos farmacêuticos do país.
No entanto, o SUS é um sistema de saúde em desenvolvimento que continua a lutar para garantir a cobertura universal e equitativa. À medida que a participação do setor privado no 20 mercado aumenta, as interações entre os setores público e privado criam contradições e injusta competição, levando a ideologias e objetivos opostos (acesso universal vs. segmentação do mercado), que geram resultados negativos na equidade, no acesso aos serviços de saúde e nas condições de saúde.
Embora o financiamento federal tenha aumentado cerca de quatro vezes desde o início da última década, a porcentagem do orçamento federal destinada ao setor de saúde não cresceu, levando a restrições de financiamento, infraestrutura e recursos humanos.
Outros desafios surgem por conta de transformações nas características demográficas e epidemiológicas da população brasileira, o que obriga a transição de um modelo de atenção centrado nas doenças agudas para um modelo baseado na promoção intersetorial da saúde e na integração dos serviços de saúde. O Pacto pela Saúde e sua proposta de uma rede de serviços de saúde organizada com fundamentos na atenção básica, associados às recomendações da Comissão Nacional sobre Determinantes Sociais da Saúde, segundo as quais é essencial abordar as causas primordiais dos problemas de saúde, podem ajudar nessa conformação de modelos de atenção mais abrangentes, por mais que ainda seja necessário superar enormes dificuldades.
Em última análise, para superar os desafios enfrentados pelo sistema de saúde brasileiro, será necessária uma nova estrutura financeira e uma revisão profunda das relações público privadas. Portanto, o maior desafio enfrentado pelo SUS é político. Questões como o financiamento, a articulação público-privada e as desigualdades persistentes não poderão ser resolvidas unicamente na esfera técnica. As bases legais e normativas já foram estabelecidas e já se adquiriu bastante experiência operacional. Agora é preciso garantir ao SUS sua sustentabilidade política, econômica, científica e tecnológica.
PAIM, J, TRAVASSOS, C, ALMEIDA, C, MACINKO,J. IN: The Lancet (Série Brasil) London, 2011, p.21-31. Disponível em: <http://download.thelancet.com/flatcontentassets/pdfslbrazillbrazilporl.pdf>.
São tratados, no texto, os seguintes temas e suas características, EXCETO.
Provas
Questão presente nas seguintes provas
Analise e responda a questão, de acordo com Lei nº 8.112, de 11/12/1990 e suas alterações.
A demissão será aplicada nos seguintes casos, EXCETO:
Provas
Questão presente nas seguintes provas
TEXTO
Em 1988, a Constituição brasileira reconheceu a saúde como um direito do cidadão e um dever do Estado e estabeleceu a base para a criação do SUS, que se fundamenta nos princípios da universalidade, integralidade e participação social. Esse reconhecimento constitucional do direito à saúde só foi possível após longa luta política e graças à atuação do Movimento pela Reforma Sanitária. A implantação de um sistema de saúde universal no Brasil teve início em um contexto político e econômico desfavorável, que promovia a ideologia neoliberal, perspectiva essa reforçada por organizações internacionais contrárias ao financiamento público de sistemas de saúde nacionais e universais ou que defendiam etapas intermediárias para atingi-los.
Nos últimos 20 anos, houve avanços na implementação do SUS. Realizaram-se inovações institucionais, como um intenso processo de descentralização que outorgou maior responsabilidade aos municípios na gestão dos serviços de saúde, além de possibilitar os meios para promover e formalizar a participação social na criação de políticas de saúde e no controle do desempenho do sistema. O SUS aumentou amplamente o acesso aos cuidados de saúde para grande parte da população brasileira, atingindo-se a cobertura universal para a vacinação e a assistência pré-natal; aumentou a conscientização da população sobre o direito à saúde vinculado à cidadania; e investiu na expansão dos recursos humanos e da tecnologia em saúde, incluindo a produção da maior parte dos insumos e produtos farmacêuticos do país.
No entanto, o SUS é um sistema de saúde em desenvolvimento que continua a lutar para garantir a cobertura universal e equitativa. À medida que a participação do setor privado no 20 mercado aumenta, as interações entre os setores público e privado criam contradições e injusta competição, levando a ideologias e objetivos opostos (acesso universal vs. segmentação do mercado), que geram resultados negativos na equidade, no acesso aos serviços de saúde e nas condições de saúde.
Embora o financiamento federal tenha aumentado cerca de quatro vezes desde o início da última década, a porcentagem do orçamento federal destinada ao setor de saúde não cresceu, levando a restrições de financiamento, infraestrutura e recursos humanos.
Outros desafios surgem por conta de transformações nas características demográficas e epidemiológicas da população brasileira, o que obriga a transição de um modelo de atenção centrado nas doenças agudas para um modelo baseado na promoção intersetorial da saúde e na integração dos serviços de saúde. O Pacto pela Saúde e sua proposta de uma rede de serviços de saúde organizada com fundamentos na atenção básica, associados às recomendações da Comissão Nacional sobre Determinantes Sociais da Saúde, segundo as quais é essencial abordar as causas primordiais dos problemas de saúde, podem ajudar nessa conformação de modelos de atenção mais abrangentes, por mais que ainda seja necessário superar enormes dificuldades.
Em última análise, para superar os desafios enfrentados pelo sistema de saúde brasileiro, será necessária uma nova estrutura financeira e uma revisão profunda das relações público privadas. Portanto, o maior desafio enfrentado pelo SUS é político. Questões como o financiamento, a articulação público-privada e as desigualdades persistentes não poderão ser resolvidas unicamente na esfera técnica. As bases legais e normativas já foram estabelecidas e já se adquiriu bastante experiência operacional. Agora é preciso garantir ao SUS sua sustentabilidade política, econômica, científica e tecnológica.
PAIM, J, TRAVASSOS, C, ALMEIDA, C, MACINKO,J. IN: The Lancet (Série Brasil) London, 2011, p.21-31. Disponível em: <http://download.thelancet.com/flatcontentassets/pdfslbrazillbrazilporl.pdf>.
Assinale a alternativa em que o termo entre parênteses é antônimo do termo sublinhado nas passagens extraídas do texto.
Provas
Questão presente nas seguintes provas
Caracterização CORRETA das fases do projeto arquitetônico, segundo a norma NBR 6492/ 94 é:
Provas
Questão presente nas seguintes provas
A questão refere-se ao desenho a seguir que é um esquema estrutural de um projeto de cálculo estrutural de uma edificação.

Com base no desenho, é CORRETO afirmar que
Provas
Questão presente nas seguintes provas
Acerca do livro “Lições de arquitetura” (1999), de Hertzberger, assinale a alternativa INCORRETA.
Provas
Questão presente nas seguintes provas
Segundo a norma ABNT 9050/1992:
I. Ao longo dos patamares, escadas, corredores e mezaninos, a altura dos guarda-corpos deve ser, no mínimo, de 105cm.
II. Os corrimãos devem ser adotados nas laterais das rampas quando elas ultrapassam 92cm acima do plano onde se assentam.
III. Os corrimãos devem ser afastados 4cm das paredes ou guardas às quais estariam fixados.
IV. As escadas e as rampas com a largura superior a 240cm devem receber o corrimão intermediário.
São CORRETAS as afirmativas
Provas
Questão presente nas seguintes provas
O conforto térmico de uma edificação pode ser alcançado ou melhorado, também, por algumas soluções definidas já no projeto arquitetônico. O corte esquemático a seguir mostra, com as setas, o efeito chaminé.

Assinale a afirmativa CORRETA.
Provas
Questão presente nas seguintes provas
Considere que estas figuras geométricas das alternativas a seguir representam esquemas de plantas de projetos arquitetônicos cujas áreas construídas são as mesmas, com o mesmo padrão de acabamento e a mesma proporção de aberturas nas fachadas. Qual forma geométrica permitiria maior economia de custo com o revestimento das paredes externas?
Provas
Questão presente nas seguintes provas
Cadernos
Caderno Container