Foram encontradas 219 questões.
Provas
Provas
Provas
Provas
A soma da medida do ângulo interno x e da medida do ângulo externo y é igual a
Provas
Se 450 candidatos foram reprovados na primeira fase, então o número de candidatos reprovados na segunda fase foi igual a
Provas
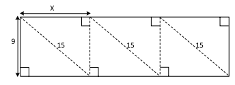
De uma tira de papel, de formato retangular, foram recortados 6 triângulos retângulos congruentes, conforme mostra a figura, com dimensões indicadas em centímetros.

Os 6 triângulos recortados têm, juntos, área de
Provas
Na figura, as medidas, em centímetros, dos lados de um RASCUN H O painel retangular são indicadas por 12n e 16n, em que n representa um número natural.

Se a área desse painel é 4800 cm², então seu perímetro é igual a
Provas
Os recipientes A e B têm forma cúbica e arestas que medem 3 cm e 6 cm, respectivamente, conforme indicado nas figuras. Sabe-se que o recipiente A está completamente cheio com certo líquido, e o recipiente B contém uma quantidade do mesmo líquido igual a 25% da sua capacidade total.

Se o conteúdo do recipiente A for totalmente despejado no recipiente B, o nível do líquido no recipiente B atingirá uma altura de
Provas
Sobre os lados de um retângulo ABCD estão os vértices de um triângulo DEF, conforme mostra a figura.

Sabendo que F é ponto médio do lado BC, a medida, em cm, da altura FG é aproximadamente
Provas
Caderno Container