Foram encontradas 50 questões.
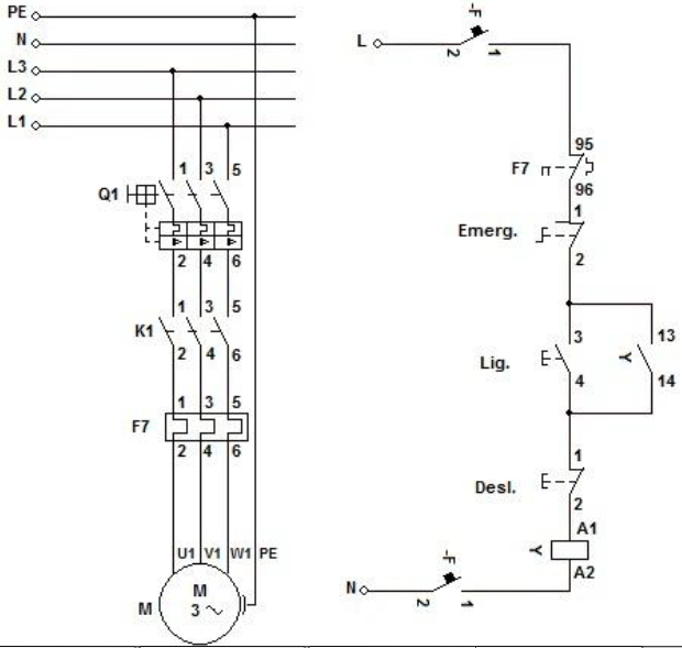
Analise a seguinte figura referente a um esquema de partida direta para um motor trifásico.

Analise as afirmativas relacionadas a esse esquema assinalando com V as verdadeiras e com F as falsas.
( ) A corrente de partida pode chegar a até oito vezes o valor nominal.
( ) Não oferece torque nominal na partida.
( ) Apresenta alto consumo de energia na partida.
( ) A tensão fornecida é maior que a nominal do motor.
Assinale a alternativa que apresenta a sequência CORRETA de letras.
Provas
Em um sistema de supervisão e controle para um sistema elétrico, é necessário adaptar as grandezas presentes nesse sistema aos circuitos de entrada do sistema de controle.
Para isso, utilizam-se dispositivos de interface tais como
Provas
A automação de uma subestação de energia elétrica envolve muitos métodos e equipamentos interligados em uma central de controle. Torna-se importante uma rede de comunicação de dados.
Nesse contexto, o padrão RS-485
Provas
A principal aplicação de um relé de sobrecarga é de
Provas
Os fusíveis de segurança são elementos inseridos nos circuitos para interrompê-los em situações anormais de corrente.
Os fusíveis de efeito rápido NÃO devem ser empregados em circuito com
Provas
O gerenciamento dos custos do projeto inclui os processos envolvidos em estimativas, orçamentos e controle de custos. Entre as técnicas para se estimar custos em um projeto se encontra a estimativa bottom-up.
Quanto a essa estimativa, está CORRETO afirmar que
Provas
O gerenciamento do tempo do projeto inclui os processos necessários para gerenciar o término pontual do projeto.
Um desses processos é o de
Provas
Considere um gerador síncrono, girando a 200 rpm, que fornece uma tensão CA na frequência de 60 Hz.
Nesse caso, esse gerador terá um número de polos igual a
Provas
De acordo com a norma NBR 14039, as instalações elétricas devem ser projetadas e construídas para suportar com segurança os efeitos térmicos e mecânicos resultantes de correntes de curto-circuito.
Considerando a citada norma, NÃO constitui um tipo de curto-circuito aquele ocorrido entre
Provas
A construção de medidores analógicos para medidas elétricas baseia-se em diversos princípios físicos para a realização da medição.
Dentre esses princípios, encontra-se o princípio
Provas
Caderno Container