Foram encontradas 50 questões.
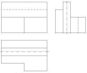
Observe a seguinte perspectiva isométrica.

Assinale a alternativa que apresenta as vistas ortográficas CORRETAS da peça representada em perspectiva.
Provas
Observe a seguinte figura em que um sólido foi cortado.

Com relação ao corte realizado, está CORRETO afirmar que se utilizou do
Provas
- Equipamentos de RedeHub
- Equipamentos de RedeRepetidor
- Equipamentos de RedeRoteador
- Equipamentos de RedeSwitch
De acordo com as características dos componentes das redes de computadores, assinale com V as afirmativas verdadeiras e com F as falsas.
( ) A conexão de dois ou mais hubs, utilizando-se das portas convencionais, é possível por meio do emprego de cabos cross-over.
( ) O patch panel, utilizado nos sistemas de cabeamento estruturado, é exemplo de hub passivo – concentrador de cabos.
( ) O repetidor conecta dois segmentos de rede que operam em arquiteturas diferente tais como uma rede Ethernet a uma Token Ring.
( ) O roteador é capaz de ler e analisar os datagramas IP contidos nos quadros transmitidos pela rede.
( ) Os switches são repetidores contendo várias portas que enviam um quadro de dados, simultaneamente, para todas as suas portas.
Assinale a alternativa que apresenta a sequência de letras CORRETA.
Provas
- Arquitetura de RedesArquitetura Cliente/Servidor e P2P
- Arquitetura de RedesDefinição Técnica de Arquitetura de Redes
Analise as seguintes afirmativas relacionadas às redes de computadores.
!$ \bullet !$ Maior um custo de implantação da rede.
!$ \bullet !$ Maior desempenho e alta segurança em relação a outras redes.
!$ \bullet !$ A manutenção é realizada de maneira centralizada pelo administrador.
!$ \bullet !$ Utilizada em redes com mais de 10 micros ou pequenas redes.
Essas afirmativas caracterizam a rede
Provas
Observe o seguinte diagrama de blocos de um enlace de microondas.

Com relação a esse enlace, verifica-se o emprego da diversificação
Provas
Observe o seguinte link de microondas.

Com relação a esse link, está CORRETO afirmar que caracteriza o emprego de uma estação
Provas
Os fabricantes de antenas fornecem em seus catálogos uma tabela como a da figura abaixo relativa ao empilhamento de antenas em um mesmo mastro.
|
B I 2 ao 6 |
FM |
B III 7 ao 13 |
B IV UHF |
B V UHF |
|
|
B I 2 ao 6 |
3,0 m |
1,7 m |
1,5 m |
1,0 m |
0,9 m |
|
FM |
1,7 m |
1,3 m |
1,1 m |
0,9 m |
1,8 m |
|
B III 7 ao 13 |
1,5 m |
1,1 m |
1,0 m |
0,8 m |
0,7 m |
|
B IV UHF |
1,0 m |
0,9 m |
0,8 m |
0,7 m |
0,6 m |
|
B V UHF |
0,9 m |
0,8 m |
0,7 m |
0,6 m |
0,5 m |
Nesse caso, assinale a alternativa que apresenta a CORRETA instalação de três antenas em um mesmo mastro.
Provas
Observe a seguinte figura que apresenta uma antena e sua distribuição de tensão e corrente.

Nesse caso, trata-se de uma antena
Provas
Observe a seguinte figura.

Considere que esse transmissor foi conectado a uma antena de impedância igual a 300 !$ Ω !$ por meio de um cabo coaxial de impedância igual a 75 !$ Ω !$.
Nesse caso, a relação de onda estacionária e o coeficiente de reflexão são, respectivamente, iguais a
Provas
De acordo com a propagação das ondas eletromagnéticas, assinale com V as afirmativas verdadeiras e com F as falsas.
( ) É importante que o vetor campo elétrico seja perpendicular à superfície condutora porque, senão, correntes induzidas serão estabelecidas na superfície resultando em reflexões.
( ) O principal requisito para a formação de ductos atmosféricos é a chamada inversão de temperatura, isto é, decréscimo da temperatura com o aumento da altura na atmosfera.
( ) A propagação por dispersão troposférica sujeita-se a dois tipos de desvanecimento: um provocado pelas múltiplas trajetórias e outro pelas variações nas condições atmosféricas.
( ) Em frequências inferiores à faixa de VHF, a interferência apresenta pouca importância em função do grande comprimento de onda.
( ) Para frequências superiores a 30 MHz, é possível esperar que a onda eletromagnética seja refletida regularmente na ionosfera.
Assinale a alternativa que apresenta a sequência de letras CORRETA.
Provas
Caderno Container