Foram encontradas 820 questões.
- TermodinâmicaLeis e Propriedades da Termodinâmica
- TermodinâmicaTransferência de Calor (Condução, Convecção e Radiação)
Quanto à termodinâmica, julgue o item.
O exemplo anterior é uma consequência da segunda lei da termodinâmica, pois é impossível construir um dispositivo que opere num ciclo termodinâmico e que não produza outros efeitos além do levantamento de um peso e troca de calor em um único reservatório térmico.
Provas
- TermodinâmicaLeis e Propriedades da Termodinâmica
- TermodinâmicaTransferência de Calor (Condução, Convecção e Radiação)
Quanto à termodinâmica, julgue o item.
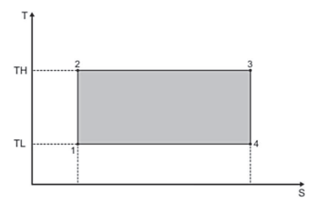
A figura a seguir representa um ciclo de Carnot para máquinas térmicas. Considerando uma máquina ideal que opera entre fonte quente e fonte fria de temperaturas 350 °C e 127 °C, respectivamente, é correto afirmar que o rendimento térmico será de 64,2%.

Provas
- Mecânica dos FluidosDescrição dos Fluidos
- Mecânica dos FluidosEstática dos Fluidos
- Mecânica dos FluidosFundamentos e Análise da Cinemática de Escoamentos
Com base nessa situação hipotética, julgue o item.
Poderão ser consideradas como hipóteses simplificadoras: escoamento permanente; incompressível; sem atrito; escoamento ao longo de uma linha de corrente e sem variação de energia potencial.
Provas
- Mecânica dos FluidosDescrição dos Fluidos
- Mecânica dos FluidosEstática dos Fluidos
- Mecânica dos FluidosFundamentos e Análise da Cinemática de Escoamentos
Com base nessa situação hipotética, julgue o item.
Se a vazão for dobrada, a diferença de pressão também será dobrada.
Provas
- Mecânica dos FluidosDescrição dos Fluidos
- Mecânica dos FluidosEstática dos Fluidos
- Mecânica dos FluidosFundamentos e Análise da Cinemática de Escoamentos
Com base nessa situação hipotética, julgue o item.
A diferença de pressão entre a saída e a entrada será de, aproximadamente, 15 kPa quando a vazão for de 0,1m³/s.
Provas
- Mecânica dos FluidosDescrição dos Fluidos
- Mecânica dos FluidosEstática dos Fluidos
- Mecânica dos FluidosFundamentos e Análise da Cinemática de Escoamentos
Tubos de venturi são apropriados para medir escoamento de fluidos compressíveis em grandes tubulações, pois não há nenhum elemento mecânico no escoamento.
Provas
- Mecânica dos FluidosDescrição dos Fluidos
- Mecânica dos FluidosEstática dos Fluidos
- Mecânica dos FluidosFundamentos e Análise da Cinemática de Escoamentos
O tubo de pitot é largamente utilizado na aviação para medir a velocidade do ar, calculando a diferença entre a pressão estática e dinâmica usando o princípio de Bernoulli.
Provas
- Mecânica dos FluidosDescrição dos Fluidos
- Mecânica dos FluidosEstática dos Fluidos
- Mecânica dos FluidosFundamentos e Análise da Cinemática de Escoamentos
O estudo da viscosidade é relevante para a mecânica dos fluidos. A água possui parâmetro referencial pela sua abundância na natureza e sua aplicabilidade, sendo considerada como viscosidade nula.
Provas
- Mecânica dos FluidosDescrição dos Fluidos
- Mecânica dos FluidosEstática dos Fluidos
- Mecânica dos FluidosFundamentos e Análise da Cinemática de Escoamentos
A respeito da mecânica dos fluidos, julgue o item.
Os fluidos nos quais a tensão de cisalhamento é diretamente proporcional à taxa de deformação são fluidos newtonianos.
Provas
Acerca de um ensaio de tração de um aço e seu gráfico resultante apresentado a seguir, na mecânica dos materiais, julgue o item.

A Lei de Hooke é representada da seguinte forma:
\( \sigma = \dfrac{N}{A} \)
Em que:
σ = Tensão
N = Força
A = área
Provas
Caderno Container