Foram encontradas 50 questões.
Uma piscina será construída em concreto armado. Suas dimensões internas são 9,8m x 5,8m. A espessura das paredes é 10cm. A espessura do fundo é 15cm. A altura interna é 2m. O volume de concreto estimado para a execução desta piscina é:
Provas
A norma ABNT NBR 6492:1994 (Representação de projetos de arquitetura) estabelece que deve-se indicar, nos cortes dos projetos executivos, as cotas de nível acabado e em osso. Estas cotas devem ser indicadas:
Provas
Em determinado desenho foi utilizada a escala 1:500. Uma dimensão real de 100 metros será representada neste desenho por:
Provas
Observe as projeções ortogonais do sólido abaixo, cujas dimensões indicadas estão em centímetro:

O volume deste sólido em centímetros cúbicos é:
Provas
Observe a tabela de ferros abaixo, constante de um desenho de armadura.

Sabendo-se que a massa unitária do ferro com diâmetro 12,5mm é igual a 1,0 kg/m, a massa total deste ferro, neste desenho,em kg, é igual a:
Provas
Faça a associação abaixo, considerando a norma ABNT NBR 6492:1994 (Representação de projetos de arquitetura), relativa ao contido nos documentos típicos elaborados na fase de projeto executivo:
1. Planta de locação
2. Plantas
3. Fachadas
4. Cortes
( ) Denominação e numeração dos compartimentos com suas respectivas áreas úteis.
( ) Indicação das vias de acesso, vias internas, estacionamento, áreas cobertas, taludes e platôs.
( ) indicação das cotas verticais.
( ) indicação de convenção gráfica dos materiais.
A associação correta é:
Provas
De acordo com a norma NBR 6492:1994 (Representação de projetos de arquitetura), sendo necessário o dobramento de folhas das cópias de desenho, o formato final dever ser o:
Provas
A norma ABNT NBR 5444:1989 estabelece os símbolos gráficos referentes às instalações elétricas prediais. Segundo esta norma, o símbolo abaixo representa condutor:
![]()
Provas
De acordo com a norma ABNT NBR 8160:1999 (Sistemas prediais de esgoto sanitário – Projeto e execução) é correto afirmar que:
Provas
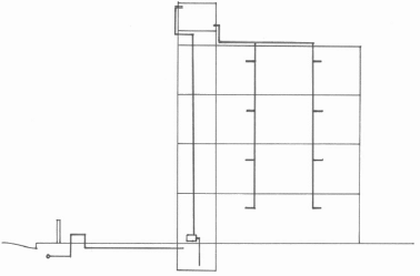
Observe a figura abaixo, relativa à forma de abastecimento de água nos pontos de utilização de uma edificação.

Este tipo de abastecimento é denominado de distribuição:
Provas
Caderno Container