Foram encontradas 375 questões.
Com relação aos processos de usinagem dos metais, relacione a COLUNA II com COLUNA I, associando a nomenclatura à sua respectiva definição.
COLUNA I
1. Torneamento
2. Perfilamento
3. Fresamento
4. Retificação
5. Brunimento
COLUNA II
( ) Processo que determina uma forma definida pelo perfil da ferramenta.
( ) Processo de usinagem por abrasão para obtenção de superfícies.
( ) Processo de usinagem empregado no acabamento de furos cilíndricos com auxílio de uma ferramenta abrasiva.
( ) Processo de usinagem destinado à obtenção de superfície quaisquer com ferramentas geralmente multicortantes.
( ) Processo destinado à obtenção de superfícies de revolução com auxílio de ferramentas monocortantes.
Assinale a sequência correta.
Provas
Em relação à perda de carga em uma instalação hidráulica, assinale com V as afirmativas verdadeiras e com F as falsas.
( ) O material empregado na fabricação do tubo pode alterar a perda de carga.
( ) A perda de carga em uma tubulação independe do processo de fabricação deste tubo.
( ) O revestimento interno de uma tubulação pode ser aplicado para reduzir a perda de carga.
( ) A natureza de um fluido, o diâmetro da tubulação e o regime de escoamento influenciam a perda de carga em uma tubulação.
Assinale a sequência correta.
Provas
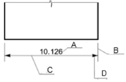
Observe o desenho a seguir.

FRENCH, 2005.
Sobre os elementos de cotagem nesse desenho técnico, A, B, C e D são respectivamente,
Provas
Um dos objetivos dos ensaios não-destrutivos (END) é inspecionar as soldas.
Nesse contexto, relacione a COLUNA II com a COLUNA I, associando os ensaios às suas características específicas.
COLUNA I
1. Líquido penetrante
2. Radiografia por raios X
3. Teste de estanqueidade
4. Partículas Magnéticas
COLUNA II
( ) Sua principal vantagem é a possibilidade de detecção de descontinuidades internas.
( ) Aplica-se em reservatórios, podendo ser por ensaiado pelo método da capilaridade.
( ) Pode ser utilizado para verificar descontinuidades em chapas mais espessas.
( ) Permite detectar descontinuidades como trincas, falta de fusão e porosidade que estão abertas na superfície.
Assinale a sequência correta.
Provas
Analise as afirmativas a seguir sobre o ajuste de tolerância dimensional H6g8 e a relação proposta entre elas.
I. O ajuste é com folga, porém a tolerância fundamental do eixo (IT) possui maior valor dimensional em relação ao (IT) do furo, ISSO
PORQUE
II. o IT 8 está à direita do IT 6 na tabela ISO do sistema de qualidade de tolerâncias.
A respeito dessas afirmativas e de sua inter-relação, é correto afirmar:
Provas
Em montagens industriais, é aceitável que se faça alguma complementação de fabricação em campo, em geral quando se tem as seguintes situações, exceto:
Provas
Sobre ART de cargo ou função, assinale com V as afirmativas verdadeiras e com F as falsas.
( ) O registro da ART de cargo ou função de profissional integrante do quadro técnico da pessoa jurídica não exime o registro de ART de execução de obra ou prestação de serviço.
( ) O vínculo entre o profissional e a pessoa jurídica pode ser comprovado por meio de contrato de trabalho anotado na Carteira de Trabalho e Previdência Social – CTPS, contrato de prestação de serviço, livro ou ficha de registro de empregados, contrato social, ata de assembleia ou ato administrativo de nomeação ou designação do qual constem a indicação do cargo ou função técnica, o início e a descrição das atividades a serem desenvolvidas pelo profissional.
( ) O vínculo para desempenho de cargo ou função técnica, tanto com pessoa jurídica de direito público quanto de direito privado, obriga à anotação de responsabilidade técnica no Crea em cuja circunscrição for exercida a atividade.
( ) Compete a pessoa jurídica cadastrar a ART de cargo ou função no sistema eletrônico de um profissional prestador de serviço e efetuar o recolhimento do valor relativo ao registro no CREA da circunscrição onde for exercida a atividade.
Assinale a sequência correta.
Provas
A descoberta de materiais semicondutores permitiu a construção de diversos dispositivos eletrônicos, entre os quais podem ser destacados os diodos e transistores.
Sobre esses materiais e dispositivos, assinale a alternativa correta.
Provas
Os CLPs (controladores lógicos programáveis) são amplamente utilizados na indústria para a automação e o controle dos mais diversos tipos de processos.
Assinale a alternativa que apresenta linguagens de programação definidas pela Norma IEC 61131.
Provas
A conversão entre bases numéricas é um dos pilares da teoria de sistemas digitais.
Assinale a alternativa que indica a representação decimal para o número binário 110110.
Provas
Caderno Container