Foram encontradas 60 questões.
Atenção: Para responder a questão utilize a figura abaixo que representa a implantação topográfica de um
determinado lote, com sua localização e dimensões.

É necessário cercar o terreno chamado de Lote 20 com uma cerca de alambrado, que deve ter altura de 3,0 m em toda a volta, exceto na frente do terreno, onde a altura deve ser de 2,5 m. Calculando-se a área total, em m2, de alambrado necessário ao fechamento do terreno, chegaremos a um valor dedeterminado lote, com sua localização e dimensões.

Provas
Questão presente nas seguintes provas
Atenção: Para responder a questão utilize o desenho abaixo.

A suíte possui, segundo o desenho, medidas em metros iguais a 2,60 x 4,50. Se utilizarmos uma escala de 1:25 para desenharmos esse ambiente, as medidas em cm serão, respectivamente,
Provas
Questão presente nas seguintes provas
Considere a tabela com os sistemas de impermeabilização.

Está correto o que se afirma em
Provas
Questão presente nas seguintes provas
Considere as figuras:

No processo ilustrado, a estaca é constituída de elementos justapostos (de concreto armado, protendido ou de aço) que são ligados uns aos outros por emenda especial e cravados sucessivamente por meio de macacos hidráulicos. Os referidos elementos ainda buscarão reação sobre a estrutura existente ou na estrutura que esteja sendo construída. Neste contexto, é possível afirmar que trata-se de estaca tipo

No processo ilustrado, a estaca é constituída de elementos justapostos (de concreto armado, protendido ou de aço) que são ligados uns aos outros por emenda especial e cravados sucessivamente por meio de macacos hidráulicos. Os referidos elementos ainda buscarão reação sobre a estrutura existente ou na estrutura que esteja sendo construída. Neste contexto, é possível afirmar que trata-se de estaca tipo
Provas
Questão presente nas seguintes provas
Ao acompanhar a fase de instalação das esquadrias de uma obra, o técnico verificou que foi previsto no memorial descritivo a utilização de janelas constituídas por uma ou várias folhas, que pudessem ser movimentadas por deslizamento vertical, no plano da própria janela, de forma a apresentar ventilação razoavelmente regulável. A janela que atende a estas características é:
Provas
Questão presente nas seguintes provas
Você é o técnico responsável pelo cálculo do volume de aterro que fará parte da planilha orçamentária da execução de um serviço de terraplenagem de uma via, cuja largura e comprimento são, respectivamente, 10,0 m e 5.000 m. Sabe-se que é necessário acrescer 10% do volume, devido à compactação do aterro e que a espessura da camada de aterro é de 20 cm. O volume de terra necessário para a execução do aterro é de
Provas
Questão presente nas seguintes provas
Tendo em vista os elementos Estudo preliminar, Anteprojeto, Projeto executivo e Especificações, considerados no orçamento de obras, assinale a alternativa em que esses elementos estão conceituados corretamente.
Provas
Questão presente nas seguintes provas
Atenção: Para responder a questão utilize o desenho abaixo.

Desprezando as espessuras das paredes, as áreas dos shafts e armários embutidos, a área total, em m2, de pintura de forro calculada, estará entre
Provas
Questão presente nas seguintes provas
Atenção: Para responder a questão utilize o desenho abaixo.

A área total, em m2, de laminado de madeira é
Provas
Questão presente nas seguintes provas
- Sistemas e Processos Construtivos
- Estudos Preliminares
- Estruturas nos Sistemas e Processos Construtivos
- Desenho Técnico em Edificações
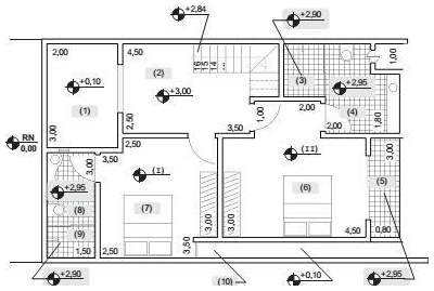
Atenção: Para responder a questão utilize o desenho abaixo.

Para que os ambientes (6) e (7) gerem conforto e segurança ao usuário, além de garantir que os ambientes úmidos não gerem umidade aos ambientes secos, em relação às cotas dos pisos, é correto afirmar que
Provas
Questão presente nas seguintes provas
Cadernos
Caderno Container