Foram encontradas 40 questões.
Os mecanismos de busca são ferramentas que ajudam os usuários a encontrar conteúdos na internet. Qual é a principal função de um site de busca?
Provas
Dentre os componentes de hardware de um computador, qual é a principal placa de circuito que serve como base estrutural e interliga fisicamente todos os outros componentes, permitindo a comunicação e o funcionamento conjunto do computador?
Provas
Com a posse dos novos servidores no IFMS, você recebeu um arquivo do Excel contendo a planilha “controle_servidores”, que armazena informações de todos os servidores da instituição. Para facilitar a atualização dos dados, foi adicionada ao mesmo arquivo uma nova planilha chamada “novos_servidores”, contendo os dados dos aprovados no último concurso.
A planilha “novos_servidores” contém os seguintes dados organizados em colunas:
Coluna A (“CPF”): contém os CPFs dos servidores.
Coluna B (“Nome do Servidor”): contém os nomes correspondentes a cada CPF.
A tabela de dados na planilha “novos_servidores” está no intervalo A2:B100.
Durante a atualização da planilha “controle_servidores”, foi identificado que falta o nome do novo servidor correspondente ao CPF “123.123.123-12”, que já está digitado na célula D2.
Para exibir corretamente o nome desse servidor em qualquer célula na planilha “controle_servidores”, qual das seguintes fórmulas da função PROCV deve ser utilizada?
Provas
A segurança na internet é essencial para proteger dispositivos e informações contra ameaças digitais. Em relação aos diferentes tipos de malware, informe se é verdadeiro (V) ou falso (F) o que se afirma a seguir e assinale a alternativa com a sequência correta.
( ) Phishing é um tipo de malware que se instala em um dispositivo sem o consentimento do usuário, com o objetivo principal de exibir publicidade invasiva.
( ) Vírus são programas maliciosos projetados para interferir no funcionamento normal de um dispositivo, frequentemente se espalhando para outros dispositivos ao infectar arquivos.
( ) Ransomware é um tipo de malware que criptografa os dados da vítima, exigindo um pagamento (resgate) para restaurar o acesso a esses dados.
Provas
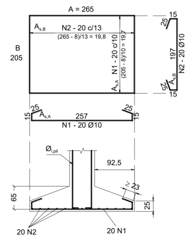
Na imagem a seguir, é mostrado o extrato de um projeto estrutural de uma fundação tipo sapata.

Detalhamento estrutural – armaduras de uma sapata
(Obs.: Unidades de comprimento das armaduras em cm.)
Considerando a imagem, é correto afirmar que cada armadura N2 possui comprimento total de
Provas
Observe o seguinte detalhamento da armadura transversal (estribo) do projeto estrutural de uma viga:

Distribuição de estribos longitudinalmente

Detalhamento do estribo
Com base nessas informações, o número de estribos N1 ao longo de toda a viga ilustrada é
Provas
Para o assentamento de pisos cerâmicos de 15 cm x 15 cm, é utilizada uma ferramenta (ilustrada a seguir) para espalhar e penetrar a argamassa colante sobre o contrapiso.

Ilustração da ferramenta (vista superior)
Essa ferramenta é denominada
Provas
O ensaio de compactação é empregado na determinação da relação entre o teor de umidade e a massa específica aparente seca de solos. Quando se utilizam soquete e cilindro grandes nesse ensaio, o maior número de golpes por camada é aplicado para o caso de energia
Provas
No ensaio de resistência à abrasão Los Angeles, são empregadas cargas abrasivas em quantidades que dependem da graduação do agregado. As cargas abrasivas são em formato de
Provas
Para o ensaio de inchamento da areia, a amostra de agregado miúdo deve ser devidamente preparada. Em particular, a areia deve ser seca
Provas
Caderno Container