Foram encontradas 40 questões.
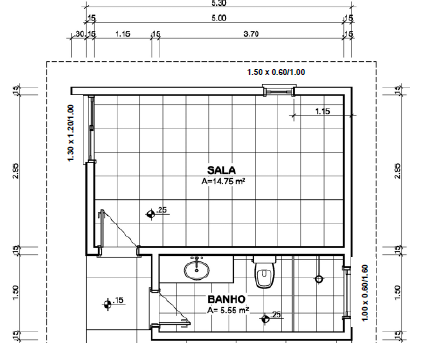
Observe a planta abaixo

A edificação representada na figura possui pé direito e altura de alvenaria iguais a 2,60 m. Os cálculos aproximados em !$ m^2 !$ das áreas de revestimento (WC), de Emboço (WC) e do reboco interno e externo da edificação, respectivamente, são:
OBS: Não descontar dos quantitativos as áreas de portas e janelas inferiores a 2,10 !$ m^2 !$
Provas
Questão presente nas seguintes provas
A cobertura constitui um sistema vulnerável em relação ao número de patologias que nela ocorrem, tais como infiltração, rachaduras, empenamentos e a presença de cupins. São consideradas situações que causam patologias em coberturas, EXCETO:
Provas
Questão presente nas seguintes provas
O dimensionamento mais econômico para uma sapata, de um pilar com dimensões 20x20 cm, com carga axial F = 1600 kN e tensão admissível do solo de 0,40 MPa, é:
Provas
Questão presente nas seguintes provas
Em relação ao preenchimento de juntas verticais em alvenarias de vedação, julgue os casos em que esse procedimento obrigatoriamente deve ser executado:
I – Paredes sobre lajes em balanço.
II – Paredes de Cumeeiras, com elevada carga vertical.
III – Paredes de fachadas, pois estas devem ser estanques.
IV – Paredes submetidas a empuxos.
É CORRETO o que se afirma em:
Provas
Questão presente nas seguintes provas
Com base na NBR 14931, que estabelece os procedimentos para execução de estruturas em concreto armado, analise as proposições abaixo:
I – Salvo disposições em contrário, estabelecidas no projeto ou definidas pelo responsável técnico pela obra, a concretagem deve ser suspensa se as condições ambientais forem adversas, com temperatura ambiente superior a 40°C ou vento acima de 60 m/s.
II – Durante o adensamento do concreto armado com o uso de vibradores de imersão destacam-se os seguintes cuidados: preferencialmente, aplicar o vibrador na posição vertical, vibrar o maior número possível de pontos ao longo do elemento estrutural e mudar o vibrador de posição quando a superfície apresentar-se brilhante.
III – As juntas de concretagem, sempre que possível, devem ser previstas no projeto estrutural e estarem localizadas onde forem menores os esforços de cisalhamento, preferencialmente em posição normal aos esforços de compressão, salvo se demonstrado que a junta não provocará a diminuição da resistência do elemento estrutural.
São procedimentos estabelecidos pela NBR 14931:
Provas
Questão presente nas seguintes provas
A Norma NBR 6118:2003 da ABNT sobre Projeto de Estruturas de Concreto e Procedimento estabelece, em função da classe de agressividade ambiental, que o risco de deterioração da estrutura pode ser classificado como: Insignificante, Pequeno, Grande e Elevado. Com base nessa classificação é CORRETO afirmar:
Provas
Questão presente nas seguintes provas
Considerando os procedimentos de execução de obras, analise as afirmativas abaixo e responda:
I – O gabarito executado para a locação de uma obra deve estar rigorosamente em esquadro e nivelado. Esse gabarito obrigatoriamente deve ser montado no mesmo alinhamento do eixo extremo da planta de fôrma de fundação do projeto estrutural para facilitar a sua execução.
II – Durante a execução de um contrapiso, o local deve inicialmente estar completamente limpo e isento de entulhos, restos de argamassas, partículas soltas, óleos, graxas ou quaisquer outros elementos que dificultem a sua aderência. Posteriormente, deve-se executar o nivelamento da superfície para a colocação das mestras, as quais devem ficar distantes em torno de 2 metros para facilitar o lançamento e sarrafeamento da farofa com o uso de uma régua de alumínio. Após a sua aplicação, a farofa deve ser compactada para a redução do seu volume de vazios, permitindo uma maior compacidade e resistência.
III – As argamassas colantes do tipo ACI e ACII são recomendadas para aplicações de revestimentos externos, inclusive em fachadas com baixa incidência de calor.
É CORRETO o que se afirma em
Provas
Questão presente nas seguintes provas
A simbologia abaixo é definida, respectivamente, como:

Provas
Questão presente nas seguintes provas
O alongamento em mm de uma barra de seção circular de diâmetro igual a 10,5 mm que está sujeita a uma tração axial de 21 kN, considerando o comprimento inicial !$ l_0 !$ = 2,55 m e o módulo de elasticidade E= 200.000 MPa, é de aproximadamente:
Provas
Questão presente nas seguintes provas
O teste do arrancamento tem como objetivo o controle de qualidade de assentamento de pisos cerâmicos nas edificações em geral. Após a realização desse teste, o verso da peça arrancada deve estar:
Provas
Questão presente nas seguintes provas
Cadernos
Caderno Container