Foram encontradas 50 questões.
A progressão por capacitação profissional provocará a mudança de nível do servidor, que atender ao programa de capacitação previsto em lei e respeitará o interstício de:
Provas
Questão presente nas seguintes provas
Promover o desenvolvimento institucional, subsidiando a definição de diretrizes para políticas de gestão de pessoas e garantindo a melhoria da qualidade dos serviços prestados à comunidade, é um objetivo do programa de:
Provas
Questão presente nas seguintes provas
Com relação à flambagem de uma coluna, é correto afirmar que se trata de um problema:
Provas
Questão presente nas seguintes provas
Um pilar no qual a ruptura por compressão ocorre antes da flambagem é denominado:
Provas
Questão presente nas seguintes provas
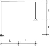
Observe a figura abaixo:

O grau hiperestático do pórtico plano é:
Provas
Questão presente nas seguintes provas
Uma treliça plana e isostática possui treze barras e seus vínculos externos oferecem três reações de apoio. O número de nós desta treliça é:
Provas
Questão presente nas seguintes provas
A alternativa que indica os esforços simples que geram tensões cisalhantes em uma viga é:
Provas
Questão presente nas seguintes provas
A carga concentrada P que, aplicada no meio de uma viga biapoiada de comprimento L, gera nesta viga um momento fletor máximo igual ao de uma carga uniformemente distribuída q tem o valor de:
Provas
Questão presente nas seguintes provas
A carga concentrada P que aplicada no meio de uma viga biapoiada de comprimento L, gera nesta viga um esforço cortante máximo igual ao de uma carga uniformemente distribuída q vale:
Provas
Questão presente nas seguintes provas
A patologia de uma pintura caracterizada por manchas esbranquiçadas, quando a pintura é aplicada sobre reboco úmido, é denominada:
Provas
Questão presente nas seguintes provas
Cadernos
Caderno Container