Foram encontradas 50 questões.
Um engenheiro eletricista responsável pela concepção do projeto elétrico que visa alimentar determinada unidade consumidora, após verificar as necessidades específicas da instalação, constatou que existem cargas elétricas que requerem funcionamento ininterrupto (tais como computadores e servidores da central de processamento de dados), cargas que podem ficar desligadas por até um minuto (tais como elevadores, determinadas iluminações e tomadas de corrente) e cargas não essenciais que podem ficar desligadas por mais tempo em caso de falta de fornecimento de energia pela concessionária de distribuição.
A concepção do projeto elétrico prevê a instalação de um grupo motor-gerador para atender a determinadas cargas. Acerca desse assunto, assinale a alternativa correta.
A concepção do projeto elétrico prevê a instalação de um grupo motor-gerador para atender a determinadas cargas. Acerca desse assunto, assinale a alternativa correta.
Provas
Questão presente nas seguintes provas
Um engenheiro eletricista responsável pela concepção do projeto elétrico que visa alimentar determinada unidade consumidora, após verificar as necessidades específicas da instalação, constatou que existem cargas elétricas que requerem funcionamento ininterrupto (tais como computadores e servidores da central de processamento de dados), cargas que podem ficar desligadas por até um minuto (tais como elevadores, determinadas iluminações e tomadas de corrente) e cargas não essenciais que podem ficar desligadas por mais tempo em caso de falta de fornecimento de energia pela concessionária de distribuição.
Um modo de atender, de forma ininterrupta, a computadores e servidores da central de processamento de dados, em caso de falta de fornecimento de energia por parte da concessionária de distribuição, é a :
Um modo de atender, de forma ininterrupta, a computadores e servidores da central de processamento de dados, em caso de falta de fornecimento de energia por parte da concessionária de distribuição, é a :
Provas
Questão presente nas seguintes provas
- Medidas Elétricas
- Instalações ElétricasEquipamentos em Média Tensão
- Instalações ElétricasSubestações
- Proteção de Sistemas ElétricosProteção em Média Tensão
- Transformadores e Máquinas ElétricasMáquinas EstáticasTransformador de Corrente
- Transformadores e Máquinas ElétricasMáquinas EstáticasTransformador de Potência
- Sistemas Elétricos de PotênciaDistribuição de Energia Elétrica
Considere que determinada subestação de consumidor possui cubículos de medição, proteção e transformação. Com base nessa situação, assinale a alternativa correta.
Provas
Questão presente nas seguintes provas
Considere o diagrama unifilar simplificado da figura a seguir, no qual a alimentação em tensão primária de distribuição é conectada ao elemento X e as setas representam cargas elétricas. Considere que as cargas que necessitam de funcionamento ininterrupto estão conectadas ao barramento 3, e as cargas que podem ficar desligadas por até um minuto estão no barramento 2. No barramento 1, estão as cargas que podem ficar desligadas no caso de falta de energia por parte da concessionária de distribuição. Considere que as letras X, Y e Z do diagrama unifilar representem grupo motor-gerador, no-break e transformador de potência.

Com base nessa situação, assinale a alternativa que corretamente associa a letra a seu respectivo equipamento elétrico.
Provas
Questão presente nas seguintes provas
- Instalações Elétricas
- Gerenciamento de ObrasProjeto e Orçamentação
- Transformadores e Máquinas ElétricasMáquinas EstáticasTransformador de Potência
Um engenheiro eletricista responsável pela concepção do projeto elétrico que visa alimentar determinada unidade consumidora, após verificar as necessidades específicas da instalação, constatou que existem cargas elétricas que requerem funcionamento ininterrupto (tais como computadores e servidores da central de processamento de dados), cargas que podem ficar desligadas por até um minuto (tais como elevadores, determinadas iluminações e tomadas de corrente) e cargas não essenciais que podem ficar desligadas por mais tempo em caso de falta de fornecimento de energia pela concessionária de distribuição.
Uma forma de melhorar a confiabilidade da instalação elétrica é a utilização de transformadores de potência em paralelo na cabine primária, para que a instalação continue energizada caso algum dos transformadores apresente problema. Acerca dessa afirmação, assinale a alternativa correta.
Uma forma de melhorar a confiabilidade da instalação elétrica é a utilização de transformadores de potência em paralelo na cabine primária, para que a instalação continue energizada caso algum dos transformadores apresente problema. Acerca dessa afirmação, assinale a alternativa correta.
Provas
Questão presente nas seguintes provas
- Instalações ElétricasEquipamentos em Média Tensão
- Instalações ElétricasSubestações
- Proteção de Sistemas ElétricosProteção em Média Tensão
- Sistemas Elétricos de PotênciaDistribuição de Energia Elétrica
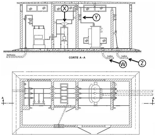
Considere a figura a seguir, a qual representa uma subestação de consumidor/medição com disjuntor, transformador e derivação. São apresentados o corte A-A e a vista superior.

O componente identificado na figura pela letra X corresponde
Provas
Questão presente nas seguintes provas
Não é critério a ser obedecido para o correto dimensionamento de condutores para instalações elétricas de baixa tensão o :
Provas
Questão presente nas seguintes provas
Considere a situação hipotética em que é necessário substituir um transformador trifásico de potência que está conectado em paralelo com outros transformadores. Assinale a alternativa que apresenta uma característica que deve necessariamente ser informada na especificação do novo transformador a ser adquirido.
Provas
Questão presente nas seguintes provas
Com relação ao dimensionamento do condutor neutro para um circuito trifásico de baixa tensão, assinale a alternativa correta.
Provas
Questão presente nas seguintes provas
- Instalações ElétricasEquipamentos em Média Tensão
- Instalações ElétricasSubestações
- Proteção de Sistemas ElétricosProteção em Média Tensão
- Sistemas Elétricos de PotênciaDistribuição de Energia Elétrica
Considere a figura a seguir, a qual representa uma subestação de consumidor/medição com disjuntor, transformador e derivação. São apresentados o corte A-A e a vista superior.

Uma das funções do componente identificado na figura pela letra Y é:
Provas
Questão presente nas seguintes provas
Cadernos
Caderno Container