Foram encontradas 50 questões.
Provas
Provas
- Gerenciamento, Planejamento e Controle de Obras
- Orçamento no Planejamento e Controle de Obras na Engenharia Civil

A tabela precedente representa a composição analítica de um serviço de alvenaria com blocos de concreto, com base no Sistema Nacional de Pesquisa de Custos e Índices da Construção Civil (SINAPI). Considerando-se que essa planilha seja adotada no planejamento da execução de 100 m² de alvenaria por dois serventes e um pedreiro contratados e que a produtividade dos operários e o consumo de materiais, nesse caso, serão os mesmos que os da composição apresentada, é correto afirmar que
Provas

A figura precedente ilustra uma treliça formada por triângulos equiláteros com 2 m de lado e em cujos nós D e E são aplicadas, respectivamente, forças de 30 kN e de 10 kN. Assinale a opção que apresenta os valores, em módulo, das reações nos apoios A e C.
Provas

ABNT – NBR NM 67 Concreto — determinação de consistência pelo abatimento do tronco de cone 1998 (com adaptações)
O projeto de uma estrutura de concreto definiu 7 cm de abatimento ou slump. Considerando a figura precedente, na qual as letras de A a E identificam parâmetros de medida, assinale a opção que apresenta o parâmetro que deve ser obtido para efeito de comparação com a definição do projeto e para aceitação do concreto na obra por meio do ensaio de consistência pelo abatimento do tronco de cone.
Provas

Assinale a opção que apresenta o valor, em módulo, do esforço cortante, um metro à direita do apoio de primeiro gênero da viga de concreto armado ilustrada na figura precedente, e a armadura que resiste tipicamente a esse esforço, respectivamente.
Provas

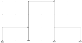
Com relação à estaticidade global, a estrutura mostrada na figura precedente classifica-se como
Provas
Provas
Provas
Provas
Caderno Container