Foram encontradas 230 questões.
Segundo as Normas Brasileiras ligadas a estruturas de concreto, julgue as afirmações a seguir:
I. Nos aços de classe B (encruados a frio), o diagrama tensão x deformação mostra claramente a ausência de um “patamar de escoamento” para definir o limite de escoamento. Portanto, adota-se por convenção para esses tipos de aços como sendo a “tensão correspondente à deformação permanente”, determinada graficamente por uma reta paralela a curva de origem deslocada de 0,20%.
II. A cura simples de uma laje exposta, concretada com concreto de cimento Portland, em dias normais e em temperaturas que variam de 15ºC a 35ºC, é feita segundo as Normas Brasileiras, normalmente a partir do lançamento do concreto, durante um período de 7 (sete) dias.
III. Numa seção de concreto armado de uma peça estrutural, a linha neutra é definida como o lugar geométrico dos pontos onde o momento de inércia é nulo.
São verdadeiras as afirmações:
Provas
Questão presente nas seguintes provas
Considere o esquema da figura que representa um determinado projeto estrutural no qual exige-se que sejam usadas estruturas pré-moldadas de concreto armado para a construção de um prédio de escritórios. Parte da estrutura está representada abaixo.

Considerando-se a fase final de consolidação da laje moldada “in-loco” com as vigas pré-moldadas de concreto armado. Segundo as Teorias de Estruturas, é correto afirmar que nesta etapa o diagrama final de esforços cortantes, traçado pelos eixos de cada pilar, será:
Provas
Questão presente nas seguintes provas
Uma epidemia pode ser detectada por:
Provas
Questão presente nas seguintes provas
Leia o texto abaixo, de autoria do escritor Cassiano Ricardo:
O RELÓGIO
Diante de coisa tão doída,
Conservemo-nos serenos;
Cada minuto da vida
Nunca é mais, é sempre menos;
Ser é apenas uma face
do não-ser e não do ser;
Desde o instante em que se nasce,
Já se começa a morrer.
O vocábulo "ser", presente no verso 06, observando-se o contexto, é um caso clássico de palavra formada por:
Provas
Questão presente nas seguintes provas
A força Q está aplicada na chapa de aço que está ligada em um pilar através de três conectores parafusos ASTM A307 de diâmetro igual a 19mm (3/4”), conforme mostrado na figura abaixo.

Considerando que a chapa é rígida e que os conectores estejam em regime elástico e adotando-se ainda !$ \sqrt {10} = 3,15 !$ . O esforço no conector mais solicitado será aproximadamente:
Provas
Questão presente nas seguintes provas
As Agências Executivas e Reguladoras fazem parte da Administração Pública indireta, são pessoas jurídicas de direito público interno e consideradas como autarquias especiais. Sua principal função é o controle de pessoas privadas incumbidas da prestação de serviços públicos, sob o regime de concessão ou permissão. Respectivamente, caracterizam-se por:
Provas
Questão presente nas seguintes provas
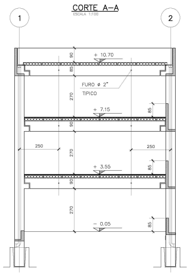
Na avaliação de uma planta de projeto estrutural de uma construção industrial, considere a figura a abaixo e julgue as afirmações a seguir:
I. A concepção estrutural deste projeto pode ser considerada como a de uma estrutura pré-moldada de concreto.
II. As lajes são pré-moldadas e maciças e estão apoiadas diretamente sobre as vigas.
III. As vigas podem ser de concreto armado ou de concreto protendido, fato não identificado nesse esquema estrutural.
IV. Os pilares apresentam um dente conhecido pela literatura como consolo curto e sevem para apoiar as vigas.
V. O modelo estrutural mais apropriado para se determinar os esforços solicitantes nas vigas é de viga biengastada.
O número de afirmações corretas é:
Provas
Questão presente nas seguintes provas
Os instrumentos a seguir podem ser desinfectados ou esterilizados através de substâncias químas, EXCETO:
Provas
Questão presente nas seguintes provas
Uma empresa de construção foi contratada para elaborar um projeto de uma construção civil residencial, restrito as atividades de construção e instalações. A parte da composição do Projeto ilustrada pela planilha da figura abaixo representa:

Provas
Questão presente nas seguintes provas
O somatório das interposições e duração de cada fase de implantação de um projeto é chamado de:
Provas
Questão presente nas seguintes provas
Cadernos
Caderno Container