Magna Concursos

Foram encontradas 2.215 questões.

1531937 Ano: 2007
Disciplina: Engenharia Civil
Banca: CESPE / CEBRASPE
Orgão: INMETRO

O manejo das águas pluviais urbanas é feito para se evitar impactos negativos na vida da cidade durante as chuvas críticas. Alguns componentes do sistema de drenagem são concebidos para amortecer as modificações no padrão de escoamento superficial das águas pluviais em função da ocupação urbana. Acerca desse assunto, julgue os itens a seguir.

Bacias de detenção são projetadas para que, nas chuvas críticas, a vazão efluente seja inferior à vazão afluente.

 

Provas

Questão presente nas seguintes provas
1531936 Ano: 2007
Disciplina: Engenharia Civil
Banca: CESPE / CEBRASPE
Orgão: INMETRO

Aqüíferos subterrâneos são alternativas muito utilizadas como manancial de abastecimento de água para consumo humano. Para aqüíferos profundos, a captação pode ser feita por meio de poços. Com relação a esses componentes do abastecimento, julgue os próximos itens.

Para poço tubular profundo, a bomba submersa pode ser de múltiplos estágios.

 

Provas

Questão presente nas seguintes provas
1531935 Ano: 2007
Disciplina: Engenharia Civil
Banca: CESPE / CEBRASPE
Orgão: INMETRO

Aqüíferos subterrâneos são alternativas muito utilizadas como manancial de abastecimento de água para consumo humano. Para aqüíferos profundos, a captação pode ser feita por meio de poços. Com relação a esses componentes do abastecimento, julgue os próximos itens.

Para o bom funcionamento do bombeamento em poços escavados, com nível de água inferior a 20 metros em relação à posição da bomba centrífuga, a tubulação de sucção deverá ter válvula de pé.

 

Provas

Questão presente nas seguintes provas
1531934 Ano: 2007
Disciplina: Engenharia Civil
Banca: CESPE / CEBRASPE
Orgão: INMETRO

Aqüíferos subterrâneos são alternativas muito utilizadas como manancial de abastecimento de água para consumo humano. Para aqüíferos profundos, a captação pode ser feita por meio de poços. Com relação a esses componentes do abastecimento, julgue os próximos itens.

Para o funcionamento adequado de um poço tubular, é necessário garantir que o nível dinâmico de bombeamento seja superior ao nível estático.

 

Provas

Questão presente nas seguintes provas
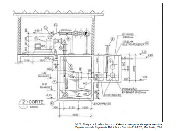
1531933 Ano: 2007
Disciplina: Engenharia Civil
Banca: CESPE / CEBRASPE
Orgão: INMETRO

Enunciado 1531933-1

Considerando a figura acima, que representa uma instalação de bombeamento, julgue os itens subseqüentes.

O enchimento no poço de sucção é feito para direcionamento dos sólidos para a sucção da bomba.

 

Provas

Questão presente nas seguintes provas
1531932 Ano: 2007
Disciplina: Engenharia Civil
Banca: CESPE / CEBRASPE
Orgão: INMETRO

Enunciado 1531932-1

Considerando a figura acima, que representa uma instalação de bombeamento, julgue os itens subseqüentes.

A peça indicada pelo número 14 é um medidor de vazão do tipo Pitot.

 

Provas

Questão presente nas seguintes provas
1531931 Ano: 2007
Disciplina: Engenharia Civil
Banca: CESPE / CEBRASPE
Orgão: INMETRO

Enunciado 1531931-1

Considerando a figura acima, que representa uma instalação de bombeamento, julgue os itens subseqüentes.

A bomba indicada pelo número 13 funciona como uma bomba “afogada”.

 

Provas

Questão presente nas seguintes provas
1531930 Ano: 2007
Disciplina: Engenharia Civil
Banca: CESPE / CEBRASPE
Orgão: INMETRO

Enunciado 1531930-1

Considerando a figura acima, que representa uma instalação de bombeamento, julgue os itens subseqüentes.

A peça indicada pelo número 8 é uma junta elástica ponta e bolsa.

 

Provas

Questão presente nas seguintes provas
1531929 Ano: 2007
Disciplina: Engenharia Civil
Banca: CESPE / CEBRASPE
Orgão: INMETRO

Enunciado 1531929-1

Considerando a figura acima, que representa uma instalação de bombeamento, julgue os itens subseqüentes.

A peça indicada pelo número 4 é o volante de uma comporta ou adufa, cujo fechamento dá condições de uso do by-pass.

 

Provas

Questão presente nas seguintes provas
1531928 Ano: 2007
Disciplina: Engenharia Civil
Banca: CESPE / CEBRASPE
Orgão: INMETRO

Enunciado 1531928-1

A partir das informações da figura acima, que representa uma seção de concreto armado submetida a esforços externos, julgue os itens seguintes.

Na figura mostrada, é possível identificar a representação gráfica da armadura transversal.

 

Provas

Questão presente nas seguintes provas