Foram encontradas 1.250 questões.
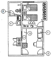
Observe o desenho a seguir.

No desenho acima, o numero 2 representa a vista
Provas
Qual é o tipo de sistema de distribuição predial de água potável utilizado quando a pressão da rede pública é suficiente e há continuidade do abastecimento?
Provas
A barra de ferramentas no Autocad é a região
Provas
Que instrumento é utilizado para traçar circunferência?
Provas
Qual é a inclinação mínima para telha do tipo canalete?
Provas
Em topografia, a representação dos pontos de mesma cota ou altura, ligados entre si, em relação a um plano horizontal, é denominada
Provas
Num reservatório de forma cilíndrica, o diâmetro da base mede 2,00m e a altura 4,00m. Que volume deverá conter o reservatório, quando tiver na metade da sua capacidade?
Provas
Observe a figura a seguir.

De acordo com a figura acima, identifique respectivamente os elementos apresentados e, em seguida, assinale a opção correta.
Provas
Em uma residência, qual é o tipo de fundação que é utilizada no caso de pilar localizado na divisa do terreno, sendo o solo de alta resistência mecânica?
Provas
No desenho do detalhe de cozinha, a altura da pia deve estar situada entre que dimensões?
Provas
Caderno Container