Foram encontradas 50 questões.
Analise as afirmativas abaixo em relação às indicações do estado de superfícies em desenhos técnicos.
I - O símbolo deve ser indicado uma vez para cada superfície.
II - Quando as indicações requeridas para todas as superfícies de uma peça forem as mesmas, a indicação deve constar junto à vista da peça, próximo a legenda do desenho ou no lugar previsto dentro da mesma, para os dados gerais.
III - Os símbolos e inscrições devem estar orientados de maneira que possam ser lidos tanto com o desenho na posição normal, como pelo lado direito.
IV - Se necessário, o símbolo pode ser interligado à superfície por meio de uma linha de indicação.
V - Se for necessário indicar o valor do sobremetal para usinagem, este deve ser escrito à esquerda do símbolo.
Assinale a opção correta.
Provas
Assinale qual das linhas abaixo é utilizada para indicar a simetria do desenho de uma peça.
Provas
Em um tronco de cone de altura 200mm, conicidade 1:20 e diâmetro da base menor 50mm, quanto mede, em mm, o raio da base maior?
Provas
Observe o desenho técnico a seguir.

Qual o tipo de corte que está representado acima?
Provas
A figura abaixo representa o valor da medida de uma peça obtido com o uso de um micrômetro de 1/1000 mm.
OBSERVAÇÃO: a coincidência das graduações ocorre no traço em negrito da figura.

Assinale a opção que apresenta a leitura correta da medida apresentada acima.
Provas
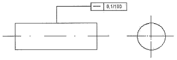
Analise a representação a seguir.

De acordo com os dados apresentados, é correto afirmar que as estrias indicadas no símbolo de rugosidade são
Provas
Observe a figura a seguir.

A figura acima apresenta o símbolo de tolerância de
Provas
Observe a vista frontal do desenho técnico representado a seguir.

Qual dos dos desenhos a seguir corresponde à vista lateral da representação acima?
Provas
Observe a representação a seguir.

Este desenho representa uma arruela do tipo
Provas
Observe a representação a seguir.

Qual perfil de filete de rosca está representado no desenho acima?
Provas
Caderno Container