Foram encontradas 50 questões.
Assinale a opção que apresenta três elementos acessórios de sistemas de refrigeração mecânica por meio de vapores.
Provas
Observe o gráfico abaixo.

De acordo com o gráfico acima, o ponto eutético é o ponto
Provas
Em relação às projeções ortogonais, em desenhos técnicos, é correto afirmar que
Provas
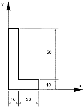
Observe a figura a seguir.

Determine as coordenadas XG e YG, em mm, do centro de gravidade do perfil L acima, considerando que as dimensões indicadas na figura estão representadas em mm, e assinale a opção correta.
Provas
Observe a figura a seguir.

A figura acima apresenta o VERNIER de um paquímetro para leitura em polegadas.
Qual é o valor da medida representada?
Provas
Em relação às recomendações quanto ao uso de cotas em desenhos técnicos, é INCORRETO afirmar que
Provas
Observe a figura a seguir.

A figura acima representa uma barra circular de comprimento L=500 mm e momento polar Jp=10-6m4, submetida a um momento torçor MT=1600 N.m. O módulo de elasticidade transversal do material é G= 80 GPa. Determine o ângulo total de torção\( θ \), e assinale a opção correta.
Provas
Observe a figura a seguir.

A figura acima representa uma barra de duas secções (1 e 2). Sabendo que a carga que atua na peça é de 210 KN, determine o alongamento total da peça, e assinale a opção correta.
Dados: Eaço 210 GPa
Provas
Quanto ao uso de cortes e seções em desenhos técnicos, é correto afirmar que
Provas
No caso de uma montagem de duas peças, sendo uma peça externa e uma peça interna, considerando a notação de tolerância 50r6 para a peça 1 e 50H7 para a peça 2, pode-se afirmar que
Provas
Caderno Container