Foram encontradas 50 questões.
Em relação à caixa de diálogo do Autocad, em que se determina a área a ser impressa (PLOT AREA), assinale a opção que plota a porção do desenho apresentada na tela.
Provas
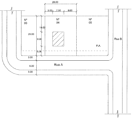
A figura abaixo é uma representação de uma planta de situação.

Com base nas informações da planta acima, pode-se afirmar que a taxa de ocupação é de:
Provas
De acordo com a NBR 5410/2004, o critério utilizado para o cálculo de pontos de tomada de uso geral para unidades residenciais prevê que um cômodo com dimensões de 4mx3m deverá ter, no mínimo, quantas tomadas?
Provas
Qual é a ferramenta do Autocad que permite localizar e inserir em seu desenho corrente informações de outros desenhos, como blocos, layers, referências externas, estilos de texto e de dimensionamento etc.?
Provas
Analise a figura a seguir.

Observando a planta acima, que representa o projeto de instalação de uma residência, pode-se afirmar que:
Provas
Analise as afirmativas abaixo em relação às Instalações Hidráulicas.
I Ramal predial é a tubulação compreendida entre a rede pública de abastecimento e a instalação predial.
II - A tubulação compreendida entre o orifício de saída da bomba e o ponto de descarga no reservatório de distribuição é denominada tubulação de sucção.
III- Tubo de descarga é o nome dado ao tubo que liga a válvula ou caixa de descarga à bacia sanitária ou mictório.
IV - O conjunto de tubulações que se origina no reservatório e do qual se derivam as colunas de distribuição é chamado barrilete.
V - Trecho é a tubulação que liga o ramal à peça de utilização ou à ligação do aparelho sanitário.
Assinale a opção correta.
Provas
Em relação aos instrumentos de desenho, correlacione os instrumentos às suas respectivas definições e assinale a opção que apresenta a sequência correta.
INSTRUMENTOS
I - Escalímetros
II - Esquadros
III- Compassos
IV - Réguas T
V - Transferidores
DEFINIÇÕES
( ) São instrumentos que servem para traçar retas a 90o, 45o, 30 o e 60o.
( ) São instrumentos que servem para medir ângulos. São graduados de 0º a 180° ou 0º a 360°.
( ) São instrumentos que servem para traçar circunferências ou arcos de circunferências.
Provas
Para copiar um arquivo de de configuração de penas para plotagem, do tipo ctb, deve-se seguir que caminho no AUTOCAD?
Provas
Observando a representação das linhas abaixo, assinale a opção que corresponde à ordem correta em que foram apresentadas
I -
II -
III -
IV -
Provas
De acordo com a NBR 6492/1994, assinale a opção correta em relação à representação gráfica de portas em planta baixa e à indicação de suas dimensões.
Provas
Caderno Container