Foram encontradas 900 questões.
Assinale a opção correspondente ao tipo de motor Diesel utilizado para impulsionar sistemas de bombeamento de água de emergência.
Provas
Qual platô/embreagem proporciona pressão mais constante no disco de fricção durante todo o curso da mola, permitindo forças iniciais no pedal menores e pedal mais macio?
Provas
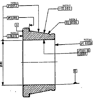
Observe a figura abaixo.

A figura acima representa o interior de um rolamento de rolos cônicos com as notas sobre as tolerâncias geométricas. Marque a alternativa FALSA:
Provas
Observe as figuras abaixo.Os tipos de rolamento representados em A e B são, respectivamente:

Provas
As chapas utilizadas em estampagem mecânica devem conter as seguintes características, EXCETO:
Provas
Assinale a opção que apresenta o nome do processo mecânico de usinagem por abrasão empregado no acabamento de furos cilíndricos de revolução, no qual a ferramenta ou a peça gira e se desloca axialmente com movimento alternativo.
Provas
Motores compridos são descritos como motores:
Provas
Qual a razão das marchas fazerem um ruído estridente ao serem engatadas?
Provas
Com relação a sistemas de superalimentação ou turbocompressão, um motor apresenta consumo excessivo de óleo Diesel.Sendo assim, marque a opção que descreve a causa correta para o defeito apresentado.
Provas
A figura abaixo representa parte de 2 micrômetros, identificados como A e B, disponíveis em uma oficina de motores diesel.

Um mecânico realizará uma medição que necessita de um instrumento que tenha resolução de 0,001 mm, e deverá ser realizada a leitura do instrumento sem nenhum tipo de estimativa visual em sua escala de centésimos de mm. Sendo assim, esse mecânico deverá:
Provas
Caderno Container