Foram encontradas 350 questões.
Considere as seguintes afirmativas:
I. Numa viga subarmada, a ruptura do concreto ocorre antes do escoamento do aço.
II. Os elementos estruturais de uma treliça carregada somente pelos seus nós suportam apenas esforços axiais.
III. Toda treliça simétrica deve possuir um montante central.
Assinale:
I. Numa viga subarmada, a ruptura do concreto ocorre antes do escoamento do aço.
II. Os elementos estruturais de uma treliça carregada somente pelos seus nós suportam apenas esforços axiais.
III. Toda treliça simétrica deve possuir um montante central.
Assinale:
Provas
Questão presente nas seguintes provas
Considere as afirmativas a seguir:
I. A rocha com resistência mecânica igual ou superior à do granito é classificada, para efeito de escavação, como material de primeira categoria.
II. Canalizações aparentes em edificações residenciais, comerciais e industriais, destinadas ao fornecimento de gás combustível, devem ser pintadas na cor branca.
III. As fissuras por retração hidráulica do concreto em uma laje têm como causa uma cura inadequada.
Assinale:
I. A rocha com resistência mecânica igual ou superior à do granito é classificada, para efeito de escavação, como material de primeira categoria.
II. Canalizações aparentes em edificações residenciais, comerciais e industriais, destinadas ao fornecimento de gás combustível, devem ser pintadas na cor branca.
III. As fissuras por retração hidráulica do concreto em uma laje têm como causa uma cura inadequada.
Assinale:
Provas
Questão presente nas seguintes provas
A parcela elástica do deslocamento máximo de uma seção de uma estaca cravada, decorrente da aplicação de um golpe de um martelo de cravação, é denominada:
Provas
Questão presente nas seguintes provas
- Arquitetura na Engenharia Civil
- Estruturas
- Resistência dos Materiais e Análise EstruturalEstruturas de Concreto
- Normas e LegislaçõesNBRsNBR 9.050: Acessibilidade na Construção Civil
Uma escada em concreto foi projetada para vencer um desnível de 4,0m, com projeção em planta igual a 7,0m. Os degraus dessa escada deverão ter largura igual a 28cm e altura igual a:
Provas
Questão presente nas seguintes provas
A carga limite que uma sapata quadrada com lados iguais a 4,0m pode transmitir a um solo com taxa admissível de 0,25MPa é, em kN, igual a:
Provas
Questão presente nas seguintes provas
O tipo de material de construção que pode ser facilmente moldado no local da obra, de forma a se adaptar à geometria estipulada pela arquitetura para um elemento estrutural é:
Provas
Questão presente nas seguintes provas
Ao realizar a fiscalização em uma obra pública, verificou-se que 35% do serviço programado havia sido executado.
Sabe-se que o valor total a ser pago por esse serviço corresponde a 20% do valor total da obra, que é de R$ 450.000,00.
O valor a ser pago por essa etapa será de:
Sabe-se que o valor total a ser pago por esse serviço corresponde a 20% do valor total da obra, que é de R$ 450.000,00.
O valor a ser pago por essa etapa será de:
Provas
Questão presente nas seguintes provas
Assinale a alternativa que corresponde à grandeza que tem significado estatístico.
Provas
Questão presente nas seguintes provas
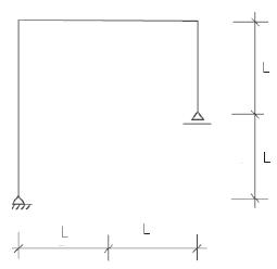
A figura a seguir representa um pórtico plano.

Considere as afirmativas a seguir:
I. O momento fletor na barra vertical da direita será sempre nulo, independentemente do carregamento.
II. O momento fletor na barra vertical da esquerda será sempre nulo, independentemente do carregamento.
III. O momento fletor na barra horizontal será sempre nulo, independentemente do carregamento.
Assinale:

Considere as afirmativas a seguir:
I. O momento fletor na barra vertical da direita será sempre nulo, independentemente do carregamento.
II. O momento fletor na barra vertical da esquerda será sempre nulo, independentemente do carregamento.
III. O momento fletor na barra horizontal será sempre nulo, independentemente do carregamento.
Assinale:
Provas
Questão presente nas seguintes provas
Assinale a alternativa que apresente um produto secundário que pode ser usado como substituto da brita.
Provas
Questão presente nas seguintes provas
Cadernos
Caderno Container