Foram encontradas 115 questões.
De acordo com a norma brasileira, a metodologia de cálculo do CUB/m2 baseia-se nos projetos-padrão, que correspondem àqueles “projetos selecionados para representar os diferentes tipos de edificações, usualmente objeto de incorporação para construção em condomínio e conjunto de edificações”. A seleção destes projetos leva em conta as seguintes características:
I. número de pavimentos.
II. número de dependências por unidade.
III. áreas equivalentes à área de custo padrão privativa das unidades autônomas.
IV. padrão de acabamento da construção.
V. número total de unidades.
Estão corretos apenas os itens:
I. número de pavimentos.
II. número de dependências por unidade.
III. áreas equivalentes à área de custo padrão privativa das unidades autônomas.
IV. padrão de acabamento da construção.
V. número total de unidades.
Estão corretos apenas os itens:
Provas
Questão presente nas seguintes provas
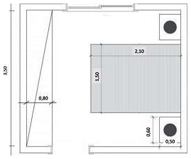
Qual a área mínima do quarto mostrado abaixo, supondo-se que seja reservado 10% para circulação?


Provas
Questão presente nas seguintes provas
São vários os processos e sistemas inovadores, propostos pelo Programa Minha Casa, Minha Vida, para atender à meta de um milhão de unidades entregues: paredes maciças moldadas in loco com vários tipos de concreto e formas (alumínio, aço e plástico); painéis pré-moldados de concreto ou cerâmica em usina ou canteiros; sistemas em alvenaria estrutural com um alto grau de racionalização, integração e facilidade de montagem; e painéis em steel frame. A principal característica do sistema steel frame (quadros de aço) é o uso de um esqueleto de perfis leves de aço, contraventado com placas estruturais OSB que, unidas, funcionam em conjunto, proporcionando rigidez, forma e sustentação à edificação. Estas estruturas permitem a construção de edificações leves, tão resistentes quanto as de concreto. O sistema, extremamente flexível, permite a utilização de qualquer tipo de acabamento exterior e interior. Quanto aos sistemas inovadores de construção e à ?exibilidade dos edifícios, examine a imagem, leia o texto e avalie as afirmativas abaixo, assinalando a opção correta.


Provas
Questão presente nas seguintes provas
“Existem vários motivos para a decadência da arquitetura e, consequentemente, do papel dos arquitetos na sociedade nos tempos atuais. Um deles tem a ver com o fato de que o mundo atual parece ser regido pelos valores do mercado - e da sociedade de consumo que o define -, o que atinge, embora de modo parcial, inclusive os redutos mais resistentes da cultura. Entre esses valores estão o lucro imediato como objetivo primordial, a obsolescência planejada, a exacerbação da personalidade individual e o uso das situações de impacto como recurso promocional. Ao abraçar esses valores, a arquitetura passa a ter um papel instrumental e subalterno na sociedade. Prova disso é o fato de que a maior parte das decisões sobre o meio ambiente construído ou os objetos de uso já não passam pelas mãos de arquitetos, estando agora dominadas pelos aspectos prospectivos do marketing. Nesse cenário há pouco espaço para conceitos como o bem comum, a preservação ambiental e cultural, e a busca de soluções arquitetônico-urbanísticas adequadas e permanentes, as quais têm retorno em longo prazo.” (MAHFUZ, Edson da Cunha. Arquitetos e sua participação no debate público. Vitruvius 035.01ano 11, ago 2010) Fonte: http://www.vitruvius.com.br/revistas/read/drops/11.035/3364).
Com base no texto acima, que trata da relação da arquitetura com a sociedade e a cultura, assinale a opção incorreta.
Com base no texto acima, que trata da relação da arquitetura com a sociedade e a cultura, assinale a opção incorreta.
Provas
Questão presente nas seguintes provas
- Agentes PúblicosCargos, Empregos e Funções PúblicasAcessoConcurso Público
- Agentes PúblicosCargos, Empregos e Funções PúblicasFormas de Provimento
- Lei 8.112/1990: RJU
Em se tratando da disciplina constitucional dos Agentes Públicos, assinale a opção correta.
Provas
Questão presente nas seguintes provas
Cadernos
Caderno Container