Foram encontradas 1.540 questões.
De acordo com o Dicionário Brasileiro de Terminologia Arquivística, analise as seguintes
afirmativas concernentes às definições das disciplinas que interagem no processo de
organização e disseminação dos documentos arquivísticos.
I. Arquivologia – disciplina que estuda as funções do arquivo, os princípios e técnicas a serem observados na produção, organização, guarda, preservação e utilização dos arquivos.
II. Diplomática – disciplina que tem como objeto o estudo da estrutura formal e da autenticidade dos documentos.
III. Paleografia – disciplina que estuda os primórdios da escrita impressa, suas formas e variações ao longo do tempo.
A partir dessa análise, pode se concluir que estão CORRETAS
I. Arquivologia – disciplina que estuda as funções do arquivo, os princípios e técnicas a serem observados na produção, organização, guarda, preservação e utilização dos arquivos.
II. Diplomática – disciplina que tem como objeto o estudo da estrutura formal e da autenticidade dos documentos.
III. Paleografia – disciplina que estuda os primórdios da escrita impressa, suas formas e variações ao longo do tempo.
A partir dessa análise, pode se concluir que estão CORRETAS
Provas
Questão presente nas seguintes provas
Princípio segundo o qual os arquivos originários de uma instituição ou de uma pessoa
devem manter sua individualidade, não sendo misturados aos de origem diversa.
Indique a alternativa em que identifica corretamente o conceito descrito.
Indique a alternativa em que identifica corretamente o conceito descrito.
Provas
Questão presente nas seguintes provas
- Tecnologia das ConstruçõesSistemas e Elementos ConstrutivosSistemas EstruturaisEstruturas de Concreto
- Tecnologia das ConstruçõesSistemas e Elementos ConstrutivosSistemas EstruturaisMorfologia e Funcionamento das Estruturas
As imagens abaixo correspondem ao Museu de Transporte de Riverside de Zaha Hadid
Architects. Esse museu foi implantado sobre um terreno abandonado em uma zona de
Glasgow que se encontrava deteriorada na confluência dos rios Clyde e Kelvin, exposto
por um lado a uma paisagem de águas pluviais sombrias e, do outro lado, a uma estrada. 
(Revista AU. Riverside Museum of Transport. São Paulo: PINI, jul. 2011, ano 26, n. 208, p. 50/3.
Em relação à edificação acima, assinale a alternativa que apresenta corretamente o partido arquitetônico que foi adotado na fase do anteprojeto.

(Revista AU. Riverside Museum of Transport. São Paulo: PINI, jul. 2011, ano 26, n. 208, p. 50/3.
Em relação à edificação acima, assinale a alternativa que apresenta corretamente o partido arquitetônico que foi adotado na fase do anteprojeto.
Provas
Questão presente nas seguintes provas
- Tecnologia das ConstruçõesSistemas e Elementos ConstrutivosSistemas EstruturaisEstruturas de Concreto
Os desenhos abaixo são do projeto de um edifício, cujo tipo de laje utilizada deu liberdade
estrutural à edificação, agilidade na construção, permitiu ausência de vigas e flexibilidade
do leiaute. 
Revista AU. Pequeno flexível. São Paulo: PINI, maio 2012, ano 27, n. 218, p. 56/7.
Em relação ao tipo de laje utilizada no edifício do desenho acima, assinale a alternativa CORRETA.

Revista AU. Pequeno flexível. São Paulo: PINI, maio 2012, ano 27, n. 218, p. 56/7.
Em relação ao tipo de laje utilizada no edifício do desenho acima, assinale a alternativa CORRETA.
Provas
Questão presente nas seguintes provas
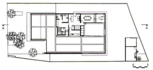
O desenho abaixo é de um dos níveis da loja elaborada pela Superlimão Studio, em São Paulo.

(Revista AU. Firma Casa. São Paulo: PINI, dez. 2011, ano 26, n. 213, p. 49)
Os elementos que faltam para a melhor compreensão do projeto técnico acima são:
Provas
Questão presente nas seguintes provas
Numere a COLUNA II (fases do projeto) de acordo com a COLUNA I relacionando as
técnicas recomendadas para representação de projetos de arquitetura de acordo com a
NBR 6492.
COLUNA I
1. Desenho a mão livre 2. Desenho por instrumento
COLUNA II
( ) Anteprojeto ( ) Croquis ( ) Estudo preliminar ( ) Projeto executivo
Assinale a alternativa que apresenta a sequência de números CORRETA.
COLUNA I
1. Desenho a mão livre 2. Desenho por instrumento
COLUNA II
( ) Anteprojeto ( ) Croquis ( ) Estudo preliminar ( ) Projeto executivo
Assinale a alternativa que apresenta a sequência de números CORRETA.
Provas
Questão presente nas seguintes provas
Assinale a alternativa que apresenta a ordem correta que caracteriza as fases dos
projetos de arquitetura, de acordo com a NBR 6492, que fixa as normas sobre a
representação de projetos de arquitetura.
Provas
Questão presente nas seguintes provas

“O parque Dom Pedro II perdeu seu caráter bucólico e assumiu desde meados do século XX a função de nó viário no centro de São Paulo, com um espaço público deficiente e inseguro. Futuras intervenções estão sendo propostas com menos viadutos, vias enterradas e novos equipamentos.”
(Revista AU. Plano urbanístico do parque D. Pedro II. São Paulo: PINI, dez. 2011, ano 26, n. 213, p. 63.)
A esse respeito, analise as afirmativas abaixo.
I. A presença de parques urbanos ao longo dos rios, quando despoluídos, trazem melhorias climáticas e estéticas à paisagem urbana.
II. A retificação e canalização dos rios no ambiente urbano é um mecanismo para o combate às cheias.
III. Implantar vias arteriais sobre os rios contribui para a mobilidade municipal.
IV. Os parques lineares ao longo de rios contribuem para o encontro e lazer do público em geral.
Em relação à concretização das futuras intervenções para o Parque D. Pedro II, aqui apresentadas, é CORRETO apenas o que se afirma nos itens
Provas
Questão presente nas seguintes provas
Segundo a NBR 6492, que fixa as normas sobre a representação de projetos de
arquitetura, assinale a alternativa que apresenta uma definição INCORRETA.
Provas
Questão presente nas seguintes provas
3238185
Ano: 2012
Disciplina: Estatuto da Pessoa com Deficiência - Lei 13.146/2015
Banca: FUNDEP
Orgão: MPE-MG
Disciplina: Estatuto da Pessoa com Deficiência - Lei 13.146/2015
Banca: FUNDEP
Orgão: MPE-MG
Conforme o disposto na Lei n. 10.098/2000 que estabelece normas gerais e critérios
básicos para a promoção da acessibilidade das pessoas portadoras de deficiência ou com
mobilidade reduzida, analise as seguintes afirmativas e assinale a alternativa
INCORRETA.
Provas
Questão presente nas seguintes provas
Cadernos
Caderno Container