Foram encontradas 248 questões.
A imagem apresenta um diagrama rede PERT-CPM, cujas setas representam as atividades com seus respectivos tempos
de execução. Observe.
Determine, a seguir, o caminho crítico presente no diagrama.
Determine, a seguir, o caminho crítico presente no diagrama.
Provas
Questão presente nas seguintes provas
A planta a seguir apresenta um esquema elétrico de uma edificação com três cômodos. Observe.
Sobre a planta apresentada, analise as afirmativas a seguir.
I. O sistema indicado pelos interruptores a é denominado Tree-Way; esses interruptores são conhecidos como interruptores intermediários. II. Todas as lâmpadas presentes na edificação apresentam a mesma potência, fazendo parte do circuito 3 (único circuito de iluminação indicado na planta). III. A seção nominal mínima para os condutores do circuito 1 e 4 é de 2,5 mm², enquanto para os circuitos 2 e 3 é de 1,50 mm². IV. Não existem circuitos bifásicos apresentados na planta elétrica.
Estão corretas apenas as afirmativas
Sobre a planta apresentada, analise as afirmativas a seguir. I. O sistema indicado pelos interruptores a é denominado Tree-Way; esses interruptores são conhecidos como interruptores intermediários. II. Todas as lâmpadas presentes na edificação apresentam a mesma potência, fazendo parte do circuito 3 (único circuito de iluminação indicado na planta). III. A seção nominal mínima para os condutores do circuito 1 e 4 é de 2,5 mm², enquanto para os circuitos 2 e 3 é de 1,50 mm². IV. Não existem circuitos bifásicos apresentados na planta elétrica.
Estão corretas apenas as afirmativas
Provas
Questão presente nas seguintes provas
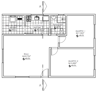
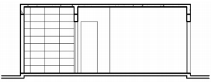
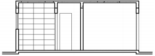
A planta baixa de uma edificação será seccionada pelo corte AA representado pela marcação a seguir.
Analisando os elementos representados, assinale a alternativa que apresenta a solução correta deste corte.
Analisando os elementos representados, assinale a alternativa que apresenta a solução correta deste corte.Provas
Questão presente nas seguintes provas
Uma viga caixão quadrada é construída a partir de quatro tábuas, conforme a imagem. Sabendo que o espaçamento
entre os pregos é de 30 mm e a viga está submetida a um cisalhamento vertical de magnitude V = 1,2 kN, determine a
força cortante em cada prego, aproximadamente.


Provas
Questão presente nas seguintes provas
Em uma estrutura de aço foram utilizados parafusos de 19 mm de diâmetro para unir elementos estruturais de 8 mm
de espessura. A união desses elementos seguiu a configuração apresentada na imagem. Observe.
A largura líquida e a área líquida desse elemento estrutural utilizadas em seu dimensionamento são, respectivamente:
A largura líquida e a área líquida desse elemento estrutural utilizadas em seu dimensionamento são, respectivamente:Provas
Questão presente nas seguintes provas
- Gerenciamento, Planejamento e Controle de Obras
- Orçamento no Planejamento e Controle de Obras na Engenharia Civil
Uma das etapas mais importante de um projeto executivo é a parte de orçamento. Considere que em um determinado
projeto, um orçamento preliminar apresentou os seguintes quantitativos:
Para totalizar o custo de uma obra atribui-se a cada serviço uma composição de custos unitários. Para o serviço de
alvenaria foram considerados os seguintes insumos:
Conforme as tabelas orçamentárias apresentadas e de acordo com os conceitos sobre custos, analise as afirmativas a
seguir. I. O quantitativo de serviço a ser realizado para alvenaria é de 100 m².
II. O custo unitário do tijolo cerâmico é R$ 0,25.
III. O custo unitário é o custo de aquisição ou emprego de uma unidade do insumo.
IV. O custo total é definido como o custo total do insumo na composição de custos unitários.
V. O custo total para a execução do serviço de alvenaria é de R$ 21,35.
Estão corretas apenas as afirmativas
Para totalizar o custo de uma obra atribui-se a cada serviço uma composição de custos unitários. Para o serviço de
alvenaria foram considerados os seguintes insumos:
Conforme as tabelas orçamentárias apresentadas e de acordo com os conceitos sobre custos, analise as afirmativas a
seguir. I. O quantitativo de serviço a ser realizado para alvenaria é de 100 m².
II. O custo unitário do tijolo cerâmico é R$ 0,25.
III. O custo unitário é o custo de aquisição ou emprego de uma unidade do insumo.
IV. O custo total é definido como o custo total do insumo na composição de custos unitários.
V. O custo total para a execução do serviço de alvenaria é de R$ 21,35. Estão corretas apenas as afirmativas
Provas
Questão presente nas seguintes provas
O concreto de cimento portland é um material de construção constituído pela mistura de um aglomerante (cimento)
com um ou mais materiais inertes (aglomerados graúdo e miúdo) e água, podendo ter, ainda, aditivos e adições. A
qualidade do concreto dependerá dos seguintes fatores, EXCETO:
Provas
Questão presente nas seguintes provas
Para o emprego como material de construção, algumas das propriedades dos materiais metálicos que interessam são:
aparência, densidade, condutividade térmica, resistência mecânica à fadiga e à oxidação (corrosão). Diante do exposto,
marque V para as afirmativas verdadeiras e F para as falsas.
( ) Todos os metais são sólidos a temperaturas comuns a construções, apresentando porosidade aparente. ( ) A densidade do aço empregado na construção gira em torno de 7800 kg/m3 . ( ) O aço é um excelente isolante térmico, sendo empregado na construção civil para essa finalidade. ( ) Os aços apresentam grandes valores de resistência à tração e ao choque, porém têm baixa resistência à compressão. ( ) A ruptura por fadiga é a que ocorre quando o metal é solicitado repetidas vezes por cargas menores ou em sentidos variados (cargas dinâmicas), sendo causada pela desagregação progressiva da coesão entre os cristais que formam o material metálico. Alguns metais apresentam baixa resistência à fadiga. ( ) A corrosão é a transformação não intencional de um metal em compostos não aderentes, solúveis ou dispersíveis no ambiente em que o metal se encontra. Todo metal, para ser empregado na construção civil, deve ter algum tratamento para proteção contra a corrosão.
A sequência está correta em
( ) Todos os metais são sólidos a temperaturas comuns a construções, apresentando porosidade aparente. ( ) A densidade do aço empregado na construção gira em torno de 7800 kg/m3 . ( ) O aço é um excelente isolante térmico, sendo empregado na construção civil para essa finalidade. ( ) Os aços apresentam grandes valores de resistência à tração e ao choque, porém têm baixa resistência à compressão. ( ) A ruptura por fadiga é a que ocorre quando o metal é solicitado repetidas vezes por cargas menores ou em sentidos variados (cargas dinâmicas), sendo causada pela desagregação progressiva da coesão entre os cristais que formam o material metálico. Alguns metais apresentam baixa resistência à fadiga. ( ) A corrosão é a transformação não intencional de um metal em compostos não aderentes, solúveis ou dispersíveis no ambiente em que o metal se encontra. Todo metal, para ser empregado na construção civil, deve ter algum tratamento para proteção contra a corrosão.
A sequência está correta em
Provas
Questão presente nas seguintes provas
O sistema de fundações é formado pelo elemento estrutural do edifício que fica abaixo do solo e o maciço de solo
envolvente sob a base e ao longo do fuste. Sua função é suportar com segurança as cargas provenientes do edifício. As
fundações podem ser classificas em rasas e profundas. Sobre as fundações profundas, assinale a afirmativa INCORRETA.
Provas
Questão presente nas seguintes provas
As tubulações de águas pluviais são de fundamental importância, contribuindo para o aumento da durabilidade das
edificações, visto sua proteção contra acúmulo indevido da água da chuva nas coberturas, que são um dos elementos
mais danosos para a durabilidade e a aparência das edificações. Em relação às instalações prediais de águas pluviais,
analise as afirmativas a seguir.
I. Os códigos de obras das municipalidades, em geral, proíbem o caimento livre da água dos telhados de prédios de mais de um pavimento, bem como o caimento em terrenos vizinhos. II. Os condutores horizontais são encaminhados à rede pública de coleta de águas pluviais (onde houver) através de variadas ligações subterrâneas entre a última caixa de areia (inspeção) e o coletor público. III. Os condutores verticais devem, sempre que possível, ser projetados em uma só prumada. Em casos de ocorrência de desvios, devem-se usar curvas de 90° de raio longo ou curvas de 45° e tubos operculados.
Está(ão) correta(s) a(s) afirmativa(s)
I. Os códigos de obras das municipalidades, em geral, proíbem o caimento livre da água dos telhados de prédios de mais de um pavimento, bem como o caimento em terrenos vizinhos. II. Os condutores horizontais são encaminhados à rede pública de coleta de águas pluviais (onde houver) através de variadas ligações subterrâneas entre a última caixa de areia (inspeção) e o coletor público. III. Os condutores verticais devem, sempre que possível, ser projetados em uma só prumada. Em casos de ocorrência de desvios, devem-se usar curvas de 90° de raio longo ou curvas de 45° e tubos operculados.
Está(ão) correta(s) a(s) afirmativa(s)
Provas
Questão presente nas seguintes provas
Cadernos
Caderno Container