Foram encontradas 60 questões.
Considere a Figura esquematizada e os dados de um pavimento tipo, mostrados a seguir, que correspondem à parte do projeto de armação dos pilares do 1ºao 5º pavimentos tipo de uma certa obra, para responder à questão.

Sabendo-se que em uma obra estão sendo recebidas barras de 12 m de comprimento, qual é a quantidade de peças N2 que podem ser cortadas em cada uma dessas barras?
Provas
Questão presente nas seguintes provas
Para uma edificação, está sendo projetada uma campainha com fio, cujo botão de acionamento será localizado no lado externo do muro.
No projeto, para fazer a ligação entre a campainha e o botão de acionamento, é(são) utilizado(s) apenas
No projeto, para fazer a ligação entre a campainha e o botão de acionamento, é(são) utilizado(s) apenas
Provas
Questão presente nas seguintes provas
Em um projeto de fundações, foram projetadas algumas sapatas excêntricas.
Nesse tipo de fundação,
Nesse tipo de fundação,
Provas
Questão presente nas seguintes provas
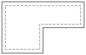
Considere o croqui a seguir que representa o contorno de uma construção e o contorno de seu telhado, que será de telhas cerâmicas. Para esse telhado, deverá ser feita a divisão convencional das águas, de forma que todos os caimentos sejam iguais e terminem em água sobre todas as alvenarias de contorno da construção.

Após o traçado das bissetrizes e o lançamento das peças que compõem a estrutura do telhado, a quantidade de cumeeiras, espigões e rincões será, respectivamente, de

Após o traçado das bissetrizes e o lançamento das peças que compõem a estrutura do telhado, a quantidade de cumeeiras, espigões e rincões será, respectivamente, de
Provas
Questão presente nas seguintes provas
O AutoCad 2010 possui alguns comandos que permitem encontrar um ponto com precisão. Dentre eles, está aquele que atrai um ponto do objeto que estiver mais próximo ao ponto especificado.
O símbolo que representa esse comando é
O símbolo que representa esse comando é
Provas
Questão presente nas seguintes provas
Na composição dos concretos, são utilizados agregados graúdos e agregados miúdos.
Ressalvados os limites estabelecidos nas normas específicas, são classificados como miúdos aqueles agregados que passam pela peneira com abertura de malha, em mm, correspondente a
Ressalvados os limites estabelecidos nas normas específicas, são classificados como miúdos aqueles agregados que passam pela peneira com abertura de malha, em mm, correspondente a
Provas
Questão presente nas seguintes provas
Em uma determinada obra, as fundações que estão sendo realizadas utilizam o processo de cravação de um tubo metálico por meio de golpes de um pilão em uma bucha localizada dentro do tubo.
Esse processo é o da fundação em estaca
Esse processo é o da fundação em estaca
Provas
Questão presente nas seguintes provas
Um solo, ao longo do tempo, apresenta redução progressiva do volume de sua massa, resultante da diminuição do seu volume de vazios. Essa redução pode ocorrer em função da expulsão de ar ou de água, decorrente do efeito de seu peso próprio ou de acréscimo de tensão externa.
Um solo com essas características está sofrendo um(a)
Um solo com essas características está sofrendo um(a)
Provas
Questão presente nas seguintes provas
Conforme as Normas da ABNT, para a execução de estacas escavadas com trado mecânico, após a perfuração, a concretagem deve ser realizada
Provas
Questão presente nas seguintes provas
Considere a Figura a seguir que está sendo desenhada com o comando Line do AutoCAD.

Após especificado o ponto P1, para especificar o ponto P2 utilizando-se coordenadas relativas cartesianas, deve-se digitar

Após especificado o ponto P1, para especificar o ponto P2 utilizando-se coordenadas relativas cartesianas, deve-se digitar
Provas
Questão presente nas seguintes provas
Cadernos
Caderno Container