Foram encontradas 120 questões.
Disciplina: Desenho Técnico e Industrial
Banca: CESPE / CEBRASPE
Orgão: PF
Julgue o item que se segue, tendo em vista que em engenharia e arquitetura são comuns os desenhos de curvas de nível em escala muito reduzida para representar os acidentes dos terrenos.
O desenho abaixo mostra uma depressão em forma de cratera com aproximadamente 4 m de profundidade em relação à construção adjacente.

Provas
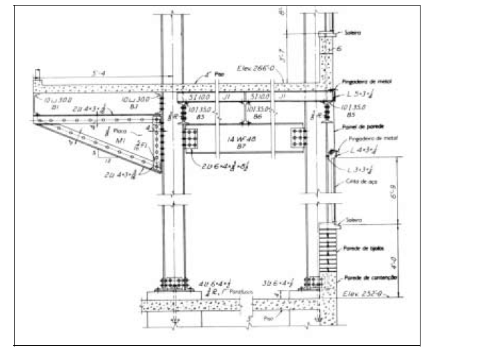
Disciplina: Desenho Técnico e Industrial
Banca: CESPE / CEBRASPE
Orgão: PF
Considerando que a um desenhista são fundamentais a leitura e a interpretação dos desenhos técnicos, julgue o seguinte item.
A figura abaixo mostra um corte assimétrico-transverso que passa por uma estrutura de aço que apoia uma laje de concreto que termina em balanço (projetando-se para fora dos apoios da estrutura principal). Esse balanço, por sua vez, está apoiado em um perfil de aço que corre sobre uma estrutura triangular.

Provas
Disciplina: Desenho Técnico e Industrial
Banca: CESPE / CEBRASPE
Orgão: PF
As perspectivas realísticas com dois pontos de fuga, largamente utilizadas na propaganda para a venda de edifícios de apartamentos, são perspectivas cônicas executadas a partir das plantas baixas fornecidas pelos arquitetos. De acordo com o conhecimento da técnica de execução dessas perspectivas, julgue o item abaixo.
A preparação para o traçado de uma perspectiva com três pontos de fuga pode ser corretamente executada da forma a seguir: definição de um vértice ou um ponto da planta baixa como a referência das alturas em VG na perspectiva; colocação da planta baixa inclinada em relação a uma linha que define o plano do quadro; traçado da linha do horizonte que receberá os pontos de fuga; determinação dos pontos de fuga sobre a linha do horizonte partindo das laterais da planta baixa; definição da distância e posição do observador em relação à planta baixa.
A partir dessa preparação, é possível iniciar o traçado das visuais que ligam o observador aos vértices da planta baixa e demais procedimentos para desenhar, completar e detalhar a perspectiva.
Provas
Disciplina: Desenho Técnico e Industrial
Banca: CESPE / CEBRASPE
Orgão: PF
Os desenhos de cortes são utilizados como auxiliares valiosos quando é necessário mostrar uma parte interna de um objeto. Acerca desse assunto, julgue os itens a seguir.
Na representação de um projeto arquitetônico, um corte transversal é um desenho que mostra o resultado de um corte da edificação por um plano vertical que passa ao longo da sua maior dimensão, ou seja, o que costuma ser o comprimento.
Provas
Disciplina: Desenho Técnico e Industrial
Banca: CESPE / CEBRASPE
Orgão: PF
Os desenhos de cortes são utilizados como auxiliares valiosos quando é necessário mostrar uma parte interna de um objeto. Acerca desse assunto, julgue os itens a seguir.
A figura abaixo mostra o que se chama de meio-corte, utilizado às vezes no desenho de objetos simétricos nos quais uma metade é desenhada em corte e a outra, em vista convencional.

Provas
Disciplina: Desenho Técnico e Industrial
Banca: CESPE / CEBRASPE
Orgão: PF
De acordo com os sistemas de projeção, julgue o item seguinte.
Sabendo que faces e arestas somente são representadas em verdadeira grandeza quando são paralelas aos planos em que estão sendo projetadas, é correto afirmar que, nas vistas ortográficas mostradas na figura abaixo, a vista lateral direita é a única que mostra a verdadeira grandeza da aresta AB.

Provas
Disciplina: Desenho Técnico e Industrial
Banca: CESPE / CEBRASPE
Orgão: PF
Os desenhos de objetos, edifícios, obras etc. em perspectiva são formas valiosas de representação, por mostrarem os objetos de uma maneira muito próxima à realidade. Em relação ao conhecimento de perspectivas, julgue os itens subseqüentes.
Vistas ou perspectivas explodidas de um objeto são desenhos diagramáticos largamente usados em desenho industrial que mostram a posição de montagem dos diferentes componentes.
Provas
Disciplina: Desenho Técnico e Industrial
Banca: CESPE / CEBRASPE
Orgão: PF
Os desenhos de objetos, edifícios, obras etc. em perspectiva são formas valiosas de representação, por mostrarem os objetos de uma maneira muito próxima à realidade. Em relação ao conhecimento de perspectivas, julgue os itens subseqüentes.
A perspectiva cavaleira geralmente é utilizada quando se deseja privilegiar uma das faces de um objeto, já que ela parte de uma das vistas ortogonais que mantém a sua verdadeira grandeza no desenho. A cavaleira é muito útil quando as faces laterais do objeto contêm curvas, porque, nesse caso, estas não sofrem deformações das perspectivas na representação.
Provas
Disciplina: Desenho Técnico e Industrial
Banca: CESPE / CEBRASPE
Orgão: PF
Os desenhos de objetos, edifícios, obras etc. em perspectiva são formas valiosas de representação, por mostrarem os objetos de uma maneira muito próxima à realidade. Em relação ao conhecimento de perspectivas, julgue os itens subseqüentes.
A perspectiva isométrica difere da dimétrica e da trimétrica porque nela (isométrica) os três eixos axonométricos têm a mesma inclinação em relação ao quadro e todas as cotas são representadas na mesma escala, fazendo o mesmo ângulo de 120º entre si. Os coeficientes de redução das escalas dos eixos são iguais. Na perspectiva dimétrica, um dos eixos tem inclinação diferente dos outros e na trimétrica os três eixos estão inclinados diferentemente em relação ao quadro.
Provas
Disciplina: Desenho Técnico e Industrial
Banca: CESPE / CEBRASPE
Orgão: PF
Os desenhos de objetos, edifícios, obras etc. em perspectiva são formas valiosas de representação, por mostrarem os objetos de uma maneira muito próxima à realidade. Em relação ao conhecimento de perspectivas, julgue os itens subseqüentes.
As perspectivas cilíndricas ou paralelas são, em última instância, perspectivas cujos três pontos de fuga encontramse no infinito. Nessas perspectivas, todas as arestas paralelas entre si em um objeto real são, forçosamente, paralelas no desenho.
Provas
Caderno Container