Foram encontradas 220 questões.
Dos 310 estudantes do ensino fundamental de uma escola, 60% foram aprovados em
matemática ao final do ano letivo de 2022. Dos alunos reprovados, 25% são meninos. Quantas meninas
ficaram reprovadas em matemática ao final do ano letivo de 2022?
Provas
Questão presente nas seguintes provas
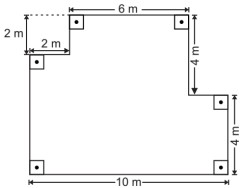
A figura abaixo mostra a planta do terreno de Daniel.

Ele precisa cercar esse terreno com arame farpado, dando 3 voltas de arame farpado nesse terreno. Sabe-se que 2 metros desse fio custam R$ 16,90. Qual o valor Daniel vai gastar com fio de arame para cercar o seu terreno?

Ele precisa cercar esse terreno com arame farpado, dando 3 voltas de arame farpado nesse terreno. Sabe-se que 2 metros desse fio custam R$ 16,90. Qual o valor Daniel vai gastar com fio de arame para cercar o seu terreno?
Provas
Questão presente nas seguintes provas
Qual a probabilidade de lançar 3 dados não viciados e sair pelo menos um dado com o
número 4?
Provas
Questão presente nas seguintes provas
Sônia foi ao mercado na segunda feira e comprou 2 potes de iogurte e uma peça de
queijo e pagou por essa compra R$ 79,80. Na quarta-feira, ela voltou a esse mesmo mercado e comprou
4 potes do mesmo iogurte e 2 peças do mesmo queijo, pagando por essa compra R$ 74,00. No sábado
ela foi novamente ao mercado e comprou 1 pote de iogurte e 2 peças de queijo. Qual foi o valor pago pela
compra feita no sábado sabendo que os produtos comprados por ela não sofreram alteração de valor
naquela semana?
Provas
Questão presente nas seguintes provas
“Também chamado de garapa, o caldo de cana vem diretamente da cana-de-açúcar por
meio do processo de moagem: a casca da cana é raspada para eliminar sujeiras, a cana é espremida, e o
caldo sai pronto para tomar (fica melhor gelado!).”
(Fonte: https://recreio.uol.com.br/noticias/escola/bebidas-tipicamente-brasileiras.phtml. Adaptado.)
Qual é a classificação dos sujeitos dos verbos grifados no trecho acima?
(Fonte: https://recreio.uol.com.br/noticias/escola/bebidas-tipicamente-brasileiras.phtml. Adaptado.)
Qual é a classificação dos sujeitos dos verbos grifados no trecho acima?
Provas
Questão presente nas seguintes provas
“Quem pega a rodovia M18, na Irlanda, pode observar um pequeno arbusto.
Aparentemente, ele não tem nada de especial – é uma vegetação comum de beira de estrada, como
qualquer outra. Só que esse arbusto em específico foi responsável por desviar a obra de uma rodovia. O
motivo? Ele é, supostamente, a casa de fadas.”
(Fonte: https://super.abril.com.br/historia/em-1999-a-irlanda-mudou-uma-rodovia-de-lugar-para-nao-perturbar-fadas/. Adaptado.)
Qual das expressões abaixo NÃO pode ser considerada sinônima da que está grifada no texto?
(Fonte: https://super.abril.com.br/historia/em-1999-a-irlanda-mudou-uma-rodovia-de-lugar-para-nao-perturbar-fadas/. Adaptado.)
Qual das expressões abaixo NÃO pode ser considerada sinônima da que está grifada no texto?
Provas
Questão presente nas seguintes provas
Assinale a alternativa em que são apresentadas duas palavras proparoxítonas.
Provas
Questão presente nas seguintes provas
Assinale a alternativa em que se veem todas as palavras escritas corretamente.
Provas
Questão presente nas seguintes provas
Qual das frases abaixo está escrita corretamente quanto ao uso da letra maiúscula?
Provas
Questão presente nas seguintes provas
Atenção: Leia atentamente o texto a seguir e responda a questão:
Congresso ganha iluminação vermelha em campanha sobre dislexia
O prédio do Congresso Nacional ficará iluminado de vermelho em apoio à campanha de
conscientização sobre a dislexia, a pedido dos deputados Diego Garcia (Pode-PR) e Rosangela Gomes
(Republicanos-RJ).
Considerada um transtorno específico de aprendizagem de origem neurobiológica, a dislexia se
caracteriza pela dificuldade no reconhecimento preciso e/ou fluente da palavra, na habilidade de
decodificação e em soletração.
A pessoa disléxica tem dificuldade para associar o símbolo gráfico, as letras, com o som que elas
representam, e organizá-los, mentalmente, numa sequência temporal. Por isso, os sintomas tornam-se
mais evidentes durante a fase da alfabetização.
De acordo com a Associação Brasileira de Dislexia, o transtorno acomete de 0,5% a 17% da
população mundial. O diagnóstico deve ser feito por uma equipe multidisciplinar, formada por psicólogo,
fonoaudiólogo e psicopedagogo clínico. Mas pode se estender a outros profissionais, como neurologista
e oftalmologista, conforme o caso.
Outubro é o mês internacional de conscientização da dislexia, quando diversas organizações ao
redor do mundo se esforçam para informar e sensibilizar as pessoas sobre o problema.
Fonte: Agência Câmara de Notícias (adaptado)
Provas
Questão presente nas seguintes provas
Cadernos
Caderno Container