Foram encontradas 765 questões.
Na construção de uma loja comercial de 140,00m² de área construída, com previsão de conclusão da obra em
7 meses. O proprietário está analisando a aplicação dos recursos de execução da 1ª etapa da obra e o quadro
abaixo é uma representação parcial do cronograma da obra. O valor total executado da obra em reais ao final de
1ª etapa:
Onde: Qn = Quantidade de serviço no mês n, em porcentagem; Mn = Valor do serviço no mês n.
Onde: Qn = Quantidade de serviço no mês n, em porcentagem; Mn = Valor do serviço no mês n.
Provas
Questão presente nas seguintes provas
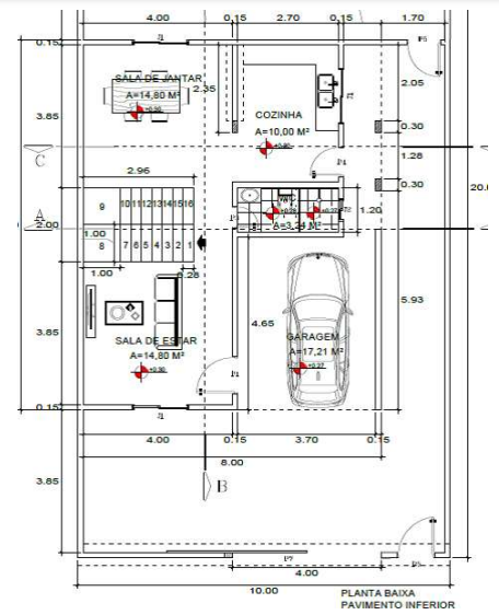
Na Planta Baixa é representada uma vista de cima de uma edificação, que possibilita ver todos os cômodos e
suas respectivas medidas facilitando a execução da obra.
Analise as assertivas em relação à planta baixa da figura acima:
I. A planta baixa não apresenta garagem.
II. No projeto apresentado não existe área de serviço.
III. A cozinha não tem porta.
IV. A divisão interna da residência apresentada no projeto é da seguinte forma: garagem, sala de estar, bwc, sala de jantar, cozinha e escada.
Em relação às assertivas acima, pode-se afirmar:
Analise as assertivas em relação à planta baixa da figura acima:
I. A planta baixa não apresenta garagem.
II. No projeto apresentado não existe área de serviço.
III. A cozinha não tem porta.
IV. A divisão interna da residência apresentada no projeto é da seguinte forma: garagem, sala de estar, bwc, sala de jantar, cozinha e escada.
Em relação às assertivas acima, pode-se afirmar:
Provas
Questão presente nas seguintes provas
Detalhes no desenho técnico como a espessura
e o tipo de linhas utilizadas diferenciam os
elementos representados e devem ser observadas
para evitar interpretações equivocadas. Analise as
assertivas acerca da espessura e tipo de linhas:
I. A linha contínua larga representa contornos e arestas visíveis.
II. A linha tracejada larga representa contornos e arestas não visíveis.
III. A linha traço ponto e estreita representa linha de centro.
Após a análise das assertivas, julgue-as:
I. A linha contínua larga representa contornos e arestas visíveis.
II. A linha tracejada larga representa contornos e arestas não visíveis.
III. A linha traço ponto e estreita representa linha de centro.
Após a análise das assertivas, julgue-as:
Provas
Questão presente nas seguintes provas
O projeto hidráulico em uma edificação é
ferramenta primordial no planejamento da
distribuição dos pontos hidráulicos na obra, pois
nele contém informações sobre a rede de
alimentação, rede de distribuição, detalhes da caixa
d’água e outros. Julgue as assertivas:
I. Na escolha da tubulação de hidrostática deve-se usar tubos de boa qualidade e que resistam a pressão hidrostática.
II. Caso a edificação tenha tubulações de amianto, o projeto deve prever a troca por tubulação de pvc, que é considerada uma prática ambientalmente correta.
III. O projeto deve apresentar o perfil isométrico da instalação hidráulica, que fornece detalhes como o diâmetro das tubulações e a quantidade e tipo de pontos hidráulicos.
IV. O projeto hidráulico só deve ser desenhado na escala de 1/75.
Após a análise das assertivas, indique a opção correta:
I. Na escolha da tubulação de hidrostática deve-se usar tubos de boa qualidade e que resistam a pressão hidrostática.
II. Caso a edificação tenha tubulações de amianto, o projeto deve prever a troca por tubulação de pvc, que é considerada uma prática ambientalmente correta.
III. O projeto deve apresentar o perfil isométrico da instalação hidráulica, que fornece detalhes como o diâmetro das tubulações e a quantidade e tipo de pontos hidráulicos.
IV. O projeto hidráulico só deve ser desenhado na escala de 1/75.
Após a análise das assertivas, indique a opção correta:
Provas
Questão presente nas seguintes provas
A Constituição Federal condiciona o ingresso no
serviço público à aprovação prévia em concurso
público de provas ou de provas e títulos, conforme o
artigo 37 da Constituição Federal. Indique a opção
incorreta acerca do serviço público:
Provas
Questão presente nas seguintes provas
O traço de concreto em massa feito pelo
pedreiro, de composição 1:2:3 para enchimento de
pilares de concreto devidamente posicionados no
caixilho de madeira úmidos. A quantidade de
materiais empregados na produção do concreto
deve ser:
Provas
Questão presente nas seguintes provas
Na aula de Desenho Técnico o professor está
orientando os alunos em uma atividade de
dobragem de folha de papel A2 e usou o A4 como
padrão para compreender a relação de equivalência
entre os papéis da ABNT usados na impressão de
projetos de Engenharia. A quantidade de folhas A4
que cabe em uma folha de A2 é indicada na opção:
Provas
Questão presente nas seguintes provas
Na contratação de armadores de ferro para a
obra de construção de uma rodoviária tem como um
dos itens exigidos na seleção é que o candidato
tenha o conhecimento da relação entre a bitola das
barras de aço em polegada e a medida
correspondente em mm, fazer a leitura de projetos
estruturais e a montagem correta da ferragem de
vigas e pilares da obra. Em um dos itens da seleção
havia uma pergunta acerca das bitolas das barras de
3/8” e 1/2” em mm, que é indicada na opção:
Provas
Questão presente nas seguintes provas
O uso de escala é importante para medir
distâncias dentro de um projeto de Engenharia.
Utilizando uma régua milimetrada em uma planta
baixa, o Técnico de Edificações mediu e o
comprimento de uma suíte obtendo 6,00cm e que o
comprimento real do quarto será de 4,50m. A partir
desses dados, pode-se afirmar que a escala da planta
baixa é de:
Provas
Questão presente nas seguintes provas
Na reforma de uma edificação deve-se realizar
ajustes, recuperação das propriedades técnicas,
verificar novas demandas junto ao cliente, projetos
técnicos e a legalização da obra junto ao CREA e a
Prefeitura. Sobre o processo de reforma, pode-se
afirmar:
Provas
Questão presente nas seguintes provas
Cadernos
Caderno Container