Foram encontradas 100 questões.
No que diz respeito aos termos usuais da construção civil e arquitetura, assinale a alternativa INCORRETA.
Provas
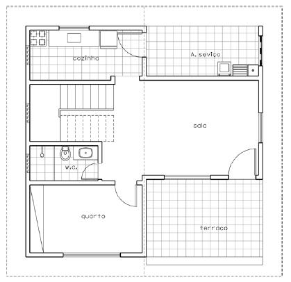
Observe a planta a seguir e responda as questões 29 e 30.

Provas
Observe a planta a seguir e responda as questões 29 e 30.

Provas
No desenho técnico, os tipos de linha são utilizados para representar diferentes significados. Assinale a alternativa que contém o tipo de linha utilizado para representar linhas de cotas, linhas auxiliares, linhas de chamadas, hachuras, linhas de centros curtas.
Provas
Sobre a questão anterior, a perspectiva dada é
Provas
Dada a peça representada em perspectiva no primeiro diedro, qual seria a alternativa que corresponde a sua vista frontal?

Provas
Disciplina: Engenharia Elétrica
Banca: UPENET/IAUPE
Orgão: Pref. Camaragibe-PE
Sobre motores elétricos, é CORRETO afirmar que
Provas
Disciplina: Engenharia Eletrônica
Banca: UPENET/IAUPE
Orgão: Pref. Camaragibe-PE
No circuito abaixo, as resistências estão em ohms.

Desprezando-se as resistências dos fios de ligação, o rendimento elétrico do motor (M) é
Provas
Disciplina: Engenharia Eletrônica
Banca: UPENET/IAUPE
Orgão: Pref. Camaragibe-PE
Um sistema trifásico equilibrado com ligação em Y tem uma tensão de linha de 208 V e uma corrente de linha de 5 A. O fator de potência da carga é 0,8. A potência total fornecida à carga é de
Provas
Disciplina: Engenharia Eletrônica
Banca: UPENET/IAUPE
Orgão: Pref. Camaragibe-PE
Dois resistores iguais, ligados em série, consomem uma potência de 10 W, quando submetidos a uma certa tensão. A potência consumida, quando os resistores são ligados em paralelo e submetidos à mesma tensão, é
Provas
Caderno Container