Foram encontradas 30 questões.
O Google Drive permite compartilhar arquivos ou
pastas para que outras pessoas possam vê-los, comentá-los ou editá-los. Para ver os arquivos que outras pessoas compartilharam com você, abra o site
drive.google.com, usando um computador, e acesse
a seção
Provas
Questão presente nas seguintes provas
Após inserir a função =SE(2=3;4;5) em uma célula vazia
de uma planilha do Microsoft Excel 2013, o conteúdo
exibido nessa célula será
Provas
Questão presente nas seguintes provas
Complete as lacunas do texto.
Para exibir a numeração de linhas de um documento texto no LibreOffice Writer, um usuário pode clicar em _____________, depois em ______________, marcar a opção Mostrar Numeração e clicar em ______________.
A sequência que preenchem corretamente as lacunas do texto é:
Provas
Questão presente nas seguintes provas
A respeito dos mecanismos de segurança de informação, é correto afirmar que um firewall pessoal é
capaz de
Provas
Questão presente nas seguintes provas
É uma opção de espaçamento de linhas (entrelinhas),
na formatação de parágrafos de um documento-texto do LibreOffice Writer, EXCETO o
Provas
Questão presente nas seguintes provas
Atualmente a maioria dos projetos automatizados de
edificações é executada em softwares de CAD (Computer Aided Design), sendo um dos principais do mercado o AutoCAD.
No programa AutoCAD, é correto afirmar que os comandos
No programa AutoCAD, é correto afirmar que os comandos
Provas
Questão presente nas seguintes provas
A prefeitura de Caranaíba-MG montou um cronograma físico-financeiro para uma obra, num valor total de R$
360.000,00, a ser executada em 6 meses. Na tabela a seguir têm-se a descrição dos serviços, a percentagem de
serviços executadas em cada mês, o valor do total por serviço e o valor total geral da obra.

A esse respeito, avalie o que se afirma.
I – O desembolso financeiro do mês de março é de R$ 88.000,00. II – O desembolso financeiro realizado até o mês de fevereiro é de R$ 26.800,00. III – O serviço de “Movimento de terra” corresponde a 5% do valor total geral da obra.
Está correto apenas o que se afirma em

A esse respeito, avalie o que se afirma.
I – O desembolso financeiro do mês de março é de R$ 88.000,00. II – O desembolso financeiro realizado até o mês de fevereiro é de R$ 26.800,00. III – O serviço de “Movimento de terra” corresponde a 5% do valor total geral da obra.
Está correto apenas o que se afirma em
Provas
Questão presente nas seguintes provas
Considere as seguintes peças hidráulicas ilustradas nas fi guras a seguir.

Provas
Questão presente nas seguintes provas
Considere os pontos A e B, numa planta com curvas
de nível com equidistância verti cal igual a 5 metros.
A distância gráfica entre estes dois pontos é igual a
25 cm e a escala dessa planta é 1/2.000, conforme
ilustrado a seguir.

É correto afirmar que a inclinação do ponto A para o ponto B, em percentagem, é igual a

É correto afirmar que a inclinação do ponto A para o ponto B, em percentagem, é igual a
Provas
Questão presente nas seguintes provas
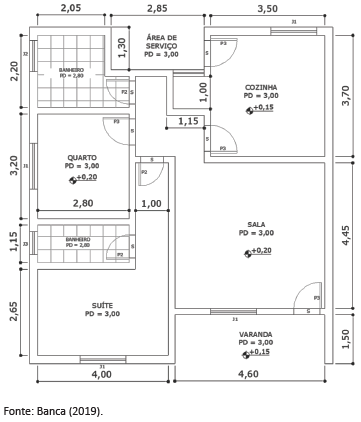
Tem-se a planta de uma edificação conforme ilustração a seguir, com paredes externas iguais a 0,25 m e
paredes internas iguais a 0,20 m, e todas as dimensões cotadas no desenho em metros.

Para a plotagem completa desse desenho na escala 1/50, o tamanho de papel adequado, de forma a ocupar a maior área útil deste papel, é o de formato

Para a plotagem completa desse desenho na escala 1/50, o tamanho de papel adequado, de forma a ocupar a maior área útil deste papel, é o de formato
Provas
Questão presente nas seguintes provas
Cadernos
Caderno Container