Foram encontradas 525 questões.
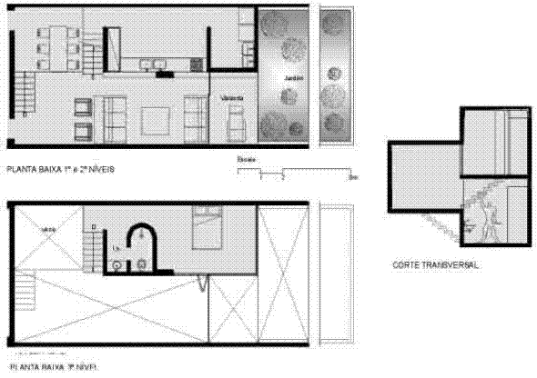
INSTRUÇÃO: Os desenhos abaixo fazem parte dos estudos de um projeto de edifício residencial. Observe-os atentamente antes de responder as questões 35, 36 e 37.

A área de projeção e a área total da unidade habitacional acima representada podem ser estimadas, respectivamente, em:
Provas
INSTRUÇÃO: Observe atentamente o desenho abaixo para responder às questões 32, 33 e 34.

Ainda em relação ao desenho acima, todas as afirmativas são verdadeiras, EXCETO:
Provas
INSTRUÇÃO: Observe atentamente o desenho abaixo para responder às questões 32, 33 e 34.

A partir do desenho do corte acima, é possível inferir que a solução adotada para a cobertura é:
Provas
INSTRUÇÃO: Observe atentamente o desenho abaixo para responder às questões 32, 33 e 34.

A partir do desenho do corte acima, é possível inferir que o desnível do terreno representado é de cerca de:
Provas
I NSTRUÇÃO: Observe atentamente o desenho abaixo antes de responder as questões 30 e 31.

No âmbito do projeto arquitetônico, a função do desenho acima é indicar:
Provas
I NSTRUÇÃO: Observe atentamente o desenho abaixo antes de responder as questões 30 e 31.

O desenho acima representa uma planta de:
Provas
O Estatuto da Cidade (Lei 10.257/01) regulamentou:
Provas

O desenho acima se refere a um projeto de instalações:
Provas
Todas as imagens abaixo ilustram construções nas quais foram utilizadas estruturas metálicas, EXCETO:
Provas
Supondo que um determinado sistema de abastecimento de água tenha as seguintes partes: adução, captação, distribuição, recalque, reservação e tratamento, a seqüência lógica entre a bacia hidrográfica e o consumidor final está indicada em:
Provas
Caderno Container