Foram encontradas 50 questões.
Disciplina: Ética e Regulação Profissional
Banca: FUNDATEC
Orgão: Pref. Foz Iguaçu-PR
De acordo com a Lei nº 12.378/2010, que regulamenta o exercício da Arquitetura e Urbanismo, é INCORRETO afirmar que:
Provas
Disciplina: Engenharia Ambiental e Sanitária
Banca: FUNDATEC
Orgão: Pref. Foz Iguaçu-PR
Sobre os sistemas prediais de esgoto sanitário, de acordo com a NBR 8160, é INCORRETO afirmar que:
Provas
Considerando a vida útil de projeto mínima e superior (VUP) apresentada na NBR 15575-1, na Tabela 3 abaixo, as letras A, B, C e D representam, respectivamente:
|
Sistema |
VUP - anos |
||
|
Mínimo |
Intermediário |
Superior |
|
|
Estrutura |
A |
||
|
Pisos internos |
B |
||
|
Vedação vertical externa |
C |
||
|
Vedação vertical interna |
|||
|
Cobertura |
D |
||
Tabela 3 – Vida útil de projeto mínima e superior (VUP)
Provas
Durante o dia, as dependências da edificação habitacional listadas na Tabela 1 abaixo devem receber iluminação natural conveniente, oriunda diretamente do exterior ou indiretamente, através de recintos adjacentes (NBR 15575). Desse modo, as letras A e B correspondem, respectivamente, a:
|
Dependência |
Iluminância geral (lux) para o nível mínimo de desempenho M |
|
Sala de estar, dormitório, copa/cozinha, área de serviço |
A |
|
Banheiro, corredor ou escada interna à unidade, corredor de uso comum, escadaria de uso comum, garagens, estacionamentos (demais ambientes) |
B |
Tabela 1 – níveis de iluminância geral para iluminação natural
Provas
Sobre a execução de levantamentos topográficos apresentados na NBR 13133, é correto afirmar que:
Provas
Em relação às estruturas de madeira (NBR 7190), é INCORRETO afirmar que:
Provas
A Tabela 6 abaixo apresenta as tolerâncias dimensionais para as secões transversais de elementos estruturais lineares e para a espessura de elementos estruturais de superfície, conforme disposto na NBR 14931. Nesse sentido, as letras A, B e D apresentam, respectivamente:
|
Dimensão (a) cm |
Tolerância (f) mm |
|
a≤60 |
A |
|
60<a≤120 |
B |
|
120<a≤250 |
C |
|
a>250 |
D |
Tabela 6
Provas
- Normas e LegislaçõesNBRsNBR 8.800: Projeto de Estruturas de Aço e de Estruturas Mistas de Aço e Concreto de Edifícios
Sobre o projeto de estruturas de aço e de estruturas mistas de aço e concreto de edifícios, apresentados na NBR 8800, analise as assertivas abaixo:
I. Os desenhos de projeto devem indicar quais as normas complementares que foram usadas e dar as especificações de todos os materiais estruturais empregados. Devem indicar também os dados relativos às ações adotadas e aos esforços solicitantes de cálculo a serem resistidos por barras e ligações, quando necessários para a preparação adequada dos desenhos de fabricação.
II. Nas ligações com parafusos de alta resistência, os desenhos de projeto devem indicar se o aperto será normal ou com protensão inicial e, nesse último caso, se os parafusos trabalharem a cisalhamento, se a ligação é por atrito ou por contato.
III. No caso de edifícios industriais, devem ser apresentados nos desenhos de projeto ou memorial de cálculo o esquema de localização das ações decorrentes dos equipamentos mais importantes que serão suportados pela estrutura, os valores dessas ações e, quando for o caso, os dados para a consideração de efeitos dinâmicos.
Quais estão corretas?
Provas
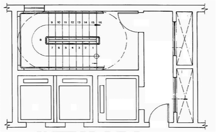
De acordo com a NBR 9077, a Imagem 4 abaixo representa:

Imagem 4
Provas
Em relação aos sistemas prediais de água fria e água quente apresentados na NBR 5626, é correto afirmar que:
Provas
Caderno Container