Foram encontradas 250 questões.
Observe as imagens da casa de Tomie Ohtake (1966), projetada pelo arquiteto Ruy Ohtake.

Disponível em: <http://archdaily.com.br>. Acesso em: 22 jul. 2020

Disponível em: <http://archdaily.com.br>. Acesso em: 22 jul. 2020.

Disponível em: <http://archdaily.com.br>. Acesso em: 22 jul. 2020.
LEGENDA
| 01 | Rampa | 08 |
Dorm. empregada |
15 |
Escritório |
| 02 | Garagem | 09 |
Ban. empregada |
16 |
Atelier |
| 03 | Acesso | 10 | Jantar | 17 |
Vestiário |
| 04 | Vestíbulo | 11 | Lareira | 18 |
Depósito |
| 05 | Copa | 12 | Estar | 19 | Piscina |
| 06 | Cozinha | 13 | Dormitório | 20 | Jardim |
| 07 | Serviço | 14 | Banheiro |
Disponível em: <http://archdaily.com.br>. Acesso em: 22 jul. 2020.
Pela análise das imagens, observa-se que, nessa proposta,
Provas
Recentemente, a Sede da Prefeitura da Cidade de Goiás, inserida no seu Centro Histórico, passou por uma requalificação como mostram as imagens a seguir.

Disponível em: <archdaily.com.br>. Acesso em: 31 jul. 2020.

Disponível em: <http://archdaily.com.br>. Acesso em: 31 jul. 2020.

Disponível em: <http://archdaily.com.br>. Acesso em: 31 jul. 2020.

Disponível em: <http://<archdaily.com.br>. Acesso em: 31 jul. 2020.

Disponível em: <http://archdaily.com.br>. Acesso em: 31 jul. 2020.

Disponível em: <http://archdaily.com.br>. Acesso em: 31 jul. 2020.
A análise das imagens revela que
Provas
De acordo com o Plano Diretor da Cidade de Goiás, as novas edificações a serem implantadas na área de preservação do Patrimônio Histórico poderão compor sua fachada livremente, desde que
Provas
Os riscos de incêndios em sítios históricos de tipologia colonial brasileira têm sido frequentes, com perdas irreversíveis. Algumas características destes sítios os tornam vulneráveis, como por exemplo,
Provas
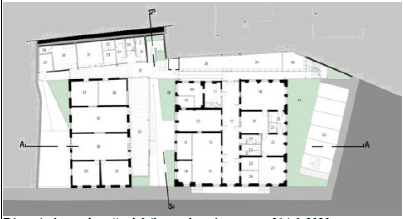
Observe as imagens a seguir, da residência do arquiteto Antônio Lúcio Ferrari Pinheiro, em Goiânia.

Planta Baixa Pavimento Térreo (FONSECA,
Ronaldo da Paixão. Caminhos de uma arquitetura/Obra e trajetória de Antônio Lúcio Ferrari Pinheiro)

Planta Baixa Pavimento Superior (FONSECA,
Ronaldo da Paixão. Caminhos de uma arquitetura/Obra e trajetória de Antônio Lúcio Ferrari Pinheiro)

Corte AA (FONSECA, Ronaldo da Paixão. Caminhos de uma arquitetura/Obra e trajetória de Antônio Lúcio Ferrari Pinheiro)
LEGENDA
|
1 - Piscina |
8 - Garagem |
|
2 - Quarto de empregada |
9 - Salas |
|
3 - Banheiro |
10 - Cozinha |
|
4 - Serviços |
11 - Estudo |
|
5 - Pátio de servi |
12 - Circulação |
|
6 - Varanda |
13 - Quarto |
|
7 - Escritório |
14 - Volume da caixa d’água |

Foto do interior da residência. (FONSECA,
Ronaldo da Paixão. Caminhos de uma arquitetura/Obra e trajetória de Antônio Lúcio Ferrari Pinheiro)
Pela análise das figuras da residência de Antônio Lúcio Ferrari, constata-se que:
Provas
Um projeto de arquitetura consiste na elaboração de representações a respeito de determinado edifício ou ambiente que será construído ou reformado. Sobre o desenvolvimento de projeto arquitetônico, sabe-se que:
Provas
Leia o texto a seguir.
A adoção de conforto térmico nas edificações é entendido como a criação de sistemas construtivos e adaptados do ambiente local e às funções do espaço cooperativamente.
Nesse contexto, sabe-se que:
Provas
A pandemia do coronavírus desafia as agendas e metas globais e atinge duramente as cidades e seus habitantes, indistintamente nos países ricos e pobres, e torna-se um inimigo único global. Para se saber como se quer as cidades pós-pandemia, precisa-se conhecer as cidades prépandemia. É papel do arquiteto questionar a atual realidade dos grandes centros urbanos brasileiros, onde
Provas
Observe a planta do centro histórico da Cidade de Goiás que retrata o processo de ocupação do solo urbano ocorrido no século XVIII e XIX.

Pela análise da figura observa-se que:
Provas
Em dezembro de 2001, a Cidade de Goiás foi reconhecida pela UNESCO como patrimônio cultural mundial. Esse reconhecimento deve-se
Provas
Caderno Container