Foram encontradas 100 questões.
Disciplina: Engenharia Civil
Banca: CESPE / CEBRASPE
Orgão: Pref. Ipojuca-PE
Os levantamentos topográficos são feitos para obter dados fundamentais à elaboração do projeto, como: dimensões exatas do lote, ângulos formados entre os lados adjacentes, perfil do terreno, existência de acidentes geológicos, afloramento de rochas, etc. A respeito dos serviços de levantamento topográfico, julgue o item.
O desenho a seguir representa as curvas de nível de uma gleba, na qual a inclinação do trecho SVI-SIII é maior que a do trecho SI-SIII.

Adervan Machado. O desenho na prática da
engenharia. São Paulo, 1977 (com adaptações).
Provas
Disciplina: Engenharia Civil
Banca: CESPE / CEBRASPE
Orgão: Pref. Ipojuca-PE
Diagrama unifilar é o desenho que comumente aparece nas plantas de instalações elétricas prediais. Ele define as principais partes do sistema elétrico, permitindo a identificação do tipo de instalação, sua dimensão, ligação, número de condutores, modelo do interruptor, e dimensionamento de eletrodutos, condutores, lâmpadas e tomadas.

Internet: <www.scribd.com>. Andréa B. Bertoncel.
Apostila Instalações elétricas prediais. 2008.
A partir da planta com o diagrama unifilar acima, julgue o próximo item.
O diagrama unifilar deve indicar para cada carga (ponto de luz, tomada ou aparelho específico), os seguintes elementos básicos: fonte (ponto de suprimento ou quadro de distribuição); circuito ao qual pertence; pontos de comando (interruptores e chaves associados) e condutores associados.
Provas
Disciplina: Engenharia Civil
Banca: CESPE / CEBRASPE
Orgão: Pref. Ipojuca-PE
Diagrama unifilar é o desenho que comumente aparece nas plantas de instalações elétricas prediais. Ele define as principais partes do sistema elétrico, permitindo a identificação do tipo de instalação, sua dimensão, ligação, número de condutores, modelo do interruptor, e dimensionamento de eletrodutos, condutores, lâmpadas e tomadas.

Internet: <www.scribd.com>. Andréa B. Bertoncel.
Apostila Instalações elétricas prediais. 2008.
A partir da planta com o diagrama unifilar acima, julgue o próximo item.
O circuito de número 1 é o que atende as luminárias, enquanto os restantes 2, 3 e 4 servem as tomadas. O chuveiro tem um circuito exclusivo, o de número 5.
Provas
Disciplina: Engenharia Civil
Banca: CESPE / CEBRASPE
Orgão: Pref. Ipojuca-PE
Diagrama unifilar é o desenho que comumente aparece nas plantas de instalações elétricas prediais. Ele define as principais partes do sistema elétrico, permitindo a identificação do tipo de instalação, sua dimensão, ligação, número de condutores, modelo do interruptor, e dimensionamento de eletrodutos, condutores, lâmpadas e tomadas.

Internet: <www.scribd.com>. Andréa B. Bertoncel.
Apostila Instalações elétricas prediais. 2008.
A partir da planta com o diagrama unifilar acima, julgue o próximo item.
Na garagem existe uma luminária com duas lâmpadas fluorescentes de 40 W cada, e seu interruptor encontra-se ao lado da janela, na parede que separa a garagem do dormitório.
Provas
Disciplina: Desenho Técnico e Industrial
Banca: CESPE / CEBRASPE
Orgão: Pref. Ipojuca-PE
O computador e os programas chamados CAD (Computer Aided Design, ou desenho auxiliado por computador) têm substituído o desenho manual com enormes ganhos de recursos, facilidade e produtividade. A figura abaixo é parte de um desenho executado em AutoCAD, tal como aparece na tela do monitor.

José Antônio de Milito. Técnicas de construção civil e construção de edifícios.
Apostila. Faculdade de Ciências Tecnológicas da P.U.C. – Campinas.
Com relação ao desenho acima e ao programa AutoCAD, julgue o item a seguir.
Os dois círculos concêntricos que circunscrevem o número 2 são desenhados por meio do comando Draw > Circle> Center, executado duas vezes em sequência.
Provas
Disciplina: Desenho Técnico e Industrial
Banca: CESPE / CEBRASPE
Orgão: Pref. Ipojuca-PE
O computador e os programas chamados CAD (Computer Aided Design, ou desenho auxiliado por computador) têm substituído o desenho manual com enormes ganhos de recursos, facilidade e produtividade. A figura abaixo é parte de um desenho executado em AutoCAD, tal como aparece na tela do monitor.

José Antônio de Milito. Técnicas de construção civil e construção de edifícios.
Apostila. Faculdade de Ciências Tecnológicas da P.U.C. – Campinas.
Com relação ao desenho acima e ao programa AutoCAD, julgue o item a seguir.
A distância entre dois pontos pode ser determinada e o seu valor inserido sobre uma linha de cota, por meio do comando Distance, ao se clicar sucessivamente sobre os pontos desejados para se obter os resultados, como as cotas 93, 390 ou 285.
Provas
Disciplina: Desenho Técnico e Industrial
Banca: CESPE / CEBRASPE
Orgão: Pref. Ipojuca-PE
O computador e os programas chamados CAD (Computer Aided Design, ou desenho auxiliado por computador) têm substituído o desenho manual com enormes ganhos de recursos, facilidade e produtividade. A figura abaixo é parte de um desenho executado em AutoCAD, tal como aparece na tela do monitor.

José Antônio de Milito. Técnicas de construção civil e construção de edifícios.
Apostila. Faculdade de Ciências Tecnológicas da P.U.C. – Campinas.
Com relação ao desenho acima e ao programa AutoCAD, julgue o item a seguir.
Nessa imagem, o fato de todas as linhas aparecerem com a mesma espessura indica que não foram definidos os atributos de espessura da linha e de pena para a plotagem.
Provas
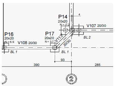
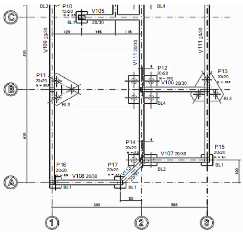
Disciplina: Engenharia Civil
Banca: CESPE / CEBRASPE
Orgão: Pref. Ipojuca-PE

José Antônio de Milito. Técnicas de construção civil e construção de edifícios.
Apostila. Faculdade de Ciências Tecnológicas da P.U.C. Campinas.
Após o movimento de terra, deve-se iniciar a locação pelos elementos da fundação, tais como as estacas, os tubulões, as sapatas isoladas ou corridas, entre outros. Quanto a esse tema e a partir das informações contidas na planta acima, julgue o próximo item.
Nas plantas de formas são representadas as posições e as dimensões das lajes, vigas, pilares e fundações, além de informações sobre as dimensões e tipos de madeira ou chapas metálicas a serem utilizadas nas formas.
Provas
Disciplina: Engenharia Civil
Banca: CESPE / CEBRASPE
Orgão: Pref. Ipojuca-PE

José Antônio de Milito. Técnicas de construção civil e construção de edifícios.
Apostila. Faculdade de Ciências Tecnológicas da P.U.C. Campinas.
Após o movimento de terra, deve-se iniciar a locação pelos elementos da fundação, tais como as estacas, os tubulões, as sapatas isoladas ou corridas, entre outros. Quanto a esse tema e a partir das informações contidas na planta acima, julgue o próximo item.
Os desenhos triangulares BL3, mostrados na figura acima, representam blocos de coroamento que agrupam e solidarizam as cabeças de três estacas, cada um.
Provas
Disciplina: Engenharia Civil
Banca: CESPE / CEBRASPE
Orgão: Pref. Ipojuca-PE

José Antônio de Milito. Técnicas de construção civil e construção de edifícios.
Apostila. Faculdade de Ciências Tecnológicas da P.U.C. Campinas.
Após o movimento de terra, deve-se iniciar a locação pelos elementos da fundação, tais como as estacas, os tubulões, as sapatas isoladas ou corridas, entre outros. Quanto a esse tema e a partir das informações contidas na planta acima, julgue o próximo item.
Na figura acima, V108 representa uma viga de fundação que tem 20 cm de altura e 30 cm de espessura.
Provas
Caderno Container