Foram encontradas 40 questões.
Fonte: NIEMEYER, C. A. da C. Paisagismo: métodos e técnicas de intervenção. 3 ed. Uberlândia/MG: EDUFU, 2019. p. 89. (adaptado pelo elaborador)
Com base na imagem acima que ilustra sistema de drenagem de jardineira, é CORRETO afirmar que as camadas 1, 2 e 3 são respectivamente:
Provas
Questão presente nas seguintes provas
Conforme Niemeyer (2019, p. 32), “espécies arbóreas são plantas com altura em geral acima de cinco ou seis metros, caule lenhoso, autoportantes (suportam a si mesmas), com ampla copa aérea”.
Com base no texto acima, é CORRETO afirmar que são exemplos dessas espécies:
Com base no texto acima, é CORRETO afirmar que são exemplos dessas espécies:
Provas
Questão presente nas seguintes provas
Em projeto de edifício de apartamentos, as vedações verticais externas tiveram estimativa de vida útil de projeto (VUP) superior às vedações verticais internas. Para o contratante do projeto de arquitetura, essa diferença de VUP causou estranhamento.
Com base no relato acima, é CORRETO afirmar que:
Com base no relato acima, é CORRETO afirmar que:
Provas
Questão presente nas seguintes provas
A “NBR 9077 – Saída de emergência em edifícios” fixa as condições que as edificações devem possuir para que sua população possa abandoná-las, em caso de incêndio, completamente protegida em sua integridade física. E, dentre os aspectos regulamentados por esta norma, está o dimensionamento das saídas de emergência, tais como acessos, escadas e descargas.
Com base nessa norma, analise as assertivas a seguir.
I- As portas de acesso a salas com capacidade acima de 200 pessoas devem ter ferragem do tipo antipânico.
II- A dimensão mínima de vão livre da porta de rotas de saída é 1,00 m, para uma unidade de passagem.
III- As portas das salas com capacidade acima de 50 pessoas devem abrir no sentido do trânsito de saída.
É CORRETO o que se afirma em:
I- As portas de acesso a salas com capacidade acima de 200 pessoas devem ter ferragem do tipo antipânico.
II- A dimensão mínima de vão livre da porta de rotas de saída é 1,00 m, para uma unidade de passagem.
III- As portas das salas com capacidade acima de 50 pessoas devem abrir no sentido do trânsito de saída.
É CORRETO o que se afirma em:
Provas
Questão presente nas seguintes provas
“Produtos aparentemente ‘ecoeficientes’ podem ser associados a sonegação de impostos, desrespeito à legislação social e ambiental. Por exemplo, um ‘material verde’ pode ter utilizado mão de obra semiescrava em sua produção” (AGOPYAN; JOHN, 2011, p. 70). Considerando as informações apresentadas no texto, analise as asserções a seguir e a relação entre elas:
I- Na construção civil, a análise sobre a sustentabilidade ambiental deve estar associada aos aspectos social e econômico.
PORQUE
II- A cadeia produtiva da construção civil é complexa e requer uma visão sistêmica. Engloba a extração e fabricação de materiais, transporte de insumos, processo de construção, uso e operação do edifício e, eventual, demolição.
A respeito dessas asserções, assinale a opção CORRETA:
I- Na construção civil, a análise sobre a sustentabilidade ambiental deve estar associada aos aspectos social e econômico.
PORQUE
II- A cadeia produtiva da construção civil é complexa e requer uma visão sistêmica. Engloba a extração e fabricação de materiais, transporte de insumos, processo de construção, uso e operação do edifício e, eventual, demolição.
A respeito dessas asserções, assinale a opção CORRETA:
Provas
Questão presente nas seguintes provas
- AcessibilidadeErgonomia
- Conforto AmbientalConforto Acústico
- Conforto AmbientalConforto Térmico
- Planejamento e Controle de ObrasSegurança do Trabalho
Ao projetar ginásio esportivo, o arquiteto precisou definir a altura mais confortável para o assento da arquibancada. Com base em levantamento antropométrico da população local, constatou que a altura do sulco poplíteo (altura do chão até lado inferior da coxa, quando o indivíduo está sentado) da população local, no percentil 95, é 49,0 cm (homens) e 44,5 cm (mulheres) e, no percentil 5, é 39,3 cm (homens) e 35,6 cm (mulheres).
Com base no texto acima, é CORRETO afirmar que a altura mais recomendada para o assento é:
Com base no texto acima, é CORRETO afirmar que a altura mais recomendada para o assento é:
Provas
Questão presente nas seguintes provas
Fonte: elaborador, 2023.
Avalie as assertivas a seguir:
I- A largura da rampa está em conformidade a ABNT NBR 9050: 2020.
II- A inclinação da rampa está em conformidade a ABNT NBR 9050: 2020.
III- O comprimento dos patamares está em conformidade a ABNT NBR 9050: 2020.
É CORRETO o que se afirma em:
Provas
Questão presente nas seguintes provas
“O BIM ou Modelagem da Informação da Construção é um processo criado para gerenciar informações em um projeto de construção em todo seu ciclo de vida. Um dos principais resultados desse processo é o Modelo de informações de construção, que se configura na descrição digital de cada aspecto do ativo construído.” Fonte: BRASIL. Ministério da Infraestrutura. Departamento Nacional de Infraestrutura de Transporte. Conceito de BIM. Gov.br. Brasília, DF, 09 mar. 2021. Disponível em:</www.gov.br/dnit/pt-br/assuntos/planejamento-e-pesquisa/bim-no-dnit/o-que-e-o-bim>.
Com base no texto acima, avalie as observações a seguir.
I- Autodesk Revit, AutoCAD Civil 3D e Infraworks são exemplos de softwares BIM.
II- São dimensões operadas na plataforma BIM: forma, tempo, custos, sustentabilidade e gerenciamento de instalações.
III- Para favorecer a interoperabilidade entre softwares BIM foi desenvolvida a extensão de arquivo “DWG”.
É CORRETO o que se afirma em:
Com base no texto acima, avalie as observações a seguir.
I- Autodesk Revit, AutoCAD Civil 3D e Infraworks são exemplos de softwares BIM.
II- São dimensões operadas na plataforma BIM: forma, tempo, custos, sustentabilidade e gerenciamento de instalações.
III- Para favorecer a interoperabilidade entre softwares BIM foi desenvolvida a extensão de arquivo “DWG”.
É CORRETO o que se afirma em:
Provas
Questão presente nas seguintes provas
- AcessibilidadeAcessibilidade e Desenho Universal
- AcessibilidadeEdificações
- Instalações PrediaisSegurança Contra Incêndio e Pânico
- Meio Ambiente e SustentabilidadeEstudos AmbientaisProjetos Sustentáveis
“[...] é definido por substantivos, pelas qualidades das coisas e dos elementos, pelos valores simbólicos e históricos; é ambiental e está relacionado fenomenologicamente com o corpo humano” (Montaner, 2001, p. 32).
Com base no texto acima, é CORRETO afirmar que a definição apresentada se refere ao conceito de:
Com base no texto acima, é CORRETO afirmar que a definição apresentada se refere ao conceito de:
Provas
Questão presente nas seguintes provas
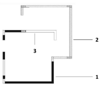
Fonte: ASSOCIAÇÃO BRASILEIRA DE NORMAS TÉCNICAS. NBR 6492: Documentação técnica para projetos arquitetônicos e urbanísticos: Requisitos. Rio de Janeiro: ABNT, 2021. p. 39. (adaptado pelo elaborador)
Com base na na planta baixa de ampliação e reforma acima, avalie as observações a seguir.
I- A indicação “1” refere-se à representação de alvenaria a construir.
II- A indicação “2” refere-se à representação de alvenaria existente.
III- A indicação “3” refere-se à representação de alvenaria a demolir.
É CORRETO o que se afirma em:
Provas
Questão presente nas seguintes provas
Cadernos
Caderno Container