Foram encontradas 40 questões.
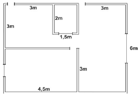
Comprei um apartamento por sessenta e nove mil, seiscentos e quinze reais; cuja planta está representada ao lado. Paguei por m² o valor de reais. Dei de entrada a quantia referente a 3/15 do seu valor. Financiei reais.

Provas
Questão presente nas seguintes provas
A alternativa correta quando ao emprego do plural dos substantivos é:
Provas
Questão presente nas seguintes provas
Um auxiliar administrativo comprou 15 pastas para arquivo e 4 pacotes de papel sulfite e gastou 117 reais. Cada pacote de papel sulfite equivale ao preço de 6 pastas. Seu preço é de reais.
Provas
Questão presente nas seguintes provas
Em: “Se fizer igual a todo mundo, obterá os mesmos resultados.”, a vírgula foi empregada para:
Provas
Questão presente nas seguintes provas
Em: “Se quiser um casamento gratificante,” o verbo grifado encontra-se conjugado no:
Provas
Questão presente nas seguintes provas
Se por dia, numa repartição, são gastos em média 97 folhas de sulfite, para fazer uma previsão para 6 meses,no estoque deverá ter, pelo menos, pacotes de 500 folhas. Obs: mês de 30 dias.
Provas
Questão presente nas seguintes provas
Um dos lados de um terreno mede 28 m e o outro mede 4/7 dessa medida mais 3 metros. A área desse terreno é de e seu perímetro é de .
Provas
Questão presente nas seguintes provas
Em: “Da mesma forma, se você quiser construir uma relação amiga com seus filhos, terá que se dedicar a isso [...]” , o verbo grifado, se flexionado para o pretérito imperfeito do subjuntivo, ficaria:
Provas
Questão presente nas seguintes provas
No local onde trabalho há uma impressora com velocidade de até 4ppm (4 páginas por minuto). Para imprimir 15 cópias de um relatório para uma reunião gastei 30 minutos. Cada relatório tem páginas.
Provas
Questão presente nas seguintes provas
Considere para fins de cálculo o ano com 365 dias. Quem tem 20 anos e 9 dias já viveu:
Provas
Questão presente nas seguintes provas
Cadernos
Caderno Container