Foram encontradas 685 questões.
O gráfico a seguir mostra a curva de correção que deve ser aplicada para o fator de atuação (indicado no eixo Y) de um disjuntor unipolar ou multipolar, em função da temperatura ambiente (indicada no eixo X).

Fonte: adaptada de Hélio Creder, “instalações Elétricas”, 15ª Edição.
Se a temperatura ambiente do disjuntor for 20°C inferior àquela utilizada como referência para a elaboração desse gráfico, o fator a ser aplicado para um disjuntor multipolar deve ser de aproximadamente:
Provas
A figura a seguir ilustra um tipo de sondagem para investigação geotécnica.

Fonte http://dedmd.com.br/validacao/2019_1/FUNDA%C3%87% C3%95ES/Unidade%201/s3/
Esta sondagem é denominada:
Provas
A figura a seguir ilustra uma viga biapoiada submetida a uma carga uniformemente distribuída.

Nessa viga, o momento fletor e o esforço cortante em uma seção distante 1,0 m do apoio A valem, respectivamente:
Provas
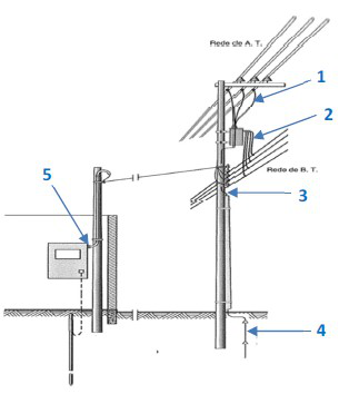
A figura a seguir ilustra a conexão de uma residência a um sistema público de energia elétrica, na qual são indicados, pelos números 1 a 5, alguns componentes desta instalação.

Fonte: adaptado de Hélio Creder, “instalações Elétricas”, 15ª Edição.
Os itens que estão relacionados ao sistema de aterramento são os indicados pelos números:
Provas
A figura abaixo ilustra um dano identificado em uma edificação, durante a realização de uma vistoria predial.

A alternativa que melhor descreve esse tipo de dano é:
Provas
Dentre as alternativas abaixo, aquela que representa uma radiação não ionizante é:
Provas
A administração de medicamentos é uma das atribuições mais importantes da enfermagem. Com relação ao ângulo de inserção das injeções, assinale a alternativa correta:
Provas
Com relação à classificação dos períodos cirúrgicos, assinale a alternativa correta:
Provas
Os cuidados de enfermagem para um paciente com quadro de hemorragia digestiva alta são, inicialmente, a estabilização dos parâmetros vitais, que são:
Provas
Disciplina: Legislação Específica das Agências Reguladoras
Banca: IBADE
Orgão: SEA SC
- ANVISARDCsResolução RDC nº 222/2018 - Boas Práticas de Gerenciamento dos Resíduos de Serviços de Saúde
A RDC 222/2018 (Anvisa) classifica os resíduos nocivos à saúde do grupo A (Infectantes) em cinco subgrupos: A1, A2, A3, A4 e A5. Os resíduos perfurocortantes (do Grupo E) também podem estar contaminados com matéria infectante. Com base na RDC 222/2018, está incorreto o que se diz em:
Provas
Caderno Container