Foram encontradas 50 questões.
800652
Ano: 2019
Disciplina: Desenho Técnico e Industrial
Banca: VUNESP
Orgão: SEMAE Piracicaba
Disciplina: Desenho Técnico e Industrial
Banca: VUNESP
Orgão: SEMAE Piracicaba
Provas:
Observe o ícone da barra de ferramentas Dimension do AutoCad.

Esse ícone é utilizado para
Provas
Questão presente nas seguintes provas
800651
Ano: 2019
Disciplina: Desenho Técnico e Industrial
Banca: VUNESP
Orgão: SEMAE Piracicaba
Disciplina: Desenho Técnico e Industrial
Banca: VUNESP
Orgão: SEMAE Piracicaba
Provas:
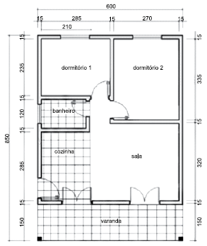
Deseja-se revestir com lajota cerâmica os pisos dos
ambientes hachurados da figura, sendo as medidas
representadas em centímetros.
Considerando que esse piso é comercializado em caixas com 3 m² cada e que haverá uma perda de 10%, a quantidade de caixas necessárias para a execução do serviço será
Considerando que esse piso é comercializado em caixas com 3 m² cada e que haverá uma perda de 10%, a quantidade de caixas necessárias para a execução do serviço será
Provas
Questão presente nas seguintes provas
800650
Ano: 2019
Disciplina: Desenho Técnico e Industrial
Banca: VUNESP
Orgão: SEMAE Piracicaba
Disciplina: Desenho Técnico e Industrial
Banca: VUNESP
Orgão: SEMAE Piracicaba
Provas:
No projeto executivo de uma residência, consta o seguinte
quadro de áreas:
Isso significa que a taxa de ocupação é de, aproximadamente,
Isso significa que a taxa de ocupação é de, aproximadamente,
Provas
Questão presente nas seguintes provas
800649
Ano: 2019
Disciplina: Desenho Técnico e Industrial
Banca: VUNESP
Orgão: SEMAE Piracicaba
Disciplina: Desenho Técnico e Industrial
Banca: VUNESP
Orgão: SEMAE Piracicaba
Provas:
A figura representa o corte esquemático de um telhado:

O elemento construtivo denominado platibanda é identificado por
Provas
Questão presente nas seguintes provas
800648
Ano: 2019
Disciplina: Desenho Técnico e Industrial
Banca: VUNESP
Orgão: SEMAE Piracicaba
Disciplina: Desenho Técnico e Industrial
Banca: VUNESP
Orgão: SEMAE Piracicaba
Provas:
Observe a seguinte convenção de desenho.

Essa convenção representa
Provas
Questão presente nas seguintes provas
800647
Ano: 2019
Disciplina: Desenho Técnico e Industrial
Banca: VUNESP
Orgão: SEMAE Piracicaba
Disciplina: Desenho Técnico e Industrial
Banca: VUNESP
Orgão: SEMAE Piracicaba
Provas:
Uma propriedade de dimensões 50 x 120 metros deverá
ser desenhada em planta na escala 1:300. O menor formato de papel, suficiente para caber essa representação
na posição horizontal, é o
Provas
Questão presente nas seguintes provas
800646
Ano: 2019
Disciplina: Desenho Técnico e Industrial
Banca: VUNESP
Orgão: SEMAE Piracicaba
Disciplina: Desenho Técnico e Industrial
Banca: VUNESP
Orgão: SEMAE Piracicaba
Provas:
De acordo com o projeto arquitetônico de uma edificação,
para vencer um desnível de 1,30 m deverá ser construída uma rampa com inclinação de 5%. O comprimento da
projeção horizontal dessa rampa será igual a
Provas
Questão presente nas seguintes provas
800645
Ano: 2019
Disciplina: Desenho Técnico e Industrial
Banca: VUNESP
Orgão: SEMAE Piracicaba
Disciplina: Desenho Técnico e Industrial
Banca: VUNESP
Orgão: SEMAE Piracicaba
Provas:
De acordo com a norma que regulamenta a apresentação dos projetos de arquitetura, a fase em que há a definição do partido arquitetônico e dos elementos construtivos, considerando os projetos complementares, quando
o projeto deve receber aprovação final do cliente e dos
órgãos oficiais envolvidos e possibilitar a contratação da
obra, é denominada
Provas
Questão presente nas seguintes provas
800644
Ano: 2019
Disciplina: Desenho Técnico e Industrial
Banca: VUNESP
Orgão: SEMAE Piracicaba
Disciplina: Desenho Técnico e Industrial
Banca: VUNESP
Orgão: SEMAE Piracicaba
Provas:
Uma folha de desenho de formato A0, quando corretamente dobrada, deverá ficar no formato final com dimensões
Provas
Questão presente nas seguintes provas
800643
Ano: 2019
Disciplina: Desenho Técnico e Industrial
Banca: VUNESP
Orgão: SEMAE Piracicaba
Disciplina: Desenho Técnico e Industrial
Banca: VUNESP
Orgão: SEMAE Piracicaba
Provas:
Para que o AutoCad seja configurado de modo que seja
possível controlar os comportamentos associados à
obtenção de pontos notáveis dos objetos, é necessário,
entre as opções da aba Drafting, escolher a ferramenta
Provas
Questão presente nas seguintes provas
Cadernos
Caderno Container