Magna Concursos

Foram encontradas 50 questões.

2864141 Ano: 2022
Disciplina: Engenharia Civil
Banca: UniFil
Orgão: SOMAR
Provas:

A projeção em plano horizontal da área construída situada acima do nível do solo é a área:

 

Provas

Questão presente nas seguintes provas
2864140 Ano: 2022
Disciplina: Engenharia Civil
Banca: UniFil
Orgão: SOMAR
Provas:

Enunciado 3008940-1

O símbolo complementar, apresentado na imagem acima, indica:

 

Provas

Questão presente nas seguintes provas
2864139 Ano: 2022
Disciplina: Engenharia Civil
Banca: UniFil
Orgão: SOMAR
Provas:

Para ser considerada uma rampa, a inclinação da superfície de piso, longitudinal ao sentido de caminhamento, deve ter declividade igual ou superior a

 

Provas

Questão presente nas seguintes provas
2864138 Ano: 2022
Disciplina: Engenharia Civil
Banca: UniFil
Orgão: SOMAR
Provas:

Nos projetos de acessibilidade há elementos ou condições que podem interferir no fluxo de pedestres, como, por exemplo, mobiliário urbano, entradas de edificações junto ao alinhamento, vegetação, postes de sinalização, entre outros. Segundo a Norma Técnica sobre o assunto, esses elementos ou condições recebem o nome de

 

Provas

Questão presente nas seguintes provas
2864137 Ano: 2022
Disciplina: Engenharia Civil
Banca: UniFil
Orgão: SOMAR
Provas:

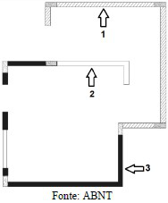
Enunciado 3008935-1

A imagem acima representa uma planta de reforma de uma pequena edificação, onde haverá paredes a construir, paredes que deverão ser mantidas e paredes que devem ser demolidas. Dessa maneira, e conforme Norma Técnica de representações arquitetônicas, assinale a alternativa que traz a convenção correta, conforme as indicações da figura.

 

Provas

Questão presente nas seguintes provas
2864136 Ano: 2022
Disciplina: Engenharia Civil
Banca: UniFil
Orgão: SOMAR
Provas:

Enunciado 3008932-1

A figura acima representa a estrutura de um telhado. Assinale a alternativa que traga a nomenclatura correta das estruturas indicadas pelas letras A; B e C.

 

Provas

Questão presente nas seguintes provas

Analise as assertivas e assinale a alternativa correta. De acordo com o art. 325 da Lei Orgânica de Maricá, a conservação do solo é de interesse público em todo território do Município, impondo-se a coletividade e ao Poder Público o dever de preservá-lo e cabendo a este:

I. estabelecer regimes de conservação e elaborar normas de preservação dos recursos do solo e da água, assegurando o uso múltiplo desta.

II. orientar os produtores rurais sobre técnicas de manejo e recuperação de solo, através de serviços de extensão rural.

III. desenvolver e estimular pesquisa de tecnologia de conservação do solo.

IV. desenvolver infraestrutura física e social que garanta o emprego na zona urbana criando condições de êxodo rural para o homem no campo.

V. proceder ao zoneamento agrícola, considerando os objetivos e as ações de política agrícola previstas neste capítulo.

 

Provas

Questão presente nas seguintes provas

De acordo com a Lei Orgânica de Maricá, informe se verdadeiro (V) ou falso (F) para o que se afirma e assinale a alternativa com a sequência correta.

( ) O Prefeito e Vice-Prefeito, os Vereadores Municipais, bem como as pessoas ligadas a qualquer deles por matrimônio ou parentesco, afim ou consanguíneo, até o segundo grau ou por doação, não poderão contratar com o Município, subsistindo a proibição até três meses após findas as respectivas funções.

( ) A Prefeitura e a Câmara são obrigadas a fornecer a qualquer interessado, no prazo máximo de quinze dias, certidões e informações de atos, contratos e decisões, desde que requeridas para fim de direito determinado, sob pena de responsabilidade da autoridade ou funcionário que negar ou retardar sua expedição. No mesmo prazo deverão atender às requisições judiciais se outro não for fixado pelo Juiz.

( ) Cabe ao Prefeito a administração de todos os bens municipais, inclusive os utilizados pela Câmara em seus serviços.

( ) A devolução de tributos indevidamente pagos, ou pagos a maior, será feita pelo seu valor original pago indevidamente, sem obrigatoriedade de correção.

 

Provas

Questão presente nas seguintes provas
2863903 Ano: 2022
Disciplina: Arquitetura
Banca: UniFil
Orgão: SOMAR
Provas:

Enunciado 3008931-1

A convenção de material exemplificado na figura acima, em um projeto de arquitetura representa

 

Provas

Questão presente nas seguintes provas
2863902 Ano: 2022
Disciplina: Arquitetura
Banca: UniFil
Orgão: SOMAR
Provas:

A última revisão do projeto executivo, em que a representação gráfica constante no projeto da edificação está condizente com a obra acabada, ou seja, todas as alterações realizadas durante a obra devem estar devidamente registradas deste documento e podem facilitar as manutenções ou intervenções na edificação, é o documento denominado de

 

Provas

Questão presente nas seguintes provas