Foram encontradas 120 questões.
Em geral, as concessionárias de serviço de eletricidade estabelecem limites de carga dentro dos quais os consumidores podem ser atendidos em tensão secundária de distribuição ou baixa tensão. Extrapolados esses limites, é necessário construir uma subestação abaixadora para suprir esses consumidores. Com relação a esse assunto, julgue os itens de 114 a 117.
Considere que um consumidor precise ser atendido por uma subestação a ser projetada e construída. Nesse caso, a carga demandada pela instalação do consumidor é um dos dados necessários para o projeto da subestação.
Provas
Em geral, as concessionárias de serviço de eletricidade estabelecem limites de carga dentro dos quais os consumidores podem ser atendidos em tensão secundária de distribuição ou baixa tensão. Extrapolados esses limites, é necessário construir uma subestação abaixadora para suprir esses consumidores. Com relação a esse assunto, julgue os itens de 114 a 117.
Tensão secundária, ou baixa tensão, em um sistema de distribuição de energia elétrica, é o termo técnico utilizado para indicar que a rede elétrica apresenta tensão abaixo da nominal.
Provas
Em geral, as concessionárias de serviço de eletricidade estabelecem limites de carga dentro dos quais os consumidores podem ser atendidos em tensão secundária de distribuição ou baixa tensão. Extrapolados esses limites, é necessário construir uma subestação abaixadora para suprir esses consumidores. Com relação a esse assunto, julgue os itens de 114 a 117.
Um nível de tensão primária de distribuição muito comum no Brasil é o de 13,8 kV.
Provas
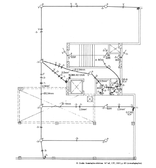
A figura abaixo mostra a planta baixa de parte de uma instalação elétrica predial na qual podem ser observados diversos circuitos relativos a iluminação e a tomadas. A simbologia adotada na planta segue a convencionada pela norma vigente para instalações elétricas em baixa tensão.

Com base nas informações disponíveis na figura, julgue os itens de 106 a 113.
Excetuando-se a alimentação que atende o quadro de força, todos os demais condutores indicados na planta baixa têm seção ou de 2,5 mm 2 ou de 4 mm 2
Provas
A figura abaixo mostra a planta baixa de parte de uma instalação elétrica predial na qual podem ser observados diversos circuitos relativos a iluminação e a tomadas. A simbologia adotada na planta segue a convencionada pela norma vigente para instalações elétricas em baixa tensão.

Com base nas informações disponíveis na figura, julgue os itens de 106 a 113.
Na instalação elétrica mostrada, há eletrodutos embutidos somente no teto e na parede.
Provas
A figura abaixo mostra a planta baixa de parte de uma instalação elétrica predial na qual podem ser observados diversos circuitos relativos a iluminação e a tomadas. A simbologia adotada na planta segue a convencionada pela norma vigente para instalações elétricas em baixa tensão.

Com base nas informações disponíveis na figura, julgue os itens de 106 a 113.
Na instalação elétrica mostrada na planta, o número de tomadas médias é inferior ao de tomadas baixas.
Provas
Considere a situação em que um circuito, parte de uma instalação elétrica em baixa tensão, deva ser protegido contra a ação de curtos-circuitos por meio de dispositivos adequadamente dimensionados para essa finalidade. Acerca dessa situação, julgue os itens que se seguem.
Disjuntores DR são, em geral, muito utilizados para proteção contra ação de curtos-circuitos, devido às suas desejáveis qualidades de sensibilidade a variações de corrente sob carga.
Provas
Considere a situação em que um circuito, parte de uma instalação elétrica em baixa tensão, deva ser protegido contra a ação de curtos-circuitos por meio de dispositivos adequadamente dimensionados para essa finalidade. Acerca dessa situação, julgue os itens que se seguem.
Caso esteja associado a um disjuntor, um relé temporizador é capaz de proteger o circuito contra ação de elevadas correntes de curto-circuito.
Provas
Considere a situação em que um circuito, parte de uma instalação elétrica em baixa tensão, deva ser protegido contra a ação de curtos-circuitos por meio de dispositivos adequadamente dimensionados para essa finalidade. Acerca dessa situação, julgue os itens que se seguem.
O relé térmico é o dispositivo mais apropriado para realizar o tipo de proteção almejado.
Provas

Considere os circuitos de comando e de força de um motor de indução trifásico mostrados acima. Com relação às informações dos diagramas apresentados e ao funcionamento do motor, julgue os itens que se seguem.
Os diagramas de comando e de força indicam que a corrente de partida do motor é controlada por dispositivo do tipo estrela-triângulo.
Provas
Caderno Container